接连获批!昆山城西、城中大项目来了
批了!批了!
昆山城西!昆山城中!
接连传来大项目
涉及道路改造、地铁TOD项目…
个个重磅!
🚧
朋友们
千呼万唤始出来的
鹿城路改造工程
终于迎来进展
近日,官方批复文件下发
据了解
鹿城路(萧林路-震川路)沿线周边
有
华润社区、香堤湾、鹿城花园
明鑫凯迪城、虹桥新村…多个小区
有
振华实验幼儿园、
江苏师范大学附属昆山实验中学…
多所学校
有
高伟精密、旭豪工贸…
多家企业
作为昆山城西南北向的一条重要道路
鹿城路(萧林路-震川路)
常年来承担着巨大的车流量
不少路段有着“缝缝补补”的痕迹
影响昆山人的出行体验与速度
改造顺势而来!
官方公示
鹿城路(萧林路-震川路)改造项目总投资16302.6万元,建设地点位于昆山高新区鹿城路,北起萧林路,南至震川路,项目改造道路全长约3.16千米、宽约50米,按照城市次干路兼三级公路标准设计,双向四车道,涉水桥梁2座、箱涵1座,主要工程内容包括道路工程、桥梁工程、管线工程、交通工程、照明工程、绿化及环境保护工程(含海绵工程)等配套附属工程。
项目已取得昆山高新技术产业开发区管理委员会对项目建议书的批复(昆高投复(2024)14号)。
项目效果图
不仅如此
鹿城路北延(萧林路-中环北线)项目
也在推进中
今年4月,该工程的
施工监理项目、勘察设计项目已经中标
根据此前官方公示
👇
鹿城路北延(萧林路-中环北线)工程主要包括鹿城路和广福路,南起萧林路,北至中环北线。全长约1.06千米、宽26-38米,道路等级为城市次干路兼二级公路,双向四车道,两侧同步设置人非,涉水桥涵3座,含张家港五级航道桥1座、2座地面小桥。建安费约2.25亿。
效果图
在2024工作计划中
昆山市交通运输局提到
将推进鹿城路北延
如今鹿城路(萧林路-震川路)改造工程
也呼之欲出
未来,昆山鹿城路南北通行
将大提速!
👍
与此同时
昆山市中心也有大工程
传来好消息
昆山老城区重新焕发活力的时机
终于要来了!
近日
中国昆山上公告
建设单位:昆山轨道交通城市发展有限公司
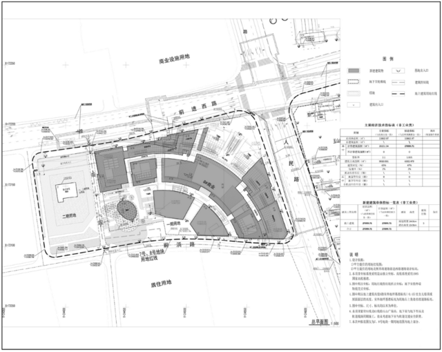
建设项目名称:玉山广场站TOD站城一体化开发项目7+8号地块地上工程
建设规模:27099.71平方米
建设位置:昆山高新区前进路南侧、人民路西侧
许可证号:建字第3205832024GG0599419号
用地面积:13863.00平方米
土地用途:商业用地

去年11月
项目涉及地块挂牌成功出让
根据约定
签订土地出让合同后3个月内交地
交地后6个月内开工
开工后36个月内竣工
交地到开工
共有9个月的过渡期
而2023年11月距今
正好满9个月
现如今
玉山广场站TOD站城一体化
开发项目7+8号地块地上工程
建设工程规划许可证批了
这也意味着
项目随时就能动工!
(最终动工时间以官方消息为准)

按照之前官方公示的
玉山广场站TOD站城一体化
开发项目7+8号地块(一期)方案
本项目总用地面积约13862.97平方米,建筑地上面积约28151.04平方米,主要为商业功能,地上部分适当退后,以开放的城市灰空间界面面向东北城市主要道路十字路口,建筑以半室外多层商业为主,通告外廊、连桥、室外楼梯、景观电梯来串联各层的商铺与餐厅,营造出宜人的立体步行街。
项目总平图
玉山广场站
是苏州地铁11号线昆山段最大的站点
此处规划的TOD项目
将成为标杆性项目
承担复活昆山市心地段繁荣的重任
而7+8号地块
作为玉山广场TOD将建的主体建筑
更让人期待它的早日到来
早先官宣的效果图
令人惊艳不已
👇
项目一旦完工
昆山人民路、亭林路
乃至老城区
都将注入全新活力
另外
地铁周边配套附属工程
昆山这些地方也要变样
近日
轨道11号线周边配套附属工程(一期)
建设项目用地预审与选址意见批后公布
许可证号:用字第3205832024XS0094451
用地单位:昆山交通发展控股集团有限公司
项目名称:轨道11号线周边配套附属工程(一期)
用地位置:昆山市巴城镇
用地面积:7177㎡
土地用途:城镇村道路用地
拟用地面积:用地总面积0.7177公顷;农用地合计0.6754公顷,其中耕地0.0025公顷;未利用地0.0423公顷
拟建设规模:项目一期实施7177㎡,涉及轨道11号线阳澄湖东站,正仪站和莲湖公园站出站口周边区域
建设内容、意义:建设内容主要为道路场地硬化,包括人行道、非机动车停车区、公共自行车点、景观栈道、风雨连廊、公共驿站等
往后
常到阳澄湖东站、正仪站、莲湖公园站
乘坐地铁的小伙伴
出行将更加便利!
快放到圈子里
告诉更多人
步步为营的昆山
又打开全新画卷
开始书写我们的新生活
希望这些项目都能早日动工
带着我们奔向更美好的日子



























