你喜欢吗?城中帮三口之家完成的100㎡现代简约风,尽显古朴优雅气质!

2021-04-20 酸甜苦辣话装修 家居脑细胞
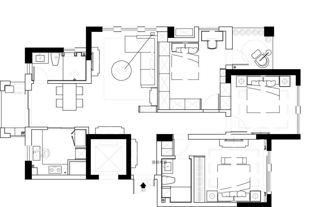
脑细胞今天分享好看的100平现代简约风格新房装修案例。从玄关进来,客厅沙发旁边放置了一个木栏屏风,尽显古朴优雅气质,非常有味道。

玄关



客厅





餐厅


厨房

走廊

主卧



次卧

次卧二

已有0人打赏

已有0人打赏

分享到微信/朋友圈 领红包

每天看看帖,就赚牡丹花,免费好礼立即入手。

打赏
0人赞

推广

部分评论
今日热门
  • 不求所有的日子都泛着光,只愿每一天都承载 ..

    拆南墙

    22
  • 每个阶段的我们,向往的生活都不一样,把能 ..

    飞鱼儿岛主

    21
  • 有点冷#每天一条昆友圈#

    十里shílǐ

    21
  • 来了来了,早上好啊! 祝各位周一愉快! # ..

    快乐老儒儒-1

    21
  • 每天蒸一块,南瓜很甜。#每天一条昆友圈# # ..

    拆南墙

    20
  • 早安~

    飞鱼儿岛主

    20
  • 早安#每天一条昆友圈##我的2025#

    清芬自远

    19
  • 早上好!

    冰雪飞舞

    19
精彩推荐
加载更多
精彩活动更多
论坛服务
触屏版 / 电脑版

other
马上开启