精装房改造,他们家个性的完工落地风格,你能接受吗?
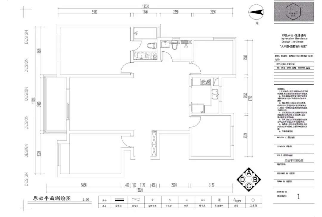
原始vs平面展示!


本案是一套三口之家的精装房局部改造项目,基于业主的需求、喜好及预算,原本四个卧室改成主卧、儿童房、儿童休闲区、储物间;比较大的改造区域就是厨房空间了,将原本封闭式厨房改成开放式厨房,通过空间氛围与色调上的匹配和墙漆色彩、全屋定制的再设计,以及在软装配饰和点缀空间氛围感的一些单品上选择了一些现代偏美式的元素,使整体空间得到融合,从而达到理想状态。













本案是一套三口之家的精装房局部改造项目,基于业主的需求、喜好及预算,原本四个卧室改成主卧、儿童房、儿童休闲区、储物间;比较大的改造区域就是厨房空间了,将原本封闭式厨房改成开放式厨房,通过空间氛围与色调上的匹配和墙漆色彩、全屋定制的再设计,以及在软装配饰和点缀空间氛围感的一些单品上选择了一些现代偏美式的元素,使整体空间得到融合,从而达到理想状态。







































