2018实景作品 | 凝固时间——昨天太近 ,明天太远 ,128㎡新中式住宅

2018-06-08 昆山商情 印象水仙设计
回忆和经历
一直在我们心里
而未来却又遥不可及
装修风格:新中式
装修面积:128㎡
装修公司:印象水仙室内设计
业主与设计师的合影
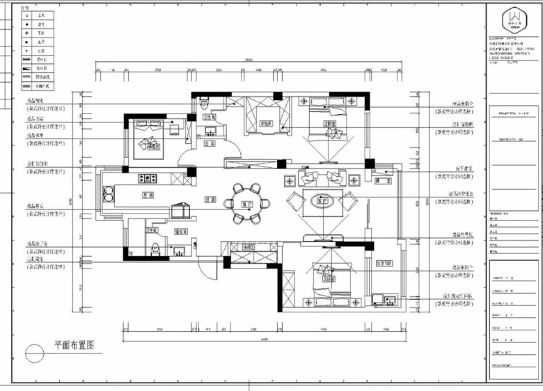
平面布置图
客厅三维图
客    厅
餐厅三维图
餐    厅
厨    房
主    卧
次     卧
次卧三维图
卫  生  间

已有0人打赏

已有0人打赏

分享到微信/朋友圈 领红包

每天看看帖,就赚牡丹花,免费好礼立即入手。

打赏
0人赞

推广

部分评论
今日热门
  • 早安!#我的碎碎念#

    夏晨东

    31
  • #昆山有哪些美景?##一句话总结你的假期生 ..

    听见花开

    31
  • 早上好!#每天一条昆友圈#

    夏晨东

    30
  • #昆山有哪些美景?##一句话总结你的假期生 ..

    听见花开

    30
  • 听见花开

    28
  • #每天一条昆友圈##我的碎碎念##昆山有哪些 ..

    徐晋

    25
  • 春天一到,万物都在努力生长,你也一样,要 ..

    飞鱼儿岛主

    24
  • #每天一条昆友圈##昆山有哪些美景?##一句 ..

    徐晋

    23
精彩推荐
加载更多
精彩活动更多
论坛服务
触屏版 / 电脑版

other
马上开启