109平的北欧风三居室,简约自然又清新简单的小窝
今天分享的是一套建筑面积109平米的北欧风三居室案例,整体房子的设计都比较简单,通过清新的绿植和北欧风的软装来营造出简约自然的感觉,让人感觉年轻而又大方,令人得到无限的放松。
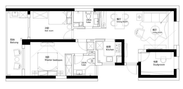
平面布置图▼
入户的玄关走廊并不是很宽敞,屋主只是在这里摆放了一个成品的小鞋柜,上方搭配绿植和洞洞板来作为装饰和辅助收纳。
走过玄关之后就到了客厅空间,客厅的电视背景墙只是简单的刷成了墙漆,木质的电视柜两侧摆放绿植和书籍做的创意装饰,更是让人感觉清新文艺。
客厅的边上还有着一个小飘窗,可以代替部分沙发的作用。沙发背景墙除了刷漆外,也加入了挂画作为点缀。布艺沙发、茶几和地毯的款式和配色都非常的简洁。
在客厅另一侧的就是餐厅空间了,原木风的餐桌椅和餐边柜相互呼应,墙面点缀一个镜子作为装饰,餐边柜的上方用隔板作为收纳。
厨房内部的空间虽然不大,但也做了更多储物空间的U字形橱柜布局,冰箱靠着橱柜摆放。木色的橱柜搭配灰色的墙地砖让人感觉轻松而又舒适。
主卧室的床头背景墙延续了客餐厅的墙面配色,下方的床头靠背代替了护墙板的作用,还把床头柜也整合在了靠背上,更加简洁大方。
儿童房的配色非常的素雅,靠墙摆放一张单人床,床头背景墙上用一幅挂画来做为点缀,简简单单的设计也带来舒适感。
还有一间面积不算很大的书房空间,书桌靠着墙面摆放,另一侧做上整墙的柜子,书桌上方还有软木板来辅助收纳和作为装饰。
卫生间内部是干湿分离的布局,马桶、钻石形淋浴房和洗手台构成一个三角形的格局,也是比较适合迷你卫生间的干湿分离设计方案。



























