PART 1
楷瑞装饰
楷瑞装饰 是一家集家装设计、施工、家具定制、软装设计、 后期配饰及全过程服务的整体家装服务全环节,极具诚信专业的装饰服务企业。公司立足于本土,拥有一支强大的素质高、专业资深的装修团队;手艺精湛、各工种工人师傅及高知、高效的管理服务团队。经过多年的厚积薄发,凭借雄厚的专业基础与良好的品牌美誉度,睿智进取,致力于服务广大昆山业主朋友,让昆山业主远离装修暴利,最简单的模式、花最少的钱,打造最具性价比的高质量装修!
PART 2
公司文化
打造行业影响力品牌、时刻铭记服务至上、品质为王的理念,争做行业良心装饰企业!
PART 3
核心竞争
不断优化创新的材料,规范施工的标准,严格工地的管理,为客户提供最满意的装修体验。
PART 4
联系我们
楷瑞装饰
地址:昆山市周市镇青阳北路218号万华园5号楼2006室
联系电话:13390879519(微信同号),加微信请备注来源论坛!
PART 5
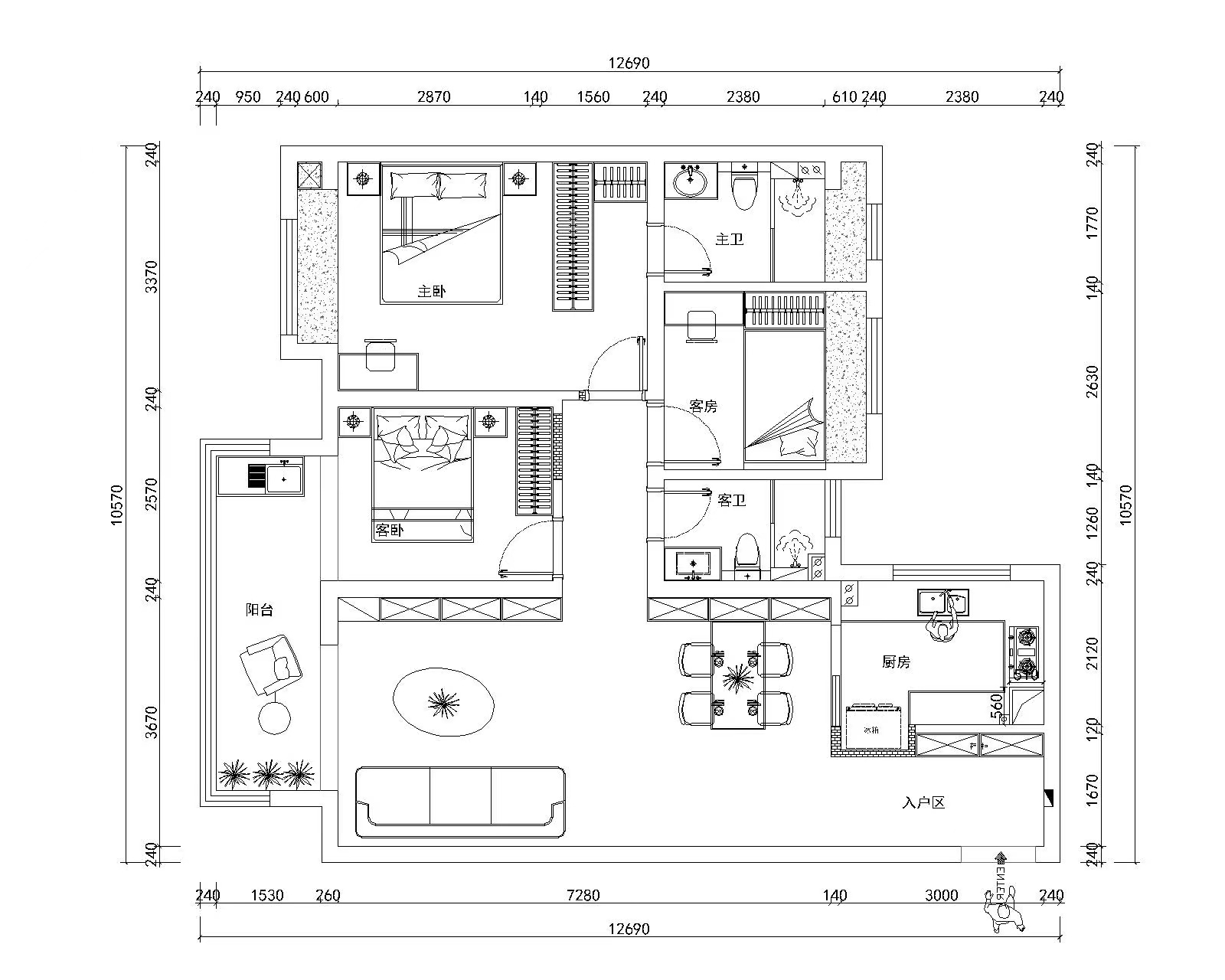
案例欣赏




















































