龙辰院子01户型开始施工了,记录一下我家的装修过程。
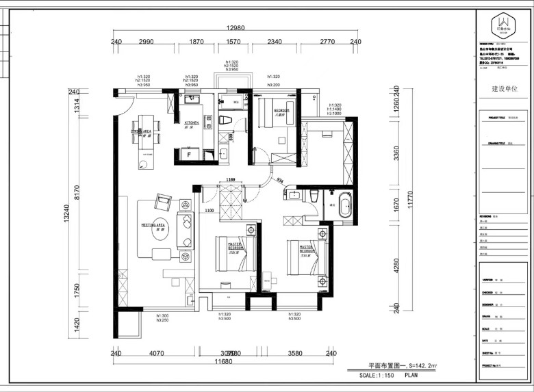
回想,潜水论坛的日子,算算断断续续的也有四五年了,从刚上大学到开始工作,当然目前也才开始工作,但在论坛也算老人了吧,这个是作为我婚前的房子,也想精致装修装修。论坛我平时喜欢看聚焦昆山、玉山广场、还有就是房产热议,其次房子的事情我会顺便看看装修板块,基本上每个版块我都留下过足记,但本人潜水居多,喜欢低调,哈哈。这次装修也本不想码字,但思前想后打算还是开这个贴子。其目的,一方面是记录整个装修的过程,给自己一个记录。本人忘性大,看别人的贴写的好详细好专业,让我更加的头晕眼花,不知重点和方向。希望可以得到一些有经验的朋友的帮助;另一方面也是对装修公司的一种监督。当然,如果大家给我回帖的话,也是让我更新帖子的一种鼓励啦~希望自己别烂尾!先来说说基本情况:房型:三房(主卧选择做大套间设计,设计图很精彩)两厅两卫套内面积:142平米装修形式:半包装修风格:简约奶油风预计开工日期:2022年9月26日装修公司:印象水仙室内设计上设计图吧,如下:
效果图,超爱,如下:




先发一部分吧,后期在更新吧。目前来说,对设计师跟负责人都很满意的。希望一切顺利。

效果图,超爱,如下:




先发一部分吧,后期在更新吧。目前来说,对设计师跟负责人都很满意的。希望一切顺利。




























