夜间模式
  • 19971阅读
  • 2回复

花桥绿地别墅,知道老司机们为何总选择朗通吗?! [复制链接]

上一主题 下一主题
离线朗通装饰
级别: 家装商家

发帖
16957
昆币
14175 枚
只看楼主 使用道具 电梯直达
楼主  发表于: 2017-03-30 , 来自:江苏省0==
花桥绿地别墅,知道老司机们为何总选择朗通吗?!

户型结构:别墅
施工单位:朗通装饰
项目地址:花桥绿地
设计单位:朗通设计团队
装修风格:新中式风格
主要材料:有色乳胶漆、艺术雕花隔断、艺术烤漆玻璃、硅藻泥、硬包、壁纸、地砖、地板等等。
设计理念:
   新中式风格,它的特点是将现代元素和传统元素进行了有机的结合,以现代人的审美需求去营造传统韵味。新中式风格大多数采用对称式的布局,用以营造清幽雅致的生活氛围,在装饰细节上崇尚自然情趣。在家具选配上,一般采用传统的圈椅,条案等中式家具去进行西式陈设,强调舒适性与实用性。在色彩上,通常以黑、白、灰色为基调,局部用红、黄、蓝、绿等进行点缀。在材质上,多采用榆木,橡木等硬质木材进行加工,用来表现东方文化的内敛气质。
效果图:










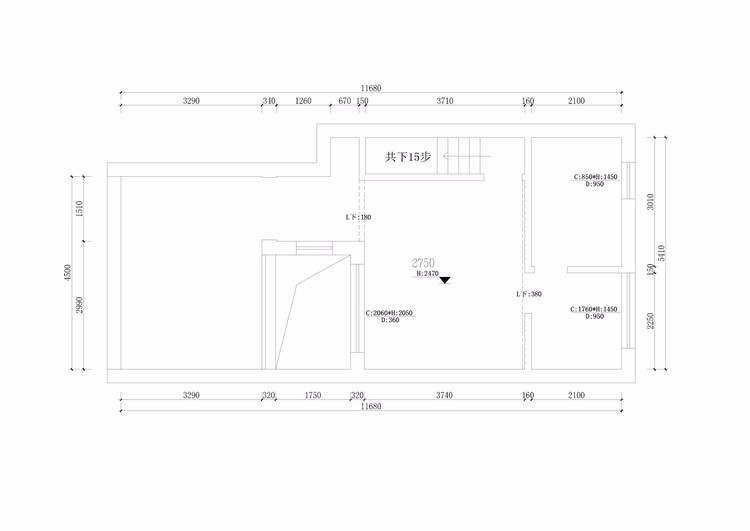
地下室结构图:


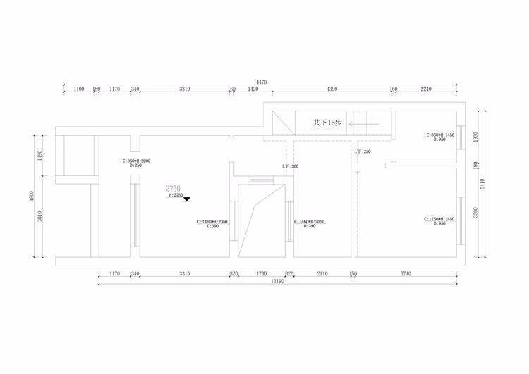
一层结构图:


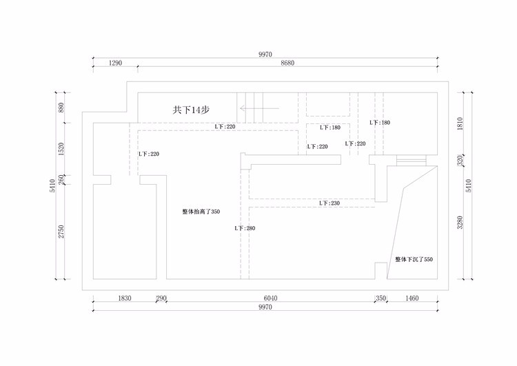
二层结构图:


三层结构图:


本帖评分记录
809698847 昆币 +1 - 2017-03-30
1条评分昆币+1
爆料有奖!关注昆山论坛抖音号,抖音搜索“昆山论坛”,或搜索抖音号:ksbbs
 
帅哥离线ks深呼吸环境
级别: 禁止发言
发帖
1802
昆币
3262 枚
沙发  发表于: 2017-03-30 , 来自:江苏省0==
用户被禁言,该主题自动屏蔽!
爆料有奖!关注昆山论坛抖音号,抖音搜索“昆山论坛”,或搜索抖音号:ksbbs
 
离线朗通装饰
级别: 家装商家

发帖
16957
昆币
14175 枚
板凳  发表于: 2017-04-07 , 来自:江苏省0==
回 ks深呼吸环境 的帖子
ks深呼吸环境:[表情] [表情] [表情] (2017-03-30 15:24)

爆料有奖!关注昆山论坛抖音号,抖音搜索“昆山论坛”,或搜索抖音号:ksbbs
 
快速回复
限76 字节
批量上传需要先选择文件,再选择上传
 
上一个 下一个