夜间模式
打赏中心
每日签到
幸运转盘
论坛帮助
活动聚焦
手机客户端
道具中心
商家认证
勋章中心
诚信认证
快捷通道
关闭
您还没有登录,快捷通道只有在登录后才能使用。
立即登录
还没有帐号? 赶紧
注册一个
论坛首页
论坛导航
商家
招聘
装修
昆山优选
小红娘
分类信息
二手房
昆山视窗
登录
注册
找回密码
帖子
用户
版块
帖子
搜索
论坛首页
>
论坛导航
>
酸甜苦辣话装修
>
泳池建在空中,这栋别墅超爽!
发帖
回复
返回列表
1
2
3
4
新帖
46217
阅读
32
回复
泳池建在空中,这栋别墅超爽!
[复制链接]
扫描到手机
论坛小编教你如何扫二维码
上一主题
下一主题
离线
卡迪夫
UID:831411
注册时间
2018-01-30
最后登录
2025-11-11
发帖
190
搜Ta的帖子
精华
0
昆币
227
访问TA的空间
加好友
用道具
级别:
昆山新人
发帖
190
昆币
227 枚
加关注
发消息
只看该作者
10楼
发表于: 2018-03-07
,
来自:江苏省
0==
首层平面图
▼
本帖评分记录
共
条评分
爆料有奖!关注昆山论坛抖音号,抖音搜索“昆山论坛”,或搜索抖音号:ksbbs
引用
举报
离线
卡迪夫
UID:831411
注册时间
2018-01-30
最后登录
2025-11-11
发帖
190
搜Ta的帖子
精华
0
昆币
227
访问TA的空间
加好友
用道具
级别:
昆山新人
发帖
190
昆币
227 枚
加关注
发消息
只看该作者
11楼
发表于: 2018-03-07
,
来自:江苏省
0==
二层平面图
▼
本帖评分记录
共
条评分
爆料有奖!关注昆山论坛抖音号,抖音搜索“昆山论坛”,或搜索抖音号:ksbbs
引用
举报
离线
卡迪夫
UID:831411
注册时间
2018-01-30
最后登录
2025-11-11
发帖
190
搜Ta的帖子
精华
0
昆币
227
访问TA的空间
加好友
用道具
级别:
昆山新人
发帖
190
昆币
227 枚
加关注
发消息
只看该作者
12楼
发表于: 2018-03-07
,
来自:江苏省
0==
本帖评分记录
共
条评分
爆料有奖!关注昆山论坛抖音号,抖音搜索“昆山论坛”,或搜索抖音号:ksbbs
引用
举报
离线
卡迪夫
UID:831411
注册时间
2018-01-30
最后登录
2025-11-11
发帖
190
搜Ta的帖子
精华
0
昆币
227
访问TA的空间
加好友
用道具
级别:
昆山新人
发帖
190
昆币
227 枚
加关注
发消息
只看该作者
13楼
发表于: 2018-03-07
,
来自:江苏省
0==
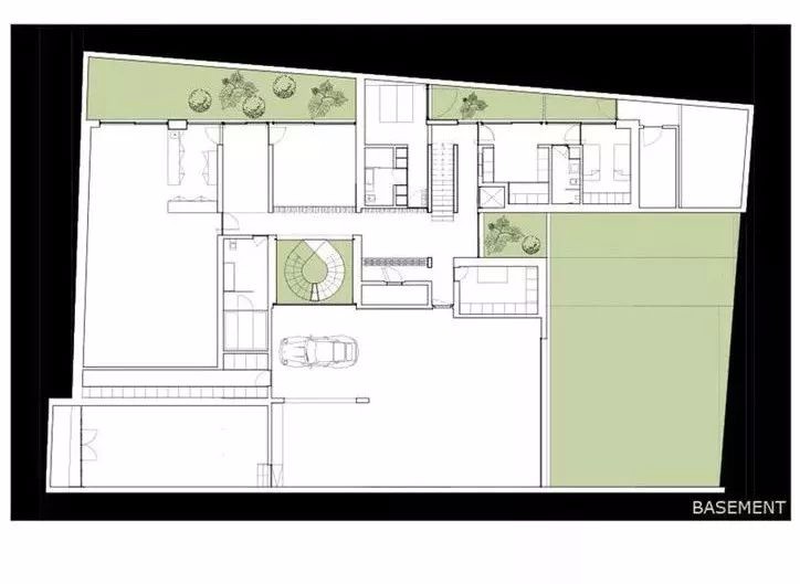
地下室平面图
▼
本帖评分记录
共
条评分
爆料有奖!关注昆山论坛抖音号,抖音搜索“昆山论坛”,或搜索抖音号:ksbbs
引用
举报
离线
卡迪夫
UID:831411
注册时间
2018-01-30
最后登录
2025-11-11
发帖
190
搜Ta的帖子
精华
0
昆币
227
访问TA的空间
加好友
用道具
级别:
昆山新人
发帖
190
昆币
227 枚
加关注
发消息
只看该作者
14楼
发表于: 2018-03-07
,
来自:江苏省
0==
本帖评分记录
共
条评分
爆料有奖!关注昆山论坛抖音号,抖音搜索“昆山论坛”,或搜索抖音号:ksbbs
引用
举报
离线
卡迪夫
UID:831411
注册时间
2018-01-30
最后登录
2025-11-11
发帖
190
搜Ta的帖子
精华
0
昆币
227
访问TA的空间
加好友
用道具
级别:
昆山新人
发帖
190
昆币
227 枚
加关注
发消息
只看该作者
15楼
发表于: 2018-03-07
,
来自:江苏省
0==
外墙的混凝土和木材延伸进了室内
▼
本帖评分记录
共
条评分
爆料有奖!关注昆山论坛抖音号,抖音搜索“昆山论坛”,或搜索抖音号:ksbbs
引用
举报
离线
卡迪夫
UID:831411
注册时间
2018-01-30
最后登录
2025-11-11
发帖
190
搜Ta的帖子
精华
0
昆币
227
访问TA的空间
加好友
用道具
级别:
昆山新人
发帖
190
昆币
227 枚
加关注
发消息
只看该作者
16楼
发表于: 2018-03-07
,
来自:江苏省
0==
本帖评分记录
共
条评分
爆料有奖!关注昆山论坛抖音号,抖音搜索“昆山论坛”,或搜索抖音号:ksbbs
引用
举报
离线
卡迪夫
UID:831411
注册时间
2018-01-30
最后登录
2025-11-11
发帖
190
搜Ta的帖子
精华
0
昆币
227
访问TA的空间
加好友
用道具
级别:
昆山新人
发帖
190
昆币
227 枚
加关注
发消息
只看该作者
17楼
发表于: 2018-03-07
,
来自:江苏省
0==
灰色的混凝土和浅色的木饰面清新脱俗▼
本帖评分记录
共
条评分
爆料有奖!关注昆山论坛抖音号,抖音搜索“昆山论坛”,或搜索抖音号:ksbbs
引用
举报
离线
卡迪夫
UID:831411
注册时间
2018-01-30
最后登录
2025-11-11
发帖
190
搜Ta的帖子
精华
0
昆币
227
访问TA的空间
加好友
用道具
级别:
昆山新人
发帖
190
昆币
227 枚
加关注
发消息
只看该作者
18楼
发表于: 2018-03-07
,
来自:江苏省
0==
本帖评分记录
共
条评分
爆料有奖!关注昆山论坛抖音号,抖音搜索“昆山论坛”,或搜索抖音号:ksbbs
引用
举报
离线
卡迪夫
UID:831411
注册时间
2018-01-30
最后登录
2025-11-11
发帖
190
搜Ta的帖子
精华
0
昆币
227
访问TA的空间
加好友
用道具
级别:
昆山新人
发帖
190
昆币
227 枚
加关注
发消息
只看该作者
19楼
发表于: 2018-03-07
,
来自:江苏省
0==
本帖评分记录
共
条评分
爆料有奖!关注昆山论坛抖音号,抖音搜索“昆山论坛”,或搜索抖音号:ksbbs
引用
举报
发帖
回复
返回列表
1
2
3
4
http://www.ksbbs.com
访问内容超出本站范围,不能确定是否安全
继续访问
取消访问
快速回复
限76 字节
如果您提交过一次失败了,可以用”恢复数据”来恢复帖子内容
您目前还是游客,请
登录
或
注册
进入高级模式
文字颜色
发 布
回复后跳转到最后一页
上一个
下一个
隐藏
快速跳转
社会民生
聚焦昆山
立法直通车
昆山分类信息
昆山市教育局
昆山公交集团
昆山市交通运输局
消费维权
美丽昆山
昆山百事通
文明昆山
全民反诈
城市生活
玉山广场
昆友圈
走遍天下
昆山招聘
KBS车友会
昆山体育
房产装修
房产大家谈
房产租售
酸甜苦辣话装修
生活资讯
家有儿女
美食天地
花草宠物
交友婚恋
闲花文字
数码摄影
认证商家
论坛商家
昆山商情
社区站务
论坛事务
删帖声明
关闭
关闭
选中
1
篇
全选
喜欢就打赏个小红包吧
请选择打赏金额
1元
5元
10元
30元
100元
200元
您是游客,登陆后可以使用赏金钱包
赏金钱包支付
微信扫码支付
赏
我要提现
用微信扫描二维码完成支付
电话:0512-57993030
工作日 8:30-17:00在线
广告热线:18012662666
紧急联系:18888186330