夜间模式
  • 8150阅读
  • 1回复

[装修]2018实景作品 | 时光凝聚,你浅笑安然,如花开枝蔓 [复制链接]

上一主题 下一主题
帅哥离线印象水仙设计
级别: 家装商家
发帖
11310
昆币
19361 枚
只看楼主 使用道具 电梯直达
楼主  发表于: 2018-05-24 , 来自:江苏省0==


项目简介:

装修风格:美式风
装修面积:180㎡,两套打通
装修公司:印象水仙室内设计



设计理念:本案一家四口,有二个活泼可爱的儿子,男主人公是位非常有品位的绅士,他们对生活的品质需求很高,比较偏爱传统美式。


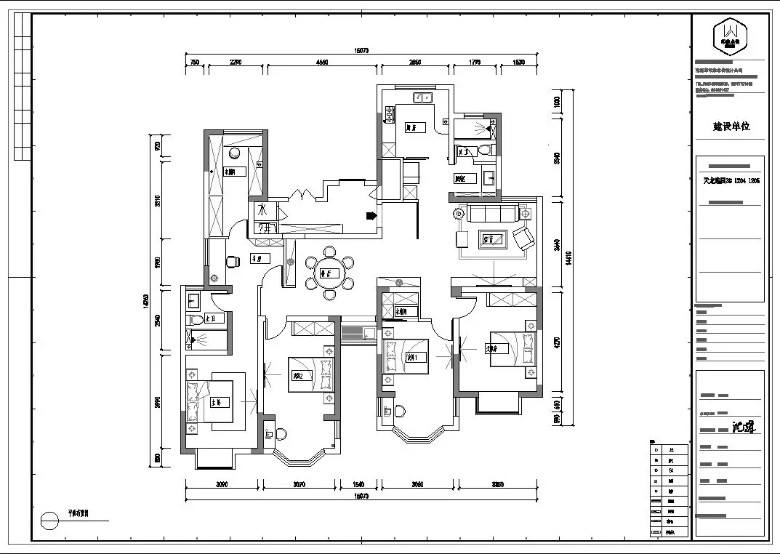
原始布置图

平面布置图


/
/
Hallway


玄关是一块大空地,沿着墙壁设了装饰柜,满足储藏鞋物的功能。





全景三维图 客厅


/
/
Living Room






客厅还是保持简洁明快,因此墙地面基本统一在一个色系中。家具是深棕色的传统造型,都比较搭建,也保留了美式风格古朴、自然的特点。电视墙面选择了拱形石膏与文化石,让美式风格的家,多添一丝田园气息。




全景三维图 餐厅


/
/

Drining Room



开放式布局的餐厅显得开阔通透,造型优雅而简约的餐桌椅,搭配复古造型的灯饰,经典的嵌入式酒柜提升了空间的格调。

/
/
Kitchen


厨房的墙砖是最先吸引我的地方,彩色小方块,有一种优雅的俏皮感。





全景三维图如下



/
/

Bedroom



在主卧的设计上,温润的木制家具彰显着细腻与典雅,并通过精致的灯饰提升空间的格调,以床为视觉中心,墨绿色花纹床头背景为背景,营造了整个空间温馨的古典气质;飘窗下方做了收纳设计,既实用又美观。空间采光效果极佳,以舒服轻松的方式呈现,暖黄色的卧室显得静谧优雅。





/
/

secondary bedroom






次卧的设计遵循温馨随意的法则,大面积落地窗使得卧室采光充足,并以床为视觉中心,通过温润的木地板及木质家具彰显细腻与舒适,营造整个空间素雅舒服的氛围。空间加入小清新的元素,阳台位置有书桌,方便小孩学。


/

/
children's bedroom



儿童房以清新米黄色为主色调,星星图案的墙纸背景搭配两幅卡通画做装饰,童趣十足,整体空间显得温馨有爱。




/
/

Study



书房采光充足,格局通透,棕色木地板给人温润踏实的感受,整体营造了舒适的阅读环境,办公设备及书籍体现屋主高雅的兴趣爱好。设计师以紧贴墙面的书桌和置物架搭配精致的饰品,营造了舒适的阅读环境,而背后的储物柜更满足了屋住的储藏需求。


/
/
Rest room



[ 此帖被印象水仙设计在2018-05-24 18:08重新编辑 ]
爆料有奖!关注昆山论坛抖音号,抖音搜索“昆山论坛”,或搜索抖音号:ksbbs
 
离线偶然璐过
级别: 昆山新人
发帖
221
昆币
301 枚
沙发  发表于: 2018-05-24 , 来自:未知0==
这是传统美式吧?
爆料有奖!关注昆山论坛抖音号,抖音搜索“昆山论坛”,或搜索抖音号:ksbbs
 
快速回复
限76 字节
如果您提交过一次失败了,可以用”恢复数据”来恢复帖子内容
 
上一个 下一个