凯悦花园现代风格效果图欣赏
施工单位:朗通装饰
项目地址:凯悦花园
设计师:设计团队
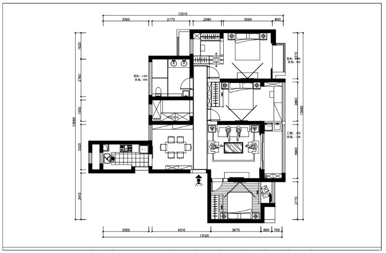
户型面积:210㎡
装修风格:现代风格
主要材料:有色乳胶漆、地砖、地板、软装等等。
设计理念:本案为一套210㎡的四居室,业主希望新屋简约大方,又期望其中可以融入一些时尚元素,令现代化的空间可以突破常规,简约而不简单。
方案图:

▲ 步入客厅,整个空间是以黑白两色为主色调,沙发抱枕辅以亮色进行点缀,跳跃的色彩+时尚元素突破常规,使空间简约而不简单。

▲ 深色的窗帘和KD板在质感上让客厅更有格调,柔和的光感也让空间更有艺术韵味。

▲ 餐厅的色彩相较于客厅来说低调的多,整体更为柔和。

▲ 偏日常的场景摆设,更容易拉近家庭成员之间的距离。

餐边柜代替空墙既美化空间,又提升实用性,方便屋主收纳。

▲ 无论是餐厅还是客厅,设计师在灯具选择上都别出心裁,独特的造型感让现代空间不落俗套,简约又凸显了精致气息。

▲ 走廊,没有漏掉一丝一毫的可利用空间,将衣帽柜设置在这里提升空间利用率。

▲ 主卧无论是配色还是软装选择上,都是从现代时尚感出发,营造一个理性的睡眠空间。

▲ 深色床品更有安稳感,衣柜设计既实用又非常节省空间,白色的柜门还可以保持墙面整洁的观感。