夜间模式
  • 9052536阅读
  • 3457回复

[商家活动]【朗通装饰】囊括昆山各大小区、各种户型、不同风格的经典设计案例 [复制链接]

上一主题 下一主题
发帖
687
昆币
758 枚
2320楼 发表于: 2020-03-23 , 来自:江苏省0==
关注中
爆料有奖!关注昆山论坛抖音号,抖音搜索“昆山论坛”,或搜索抖音号:ksbbs
 
离线朗通装饰
级别: 家装商家

发帖
17076
昆币
14379 枚
2321楼 发表于: 2020-03-24 , 来自:江苏省0==
回 昆山第一剑 的帖子
昆山第一剑:关注中[表情] (2020-03-23 10:12)

感谢关注
爆料有奖!关注昆山论坛抖音号,抖音搜索“昆山论坛”,或搜索抖音号:ksbbs
 
离线朗通装饰
级别: 家装商家

发帖
17076
昆币
14379 枚
2322楼 发表于: 2020-03-25 , 来自:江苏省0==
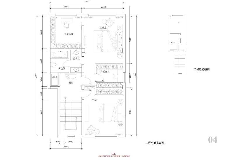
【朗通装饰】现代简约 | 一见倾心,非你莫属!

美家信息  Information  
设计 | Design :朗通设计团队
施工 | Construction :朗通施工团队
地址 | Address :九方城
面积 | Area:120㎡
户型图:

设计理念   Idea
这是一套,现代风格的装修案例,设计师使用了大量的浅色做基础,加入实用与美观兼具的软装,将屋主喜欢的“温柔”感诠释地恰到好处。







爆料有奖!关注昆山论坛抖音号,抖音搜索“昆山论坛”,或搜索抖音号:ksbbs
 
离线空心面包
级别: 昆山新人
发帖
121
昆币
130 枚
2323楼 发表于: 2020-03-26 , 来自:江苏省0==
看着蛮舒服的效果图
爆料有奖!关注昆山论坛抖音号,抖音搜索“昆山论坛”,或搜索抖音号:ksbbs
 
离线朗通装饰
级别: 家装商家

发帖
17076
昆币
14379 枚
2324楼 发表于: 2020-03-27 , 来自:江苏省0==
白鹭湾别墅,新中式 | 古色古香,传承东方情韵!


美家信息  Information  
设计 | Design :朗通设计团队
施工 | Construction :朗通施工团队
地址 | Address :白鹭湾
面积 | Area:260㎡
方案图:




设计理念   Idea
客厅空间规整而方正,而经设计语言加工过的线条,每一笔,都独具深意。吊顶的线条,简约而时尚,将新中式与现代简约完美结合,驱散了乏味的繁琐。背景墙更是采用独特中式元素,流畅的线条,使空间更为舒展,让快节奏的生活慢了下来!












爆料有奖!关注昆山论坛抖音号,抖音搜索“昆山论坛”,或搜索抖音号:ksbbs
 
离线朗通装饰
级别: 家装商家

发帖
17076
昆币
14379 枚
2325楼 发表于: 2020-03-28 , 来自:江苏省0==
今天星期天欢迎大家上门咨询哦
爆料有奖!关注昆山论坛抖音号,抖音搜索“昆山论坛”,或搜索抖音号:ksbbs
 
级别: 昆山新人
发帖
484
昆币
527 枚
2326楼 发表于: 2020-03-29 , 来自:江苏省0==
回 朗通装饰 的帖子
朗通装饰:【朗通装饰】极简至奢 | 高级的质朴生活
美家信息  Information  
设计 | Design :朗通设计团队
施工 | Construction :朗通施工团队
面积 | Area:180㎡
....... (2020-03-19 09:50)

好稀饭的感觉
爆料有奖!关注昆山论坛抖音号,抖音搜索“昆山论坛”,或搜索抖音号:ksbbs
 
离线朗通装饰
级别: 家装商家

发帖
17076
昆币
14379 枚
2327楼 发表于: 2020-03-30 , 来自:江苏省0==
圣雅园美式风格实景图欣赏


美家信息  Information  
设计 | Design :朗通设计团队
施工 | Construction :朗通施工团队
地址 | Address :圣雅园
面积 | Area:150㎡
设计理念   Idea
这是一套美式风格的装修案例,屋主喜欢美式的优雅,又期望自己家可以跳脱出美式的固定模式,能带有现代时尚感,打造一个精致高级的理想住所。









爆料有奖!关注昆山论坛抖音号,抖音搜索“昆山论坛”,或搜索抖音号:ksbbs
 
离线冷曦
级别: 昆山新人
发帖
189
昆币
226 枚
2328楼 发表于: 2020-03-31 , 来自:江苏省0==
回 朗通装饰 的帖子
朗通装饰:圣雅园美式风格实景图欣赏
美家信息  Information  
设计 | Design :朗通设计团队
施工 | Construction :朗通施工团队
....... (2020-03-30 10:28)

哇 我喜欢这套的这种感觉
爆料有奖!关注昆山论坛抖音号,抖音搜索“昆山论坛”,或搜索抖音号:ksbbs
 
离线朗通装饰
级别: 家装商家

发帖
17076
昆币
14379 枚
2329楼 发表于: 2020-04-01 , 来自:江苏省0==
回 冷曦 的帖子
冷曦:哇 我喜欢这套的这种感觉[表情] (2020-03-31 09:33)

可以预约看完工现场哦
爆料有奖!关注昆山论坛抖音号,抖音搜索“昆山论坛”,或搜索抖音号:ksbbs
 
快速回复
限76 字节
如果您提交过一次失败了,可以用”恢复数据”来恢复帖子内容
 
上一个 下一个