夜间模式
  • 9051312阅读
  • 3457回复

[商家活动]【朗通装饰】囊括昆山各大小区、各种户型、不同风格的经典设计案例 [复制链接]

上一主题 下一主题
离线bubby
级别: 昆山新人
发帖
291
昆币
306 枚
2350楼 发表于: 2020-04-23 , 来自:江苏省0==
回 朗通装饰 的帖子
朗通装饰:新中式样板丨东方的现代艺韵
美家信息  Information  
设计 | Design :朗通设计团队
施工 | Construction :朗通施工团队
面积 | Area:180㎡
....... (2020-04-22 10:06)

豪宅
爆料有奖!关注昆山论坛抖音号,抖音搜索“昆山论坛”,或搜索抖音号:ksbbs
 
在线朗通装饰
级别: 家装商家

发帖
17076
昆币
14379 枚
2351楼 发表于: 2020-04-24 , 来自:江苏省0==
回 bubby 的帖子
bubby:豪宅[表情] (2020-04-23 09:38)

欢迎关注朗通装饰,小编会不断更新美图哦
爆料有奖!关注昆山论坛抖音号,抖音搜索“昆山论坛”,或搜索抖音号:ksbbs
 
在线朗通装饰
级别: 家装商家

发帖
17076
昆币
14379 枚
2352楼 发表于: 2020-04-25 , 来自:江苏省0==
现代简约 | 隐藏着一个张扬的灵魂

美家信息  Information  
设计 | Design :朗通设计团队
施工 | Construction :朗通施工团队
地址 | Address :清风华院
面积 | Area:200㎡
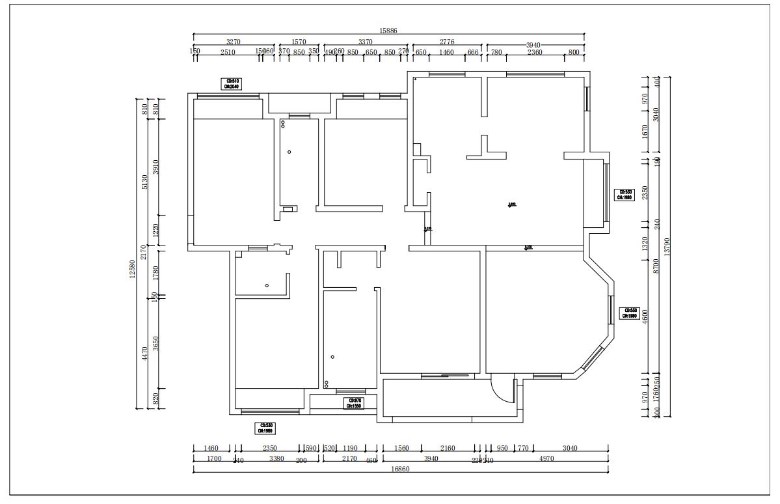
户型图:

方案图:

本案业主从事教育行业,非常关注居住的舒适度。设计师围绕他的核心需求,将所见所闻、沿途风景,都融入到了生活细节中。

爆料有奖!关注昆山论坛抖音号,抖音搜索“昆山论坛”,或搜索抖音号:ksbbs
 
在线朗通装饰
级别: 家装商家

发帖
17076
昆币
14379 枚
2353楼 发表于: 2020-04-26 , 来自:江苏省0==
现代简约 | 隐藏着一个张扬的灵魂


美家信息  Information  
设计 | Design :朗通设计团队
施工 | Construction :朗通施工团队
地址 | Address :清风华院
面积 | Area:200㎡


[ 此帖被朗通装饰在2020-04-26 10:08重新编辑 ]
爆料有奖!关注昆山论坛抖音号,抖音搜索“昆山论坛”,或搜索抖音号:ksbbs
 
在线朗通装饰
级别: 家装商家

发帖
17076
昆币
14379 枚
2354楼 发表于: 2020-04-27 , 来自:江苏省0==
欢迎关注朗通装饰,小编不断更新美图哦
爆料有奖!关注昆山论坛抖音号,抖音搜索“昆山论坛”,或搜索抖音号:ksbbs
 
离线业余就行
级别: 昆山新人
发帖
214
昆币
262 枚
2355楼 发表于: 2020-04-29 , 来自:江苏省0==
  
爆料有奖!关注昆山论坛抖音号,抖音搜索“昆山论坛”,或搜索抖音号:ksbbs
 
在线朗通装饰
级别: 家装商家

发帖
17076
昆币
14379 枚
2356楼 发表于: 2020-04-30 , 来自:江苏省0==
简单、随兴、自在,便是生活超美的样子!







爆料有奖!关注昆山论坛抖音号,抖音搜索“昆山论坛”,或搜索抖音号:ksbbs
 
在线朗通装饰
级别: 家装商家

发帖
17076
昆币
14379 枚
2357楼 发表于: 2020-05-01 , 来自:江苏省0==
五一劳动节:致敬每一个生活努力的人!

今天是五一劳动节,
它是劳动者的季节!
它是最光荣的季节!
更是属于我们的季节!
梦想的花朵,
只有以劳动浇灌才能绚丽地绽放;
劳动者们以任何形式付出的辛苦,
都值得肯定和尊重。
在很多人熟悉或者不熟悉的各个角落,
都有无数个辛勤劳动的身影。
他们用双肩扛起责任,
用汗水致敬职责,
用良心回馈社会,
用努力装点世界,
……
他们的名字各不相同,
他们工作的岗位各有千秋。
他们是教师,医生,警察,环卫工人……
他们兢兢业业、努力奉献,
每一份努力,都值得被尊敬和肯定。
向劳动者致敬,
您辛苦了,节日快乐!

爆料有奖!关注昆山论坛抖音号,抖音搜索“昆山论坛”,或搜索抖音号:ksbbs
 
在线朗通装饰
级别: 家装商家

发帖
17076
昆币
14379 枚
2358楼 发表于: 2020-05-02 , 来自:江苏省0==
5.1朗通装饰正常上班哦!欢迎大家咨询装修哦
爆料有奖!关注昆山论坛抖音号,抖音搜索“昆山论坛”,或搜索抖音号:ksbbs
 
在线朗通装饰
级别: 家装商家

发帖
17076
昆币
14379 枚
2359楼 发表于: 2020-05-03 , 来自:江苏省0==
简约轻奢,美的直撩人心!


美家信息  Information  
设计 | Design :朗通设计团队
施工 | Construction :朗通施工团队
面积 | Area:167㎡
设计理念   Idea      
总有些物品在你第一眼看到时就会惊艳它的质感和气质,家居设计中若是能运用到这些自带质感的物品,那整个家的气质便会截然不同。





爆料有奖!关注昆山论坛抖音号,抖音搜索“昆山论坛”,或搜索抖音号:ksbbs
 
快速回复
限76 字节
如果您提交过一次失败了,可以用”恢复数据”来恢复帖子内容
 
上一个 下一个