夜间模式
  • 57295阅读
  • 46回复

欢迎大家上传户型,朗通装饰设计师在线为您解析! [复制链接]

上一主题 下一主题
离线朗通装饰
级别: 家装商家

发帖
16957
昆币
14175 枚
10楼 发表于: 2020-03-21 , 来自:江苏省0==
zzlifs:
86平方,西边套。一家三口加丈母娘给我们带孩子。希望可以多收纳,卫生间和客厅之间能否屏风隔断。不好利用的地方太多了。谢谢
[图片]

您好!这个户型我们公司做过还是蛮多的。如果从储物功能设计,厨房和入户门这面墙可以敲掉做成鞋柜。在玄关这排可以买一排成品柜子,既美观又实用。主卧的飘窗是否可以敲掉,敲掉做成书桌和储物柜。卫生间做干湿分离加隔断,买台盆镜子时从风水上考虑要有柜门的!
下面跟您分享我们去年设计的效果图。给您参考下!




爆料有奖!关注昆山论坛抖音号,抖音搜索“昆山论坛”,或搜索抖音号:ksbbs
 
离线朗通装饰
级别: 家装商家

发帖
16957
昆币
14175 枚
11楼 发表于: 2020-03-21 , 来自:江苏省0==
help8002:
厕所有点小,北边房间也偏小
[图片]


您好!您这个户型我们有做过案例。1.从户型设计我们要注意风水,入户门避免对着卫生间门。示意图如下:


2北面房间的后门要保留吗?如果不保留可以改动您现有的设计!
您如还有什么问题,可以加我微信:雅丽13732666765
爆料有奖!关注昆山论坛抖音号,抖音搜索“昆山论坛”,或搜索抖音号:ksbbs
 
离线朗通装饰
级别: 家装商家

发帖
16957
昆币
14175 枚
12楼 发表于: 2020-03-21 , 来自:江苏省0==

大家有什么装修问题,或者报价明细等;可以加我微信:雅丽13732666765
爆料有奖!关注昆山论坛抖音号,抖音搜索“昆山论坛”,或搜索抖音号:ksbbs
 
离线朗通装饰
级别: 家装商家

发帖
16957
昆币
14175 枚
13楼 发表于: 2020-03-21 , 来自:江苏省0==
  
爆料有奖!关注昆山论坛抖音号,抖音搜索“昆山论坛”,或搜索抖音号:ksbbs
 
美女离线海盗公主殿下
发帖
1848
昆币
2608 枚
14楼 发表于: 2020-03-21 , 来自:江苏省0==
涵心:楼下122,楼上79
[图片]
[图片]
 (2020-03-20 10:16) 

这是哪个小区的呀 喜欢~
爆料有奖!关注昆山论坛抖音号,抖音搜索“昆山论坛”,或搜索抖音号:ksbbs
 
帅哥离线fluidwangtao
发帖
736
昆币
1106 枚
15楼 发表于: 2020-03-21 , 来自:江苏省0==
125.7平的建筑面积
爆料有奖!关注昆山论坛抖音号,抖音搜索“昆山论坛”,或搜索抖音号:ksbbs
 
离线三月星
级别: 昆山新人
发帖
306
昆币
437 枚
16楼 发表于: 2020-03-22 , 来自:未知0==
这个房型怎么弄?
爆料有奖!关注昆山论坛抖音号,抖音搜索“昆山论坛”,或搜索抖音号:ksbbs
 
美女离线王雅婷11
发帖
963
昆币
1676 枚
17楼 发表于: 2020-03-22 , 来自:江苏省0==
此户型127.49
爆料有奖!关注昆山论坛抖音号,抖音搜索“昆山论坛”,或搜索抖音号:ksbbs
 
离线朗通装饰
级别: 家装商家

发帖
16957
昆币
14175 枚
18楼 发表于: 2020-03-22 , 来自:江苏省0==
回 fluidwangtao 的帖子
fluidwangtao:125.7平的建筑面积
[图片] (2020-03-21 22:39)

您好,这个户型有承重墙吗?您可以加我微信13732666765,发我一份承重墙结构,我这边根据尺寸、承重墙给您设计建议!
爆料有奖!关注昆山论坛抖音号,抖音搜索“昆山论坛”,或搜索抖音号:ksbbs
 
离线朗通装饰
级别: 家装商家

发帖
16957
昆币
14175 枚
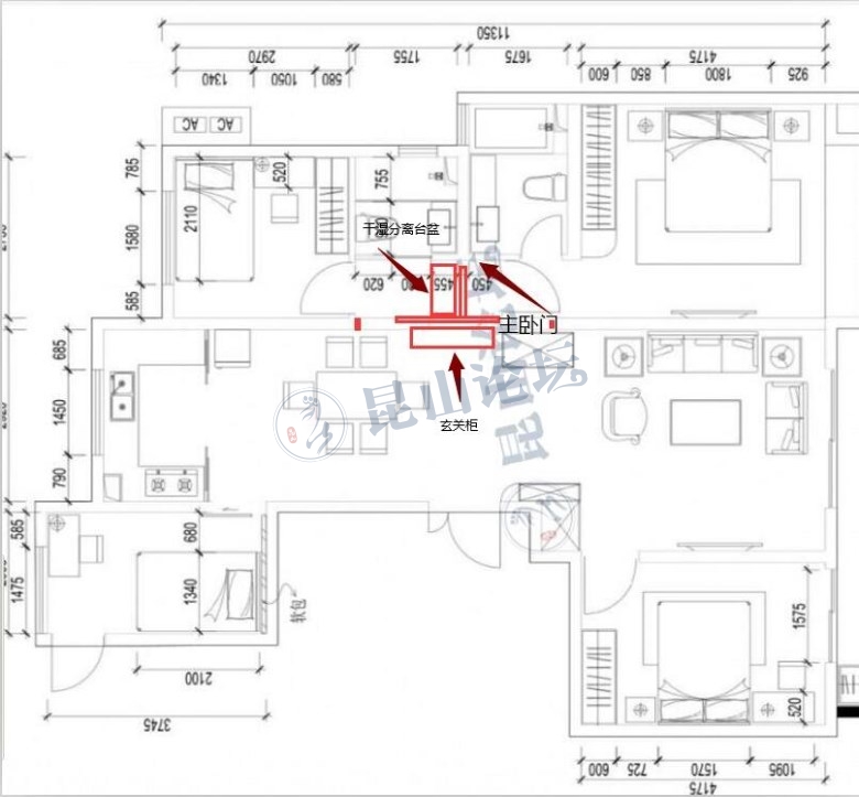
19楼 发表于: 2020-03-22 , 来自:江苏省0==
回 三月星 的帖子
三月星:这个房型怎么弄?
[图片] (2020-03-22 09:51)

您好,这个户型整体利用率还是蛮高的,户型也很端正。整体不错的!您可以加我微信:雅丽13732666765我给您发一些参考的效果图!
爆料有奖!关注昆山论坛抖音号,抖音搜索“昆山论坛”,或搜索抖音号:ksbbs
 
快速回复
限76 字节
如果您在写长篇帖子又不马上发表,建议存为草稿
 
上一个 下一个