夜间模式
  • 358622阅读
  • 859回复

【薇薇家居全案软装】装修话辛酸,说说自家装修的那些事 [复制链接]

上一主题 下一主题
美女离线小妹妹j
发帖
1111
昆币
1796 枚
720楼 发表于: 2020-12-31 , 来自:江苏省0==
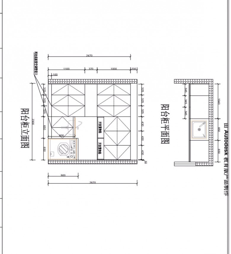
这些设计全是我一个的画的,我都还有手稿原搞,那个商家照着抄就是
爆料有奖!关注昆山论坛抖音号,抖音搜索“昆山论坛”,或搜索抖音号:ksbbs
 
美女离线小妹妹j
发帖
1111
昆币
1796 枚
721楼 发表于: 2020-12-31 , 来自:江苏省0==
安装顺序:主卧、儿童房、北边卧室、最小卧室,书柜、鞋柜、餐边柜、阳台柜







爆料有奖!关注昆山论坛抖音号,抖音搜索“昆山论坛”,或搜索抖音号:ksbbs
 
美女离线小妹妹j
发帖
1111
昆币
1796 枚
722楼 发表于: 2020-12-31 , 来自:江苏省0==
这里的每一个设计都是我的心血,设计师照着我的手稿抄出给我的
爆料有奖!关注昆山论坛抖音号,抖音搜索“昆山论坛”,或搜索抖音号:ksbbs
 
美女离线小妹妹j
发帖
1111
昆币
1796 枚
723楼 发表于: 2020-12-31 , 来自:江苏省0==
你们做柜子一定要多做挂衣发的,裤子也要挂起来。能不叠尽量不要叠
爆料有奖!关注昆山论坛抖音号,抖音搜索“昆山论坛”,或搜索抖音号:ksbbs
 
美女离线千羽千洵

发帖
2404
昆币
1083 枚
爆料
1
724楼 发表于: 2020-12-31 , 来自:江苏省0==
楼主想的很全面啊
爆料有奖!关注昆山论坛抖音号,抖音搜索“昆山论坛”,或搜索抖音号:ksbbs
 
美女离线千羽千洵

发帖
2404
昆币
1083 枚
爆料
1
725楼 发表于: 2020-12-31 , 来自:江苏省0==
这是什么风格
爆料有奖!关注昆山论坛抖音号,抖音搜索“昆山论坛”,或搜索抖音号:ksbbs
 
发帖
272
昆币
1083 枚
726楼 发表于: 2020-12-31 , 来自:江苏省0==
装修的不错,期待成品
爆料有奖!关注昆山论坛抖音号,抖音搜索“昆山论坛”,或搜索抖音号:ksbbs
 
[url][urlend4]
美女离线小妹妹j
发帖
1111
昆币
1796 枚
727楼 发表于: 2020-12-31 , 来自:江苏省0==
千羽千洵:楼主想的很全面啊 (2020-12-31 11:04) 

柜子确实想了很久
爆料有奖!关注昆山论坛抖音号,抖音搜索“昆山论坛”,或搜索抖音号:ksbbs
 
美女离线小妹妹j
发帖
1111
昆币
1796 枚
728楼 发表于: 2020-12-31 , 来自:江苏省0==
千羽千洵:这是什么风格 (2020-12-31 11:04) 

一开始想做简美,现在是混搭了
爆料有奖!关注昆山论坛抖音号,抖音搜索“昆山论坛”,或搜索抖音号:ksbbs
 
美女离线小妹妹j
发帖
1111
昆币
1796 枚
729楼 发表于: 2020-12-31 , 来自:江苏省0==
论坛家装监理:装修的不错,期待成品[表情] (2020-12-31 11:05) 

好的谢谢,明年可以成
爆料有奖!关注昆山论坛抖音号,抖音搜索“昆山论坛”,或搜索抖音号:ksbbs
 
快速回复
限76 字节
如果您在写长篇帖子又不马上发表,建议存为草稿
 
上一个 下一个