夜间模式
  • 13572阅读
  • 3回复

[装修]印象水仙|时尚现代﹢跳跃色彩,寻觅生活的无限可能 [复制链接]

上一主题 下一主题
帅哥离线印象水仙设计
级别: 家装商家
发帖
11307
昆币
19357 枚
只看楼主 使用道具 电梯直达
楼主  发表于: 2021-01-30 , 来自:江苏省0==



业主说:”我不知道我想要的是什么风格,可是我知道我想要的家是怎么样的,我希望找到一个契合的设计师,我喜欢的,正好是你也喜欢的。”

面积 / 133㎡
风格 / 现代风
户型 / 三室两厅两卫
硬装设计 / 印象水仙
软装设计 / 印象水仙  
施工单位 / 印象水仙






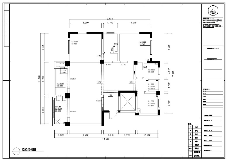
原始结构图






本身户型功能分区明确,也较为合理,而且非常契合业主的整体需求,所以大空间上未做改动,只是局部小空间有些尺寸的小调整,再者考虑风水和空间收纳,门洞做了更改。


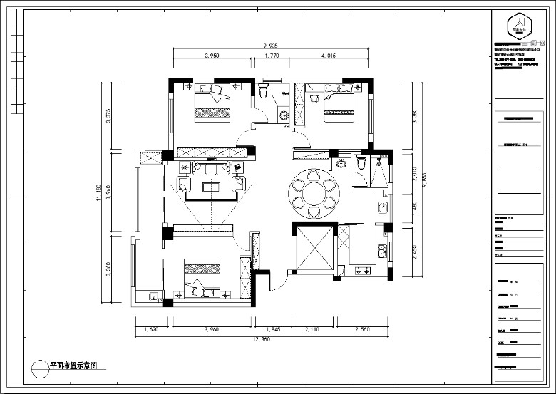
平面布置图






经过业主和设计师的深入沟通设计,进门左侧的门洞改到西侧,不仅有了鞋柜空间,而且隐形门的设计,让电视背景墙更加整体,美观大方;原始户型卫生间正对进门处,因此设计师做了空间格局的调整和加入了隐形门的设计,让空间布局更加合理。


▼完工实景100%还原了下面的三维彩图设计。






LIVING ROOM






客厅是一家三口平日里的休闲娱乐场所,沙发背景,设计师选择浅色调硬包,为屋主营造放松舒缓的氛围;电视背景墙选择木饰面、浅色大理石及电视台面的结合,令空间层次感更为突出。





隐形门的设计,让电视背景墙更加整体化。






砖红色L型布艺沙发为空间注入活力,利落的金属线条和流畅的空间动线也实现屋主想要的简约质感。





拼色的单人椅,高级灰的撞色之美。






CORRIDOR






整个空间,设计师选择了浅色调来强化通透感,配合少之又少的装饰物营造出简约清爽的氛围。










DINING ROOM






客餐厅一体,让空间在视觉上更为通透,圆桌不仅有着圆满的寓意,还能节约空间,餐厅不会显得拥挤。






定制的黑色餐边柜,实用的同时,搭配艺术壁画和花艺,餐厅空间看起来非常高级。






KITCHEN






U型设计扩大操作台面,同时也让厨房收纳空间增加,灰色的台面配上白色大爵士白墙地砖让厨房脱离了平庸,不加装饰还原现代风范。


BEDROOM1






深蓝色背景墙配合金色壁灯让卧室气质瞬间提升,橘色点缀驱走沉闷,让卧室空间灵动活跃。






BEDROOM2






硬装选择灰色,黑色的皮床,白色的床头柜,橘色窗帘点缀着暗色系空间,床头背景的造型设计增加了空间的层次感,和煦的光线透过窗帘轻洒于地板,于安逸的氛围中感受一束光的温柔。


BEDROOM3






硬装选择鲜活的淡绿色,家具一律选择浅色系,让空间看起来更加舒适,圆形卡通壁画的选择让空间更加活力。


BALCONY






阳台,和煦的日光轻盈入室,感受自然的光影。


TOILET






客卫,做了干湿分离,极大程度上也方便空间主人生活,便于打理。






▲内卫区域


[ 此帖被印象水仙设计在2021-01-30 09:41重新编辑 ]
本帖评分记录
是为爱恋 昆币 +1 -来自昆山论坛APP 2021-01-31
墓王 昆币 +1 -来自昆山论坛APP 2021-01-30
2条评分昆币+2
爆料有奖!关注昆山论坛抖音号,抖音搜索“昆山论坛”,或搜索抖音号:ksbbs
 
离线xiangshuigir
级别: 昆山新人
发帖
371
昆币
603 枚
沙发  发表于: 2021-01-31 , 来自:江苏省0==
又把南通的图拿来,啧啧啧
爆料有奖!关注昆山论坛抖音号,抖音搜索“昆山论坛”,或搜索抖音号:ksbbs
 
离线是为爱恋
级别: 昆山新人
发帖
118
昆币
165 枚
板凳  发表于: 2021-01-31 , 来自:江苏省0==
格局改的爱了
爆料有奖!关注昆山论坛抖音号,抖音搜索“昆山论坛”,或搜索抖音号:ksbbs
 
级别: 昆山新人
发帖
155
昆币
215 枚
地板  发表于: 2021-01-31 , 来自:江苏省0==
恭喜完工
爆料有奖!关注昆山论坛抖音号,抖音搜索“昆山论坛”,或搜索抖音号:ksbbs
 
快速回复
限76 字节
如果您提交过一次失败了,可以用”恢复数据”来恢复帖子内容
 
上一个 下一个