|
|
楼主 发表于: 2021-02-19
, 来自:江苏省0==
113㎡现代混搭户型 / 三室两厅两卫硬装设计 / 印象水仙软装设计 / 印象水仙 施工单位 / 印象水仙
 主家说:买这个房子,是想给我自己的小家庭有个私人空间,我,儿子,还有最爱的她,在属于我们自己的小天地里放肆的欢笑玩耍,四季三餐体验人间烟火味儿。
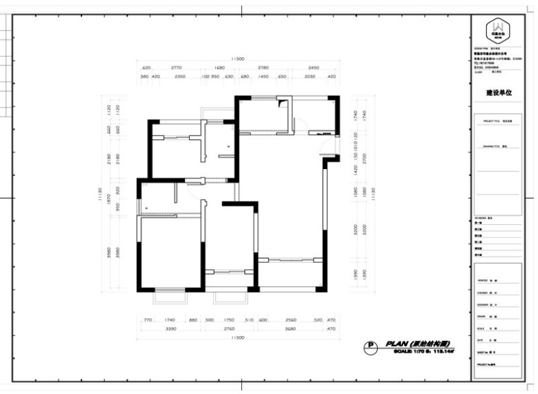
 客户需求 本案业主是一对热爱生活的年轻夫妻,考虑到未来父母会过来帮忙带孩子,希望通过设计师的设计,多一些收纳空间,营造出温馨舒适、有朝气的室内空间氛围。 户型改造 原户型卫生间的布局规划并不十分理想,因此设计师对主卫和内卫空间进行了重新规划,每个空间都有扩大门洞,以提升空间的利用效率,同时增加收纳柜,满足了美观的同时满足了业主的收纳需求。 原始结构图
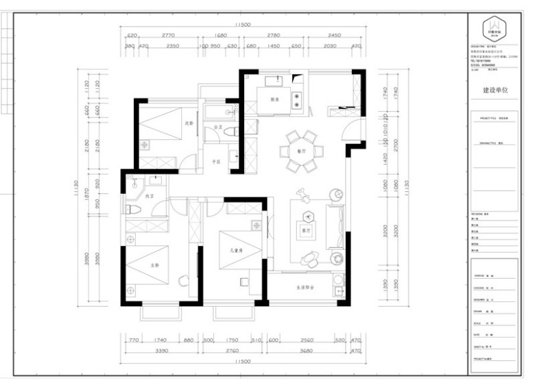
 平面布置图
 ♕ LIVING ROOM 客厅

 黄色单人椅在看似寡淡的色调中独特亮眼,电视背景选择大面积蓝色,空间瞬间鲜活了起来,黑色地台更是落落大方,精致的生活就是这么简单。
 米色沙发增添了一抹温柔,壁画加抱枕的调色设计,阳光洒进来的那一刻,衬托了一室好时光。
 ♕ DINING ROOM 餐厅
 移步餐区,餐边柜嵌入式家电,合理利用了空间而且清晰的木质纹理勾勒出生活的质感与品位,家人围坐在柔和的灯光下,收获一份由口入心的慰藉。
 ♕ KITCHEN 厨房
 厨房的设计从颜色到橱柜用具更加简约,为业主营造了一个干净整洁清爽的下厨环境。 ♕ MASTER'S ROOM 主卧
深灰色与蓝色的高级组合,清新而梦幻,爱马仕橘拼灰色窗帘非常精致,简约的家具,干净利落的线条彰显主人特性。
 衣柜加上进门左侧一排定制柜,让主卧空间保留了足够的收纳,局部开放式的设计,可以放置装饰小物,给空间添彩;简约式书桌,更是满足了业主学的空间。
 ♕ KID'S ROOM 儿童房
 天蓝色的墙上挂了两幅多边形的卡通壁画,可爱讨喜,充满童趣;浅色系的家具,仿佛能让梦境也变得神秘安然。 ♕ WASHROOM 卫生间
 干湿分离的设计,为一家的生活提供便利;现代化的设计,简约大方。
|