|
楼主 发表于: 2022-02-15
, 来自:江苏省0==

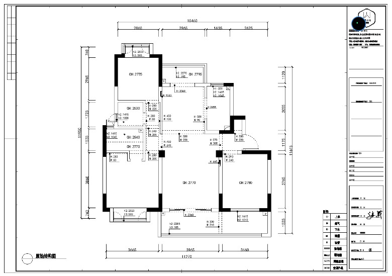
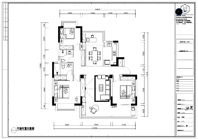
Low-key gray,a true premium color.私宅 Follow the wind,Heart belongs.随风千里 心之所归 面积风格 | 120㎡ 现代风设计单位 | 印象水仙软装设计 | 印象水仙施工单位 | 印象水仙原始结构图→平面布置图


设计师充分考量业主的设计需求,将怀旧的港式情怀与现代生活需求相结合,木色的堆叠,稳重而温暖,石材的流露,随性而直率;简洁明快的现代风,满满载入空间之中,为业主还原一个生活质感与艺术美感并存的理想居所。
01/ 客厅Living Room


步入客厅,零压感的开放空间,通过硬装和软装的充分融合,让空间呈现出高级的质感。 流畅的线条勾画出居室的轮廓,通过材质的巧妙变化,增添空间更为丰富的层次与内涵,于皮质、布艺、木材、石材等材质中衍生出和谐的乐趣。

电视背景墙一侧柜体灯带的设计,营造冷暖相宜的家居温度,里面摆放着屋主喜爱的手办,科技感十足。

02/ 餐厅 Dining Room

木的质感,既有毅力韧性,又兼岁月沉淀的沉静与温柔。大块面的木质背景墙,为居者营造一方独处空间。简约的布局下,任凭两盏个性的吊顶,多变、创意、灵动的灯光,恰似生活的律动。 阳光透过浅蓝色窗帘洒进屋内,将一切繁复在平淡间浑然化解。

设计师根据业主需求,水吧台及家电的嵌入式设计兼具美观与实用性。充分利用空间,打造收纳区,造型简单纯碎,以利落的线条与块面来打造内敛的高级感。
03/ 厨房 Kitchen

厨房空间,集颜值与功能为一体;毫不拘束的空间里,让烹饪的仪式感无限放大。
04/ 主卧Bedroom

一入门,扑面而来是一股清新淡雅的海洋气息;蓝色遇上白色,呈现出圣托里尼般的简单烂漫;触手可及的净白,给予身心最至高无上的体验。 床头一侧金属质感的吊灯,另一侧选择了是一款月亮款的壁灯,营造空间氛围感,意境很美。

卧室的清爽,从轻盈的配色中凸显;卧室的浪漫,从隐约的灯光中展现。这股无形的充盈感,一直蔓延到套间的洗浴空间。
05/ 次卧Bedroom

灰色主调、黑色的双人床搭配纤细的吊灯、蓝色窗帘与温柔的床饰,为空间增添几分雅致格调。
06/ 卫生间Wash Room
 移步卫浴空间,大面积灰色石材铺贴营造出内敛的高级质感。空间雅奢兼备,纯净且充满自然灵动。
|