夜间模式
  • 247344阅读
  • 197回复

时代悦府开工,立帖记录一下装修过程,留个纪念。 [复制链接]

上一主题 下一主题
美女离线小熙熙2011
级别: 昆山新人
发帖
254
昆币
593 枚
只看楼主 使用道具 电梯直达
楼主  发表于: 2020-04-13 , 来自:江苏省0==
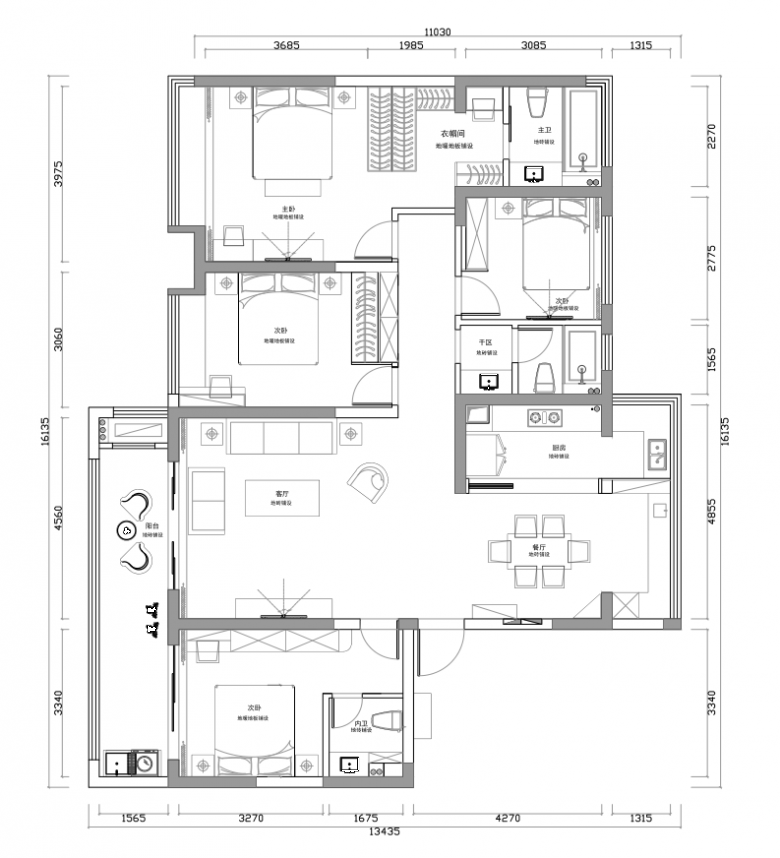
四年一轮回,没想到这么快又可以开始新房装修只能说运气太好,摇号中了。等待拿房的一年,因为住的近,没事就要和老公散步去悦府走一圈,在期待和纠结中,终于拿房了。先上几张小区美图。
本帖评分记录
艹大神 昆币 +1 -来自昆山论坛APP 2020-12-22
明珠空调小姚 昆币 +1 -来自昆山论坛APP 2020-12-10
小胡同志 昆币 +1 -来自昆山论坛APP 2020-11-30
骑单车 昆币 +1 -来自昆山论坛APP 2020-11-22
塞福缇 昆币 +1 -来自昆山论坛APP 2020-11-08
taotao911 昆币 +1 -来自昆山论坛APP 2020-08-26
林必成 昆币 +1 -来自昆山论坛APP 2020-08-09
赖燕峰 昆币 +1 -来自昆山论坛APP 2020-05-29
小熙熙2011 昆币 +1 -来自昆山论坛APP 2020-05-27
yuki1225 昆币 +1 -来自昆山论坛APP 2020-05-14
23条评分昆币+23
爆料有奖!关注昆山论坛抖音号,抖音搜索“昆山论坛”,或搜索抖音号:ksbbs
 
美女离线小熙熙2011
级别: 昆山新人
发帖
254
昆币
593 枚
沙发  发表于: 2020-04-13 , 来自:江苏省0==
前一套房子装修之后,便和设计师成了朋友,所以这次一如既往的选择了他 有了上一套房子的装修经验,这次似乎没有那么多的手足无措,一步一脚印,希望可以事半功倍 ,沟通了几次就确定了设计方案,签了合同,定了开工日期。 4月15日,黄道吉日,期待
本帖评分记录
cecily 昆币 +1 -来自昆山论坛APP 2020-06-13
good82 昆币 +1 -来自昆山论坛APP 2020-04-13
2条评分昆币+2
爆料有奖!关注昆山论坛抖音号,抖音搜索“昆山论坛”,或搜索抖音号:ksbbs
 
美女离线陈铃铛
发帖
1211
昆币
3742 枚
板凳  发表于: 2020-04-13 , 来自:江苏省0==
多少平方?装修总价多少?参考下,谢谢
本帖评分记录
荣盛门窗 昆币 +1 -来自昆山论坛APP 2020-04-13
1条评分昆币+1
爆料有奖!关注昆山论坛抖音号,抖音搜索“昆山论坛”,或搜索抖音号:ksbbs
 
美女离线小熙熙2011
级别: 昆山新人
发帖
254
昆币
593 枚
地板  发表于: 2020-04-13 , 来自:江苏省0==
陈铃铛:多少平方?装修总价多少?参考下,谢谢 (2020-04-13 13:44) 

183面积的,也是邻居吗
爆料有奖!关注昆山论坛抖音号,抖音搜索“昆山论坛”,或搜索抖音号:ksbbs
 
美女离线罗艺
级别: 昆山新人
发帖
467
昆币
1072 枚
4楼 发表于: 2020-04-13 , 来自:江苏省0==
完美户型
爆料有奖!关注昆山论坛抖音号,抖音搜索“昆山论坛”,或搜索抖音号:ksbbs
 
美女离线陈铃铛
发帖
1211
昆币
3742 枚
5楼 发表于: 2020-04-13 , 来自:江苏省0==
不是不是,我的没你的面积大另一个小区的,就是想参考下精装的价格,我的小,130多平
爆料有奖!关注昆山论坛抖音号,抖音搜索“昆山论坛”,或搜索抖音号:ksbbs
 
美女离线荣盛门窗
级别: 禁止发言

发帖
7737
昆币
8552 枚
6楼 发表于: 2020-04-13 , 来自:江苏省0==
用户被禁言,该主题自动屏蔽!
爆料有奖!关注昆山论坛抖音号,抖音搜索“昆山论坛”,或搜索抖音号:ksbbs
 
美女离线小熙熙2011
级别: 昆山新人
发帖
254
昆币
593 枚
7楼 发表于: 2020-04-13 , 来自:江苏省0==
陈铃铛:不是不是,我的没你的面积大[表情]另一个小区的,就是想参考下精装的价格,我的小,130多平 (2020-04-13 14:08) 

半包,14万。
本帖评分记录
陈铃铛 昆币 +1 -来自昆山论坛APP 2020-04-13
1条评分昆币+1
爆料有奖!关注昆山论坛抖音号,抖音搜索“昆山论坛”,或搜索抖音号:ksbbs
 
美女离线装修版客服
发帖
10174
昆币
22137 枚
8楼 发表于: 2020-04-13 , 来自:江苏省0==
楼主家开工了吗?可以来参加本届同济杯装修日记大赛哦 参赛就有机会获得5888元现金!
https://bbs.kshot.com/read-htm-tid-6191747.html 活动详情了解一下 ~~
爆料有奖!关注昆山论坛抖音号,抖音搜索“昆山论坛”,或搜索抖音号:ksbbs
 
美女离线昆山和美门窗
级别: 禁止发言
发帖
7597
昆币
22038 枚
9楼 发表于: 2020-04-13 , 来自:江苏省0==
用户被禁言,该主题自动屏蔽!
爆料有奖!关注昆山论坛抖音号,抖音搜索“昆山论坛”,或搜索抖音号:ksbbs
 
快速回复
限76 字节
如果您提交过一次失败了,可以用”恢复数据”来恢复帖子内容
 
上一个 下一个