夜间模式
  • 20933阅读
  • 2回复

[装修]印象水仙|不大动干戈,精装房华丽变身,103㎡现代轻奢 [复制链接]

上一主题 下一主题
帅哥离线印象水仙设计
级别: 家装商家
发帖
11379
昆币
19479 枚
只看楼主 使用道具 电梯直达
楼主  发表于: 2020-08-09 , 来自:江苏省0==




印象水仙 × 精装房改造


面积 // 103㎡
风格 // 现代轻奢
户型 // 三室两厅两卫一厨‘
软装设计 // 印象水仙
施工单位 // 印象水仙






本案是一套三居室的精装房,屋主希望设计师在不改动空间结构的基础上,利用软装提升新家的设计感。除此之外,屋主还希望新家的每寸空间得以充分利用,强化实用性。


对于设计师来说,即使既定的精装房户型布局如出一辙、不便改动,但通过设计却还是可以变成专属于空间主人的“独一无二”。设计师的理念也恰好与屋主不谋而合,也正是基于这份默契与信任,屋主将新家装修全程均交给了设计师把控。


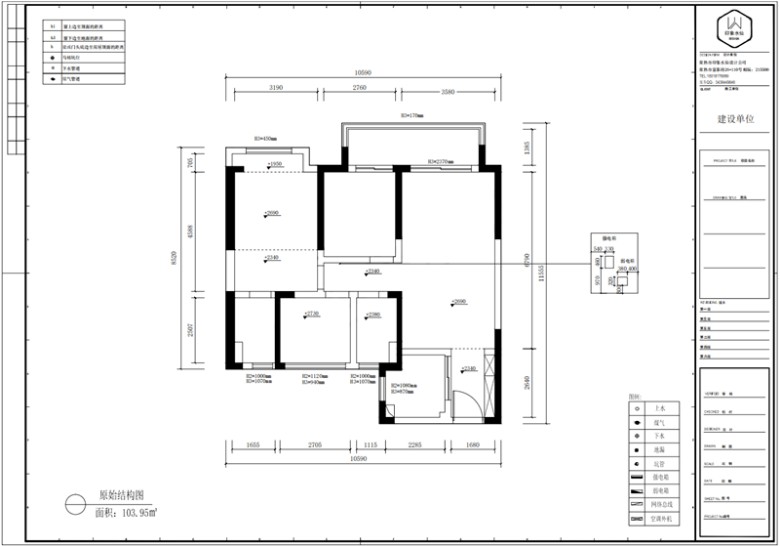
原始结构图






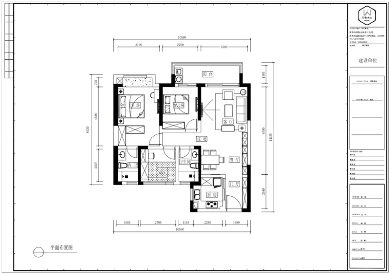
平面布置图






在本案中设计师利用硬包和调色漆来改变空间基调,软装家具也在色彩及材质上为设计加分,而定制柜子既美观又可以增加收纳空间,再加入少许配饰点缀,专属于空间主人的奇妙宴会便开始了。


改造前


















改造后


Living Room










光滑精致的米色皮质沙发,空间每一个细节搭配都展出优雅的气质;金属、水晶与大理石碰撞产生的一缕奢光唤醒了沉睡中的我们,每一个微小的细节都倒映着生活的美好...






作为休闲空间,客厅自然需要主打舒适放松感,因此设计师为背景墙披上温和的色调,配合精心选择的金属线条,整体和谐地衍生出一种高级感。


Dining Room






餐厅空间的餐桌椅不一定就要墨守成规,造型、色彩、材质上均可大做文章,整排金色吊灯设计拉伸空间,两幅艺术壁画点也强化精致气息,一整排深色柜子更是凸显出一种满满的高级感。


Corridor






灯光有时候也是一种“调味剂”,过道的优雅气氛便由此渲染,搭配浅色调空间气质也得以提升。


Bedroom1






为贴合屋主夫妻喜好,主卧装饰少之又少,但因为背景墙金属线条的加入而避开了千篇一律,慵懒意境由内而外发散开来。






用家具软饰平衡整个空间,使之给与业主协调舒适的视觉感受和居住感受;灯光的点缀让主卧不经意间透露浪漫气质。






Children's Room






女儿房有温柔清新的少女感,床头背景的石膏线和床靠背给空间增加立体感,再以拼色窗帘、射灯和金属吊灯提升整体质感。


  Bedroom2






次卧最大的功能就是储物,灰白拼色的书柜和橱柜,以及榻榻米下都具有大量的存储空间;这间朝北的房间是给偶尔来居住的父母准备的,同时为了提高空间的利用率,也兼具了书房的功能。





[ 此帖被印象水仙设计在2020-08-09 15:46重新编辑 ]
爆料有奖!关注昆山论坛抖音号,抖音搜索“昆山论坛”,或搜索抖音号:ksbbs
 
级别: 昆山新人
发帖
309
昆币
577 枚
沙发  发表于: 2020-08-09 , 来自:江苏省0==
插座这家隐藏的好 我找了好久没找到
爆料有奖!关注昆山论坛抖音号,抖音搜索“昆山论坛”,或搜索抖音号:ksbbs
 
离线淘宝天下
级别: 昆山过客
发帖
15
昆币
21 枚
板凳  发表于: 2020-08-11 , 来自:江苏省0==
这家公司很烂的,谁找他们最后肯定后悔。
爆料有奖!关注昆山论坛抖音号,抖音搜索“昆山论坛”,或搜索抖音号:ksbbs
 
快速回复
限76 字节
如果您提交过一次失败了,可以用”恢复数据”来恢复帖子内容
 
上一个 下一个