夜间模式
  • 13851阅读
  • 0回复

【大慈设计】华润国际新中式--穿透岁月的美丽 [复制链接]

上一主题 下一主题
美女离线大慈装饰
级别: 家装商家

发帖
20502
昆币
2299 枚
只看楼主 使用道具 电梯直达
楼主  发表于: 2017-12-04 , 来自:江苏省0==
设计说明:
将新中式注入简洁实用的设计中,令家居装饰更有灵性。古朴的美丽
在家居中穿透了岁月,在我们的身边活色生香。优雅是一种气质,舒

适是生活的态度与期许,二者的结合,让它如此出众。




客厅布置让人眼前一亮。原木色的家具搭配灰白色的沙发,昭示着主人优雅的品味。头上方形吊顶与中式特有的灯饰,既提供了充足的采光,又折射出墙壁上的水墨画意境幽远。



在家里摆放花瓶,不仅是身份的象征,华贵的气质与典雅的风度也让中式花瓶具有独特的吸引力。花瓶的“瓶”与“平”同音,寓意着家人出行,回归平平安安。



原木色的装饰柜与餐桌协调一致,白色的餐椅既凸显了空间的色彩,又与整个空间融为一体,仿佛淌出了中式的质朴,又带着些许绵绵禅意。


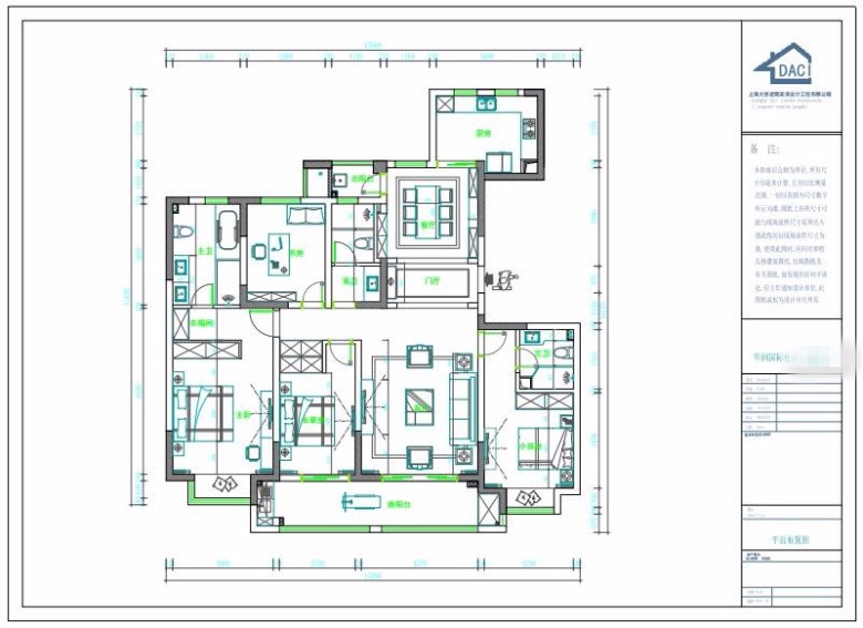
原始尺寸图



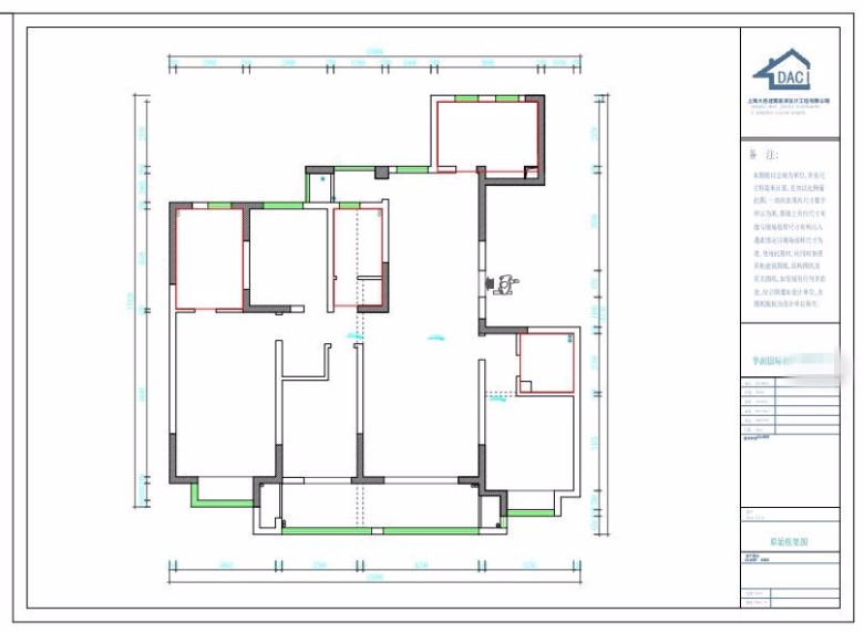
平面布置图


项目名称 | 华润国际
设 计 师  | 王雨
设计单位 | 大慈国际设计  
设计风格 | 新中式风格



爆料有奖!关注昆山论坛抖音号,抖音搜索“昆山论坛”,或搜索抖音号:ksbbs
 
大慈装饰  昆山推荐率85%以上,口碑品牌  热线:0512-57779948/18551100758 地址:昆山市九方城保利地产大楼1704-1710
快速回复
限76 字节
如果您提交过一次失败了,可以用”恢复数据”来恢复帖子内容
 
上一个 下一个