夜间模式
  • 17949阅读
  • 4回复

[装修]2018实景作品 | 择一城而居,寻一隅休憩,二人世界,慢享生活 [复制链接]

上一主题 下一主题
帅哥离线印象水仙设计
级别: 家装商家
发帖
11379
昆币
19479 枚
只看楼主 使用道具 电梯直达
楼主  发表于: 2018-09-27 , 来自:江苏省0==






设计师言:


家对于每个人都有不同的定义,家的地点在于人,心灵的沟通决定绽放,懂了才知所需,空白由“我”填满。

案例信息:

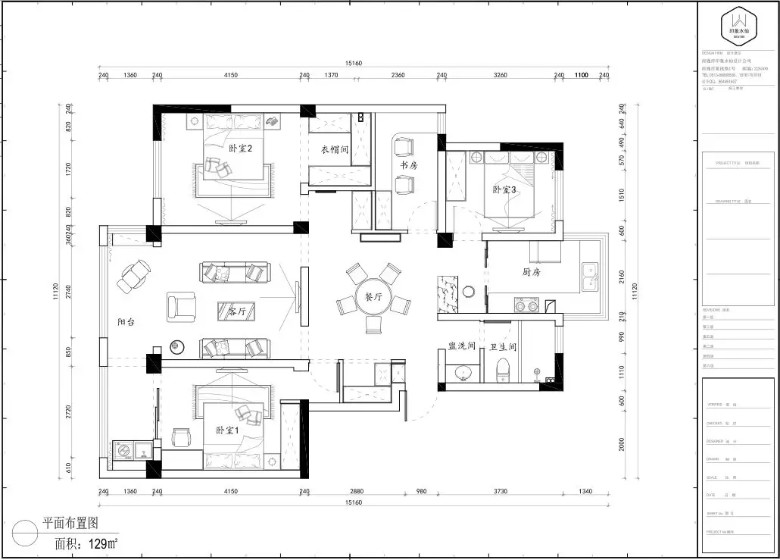
装修风格:现代简约
装修面积:118㎡
装修户型:三室两厅一厨一卫

设计说明:

本案的业主是一对年轻的小夫妻,喜欢简单又不失质感的生活。设计师通过色彩、空间格局、结合业主双方的需求进行了深入规划后,为主家呈现出一个轻松高品质的居室环境。

设计方案:





当奔波于工作的我们愈发忙碌,对家的眷恋便越发强烈。城市再大,属于自己的也就仅此一隅,因此我们想要拥有一个轻松自由的环境,一个让自己可以真正放松的地方。

客    厅





客厅选用简洁的淡紫色作为主色调,即为业主最爱的颜色,加之米黄色沙发,软装艺术壁画的点缀将业主的想法更深刻的融入整个空间,白色纱帘保留客厅通透的优势,整个空间更显清爽干净。



为了营造温馨舒适的居家氛围,整个空间的设计以深浅对比搭配的方式展开。



过  




餐    厅





餐厅在整个风格上与客厅统一,餐桌椅的款式简洁,凸显出高级感,搭配错落有致的圆环式吊灯形成对比,墙面挂着黄色的时钟表,使空间增加了跳跃性。







厨     房




厨房选用了与地砖同款色的橱柜,上下橱柜之间用白色台面作为点缀,让整个厨房空间显得干净整洁。

主   卧



主卧,以利落干净的黑白色为主色调,并选用温润木质床及整洁的床饰酌量铺陈,搭配蓝色窗帘作为点缀,使空间显得生动,创造舒缓休闲的生活气息。

次   卧



次卧给人以时尚的感觉,床头以涂鸦壁画作背景,深色系的床,搭配了蓝色床单,使整体空间元素丰富许多。

书   房



工作/休闲区给人纯净大方的视觉感受,阳光透过窗户赋予整个空间更为通透的质感,整体悠闲而惬意。

卫 生 间



卫生间整体非常素雅,又不失现代感,简约而不简单,圆形的镜面像是一幅画,恰到好处的镶嵌在墙壁上。








[ 此帖被印象水仙设计在2018-09-27 17:38重新编辑 ]
本帖评分记录
纸哒煮 昆币 +1 -来自昆山论坛APP 2018-09-27
1条评分昆币+1
爆料有奖!关注昆山论坛抖音号,抖音搜索“昆山论坛”,或搜索抖音号:ksbbs
 
美女离线纸哒煮
级别: 昆山名人
发帖
48764
昆币
110742 枚
沙发  发表于: 2018-09-27 , 来自:未知0==
不错不错
爆料有奖!关注昆山论坛抖音号,抖音搜索“昆山论坛”,或搜索抖音号:ksbbs
 
美女离线纸哒煮
级别: 昆山名人
发帖
48764
昆币
110742 枚
板凳  发表于: 2018-09-27 , 来自:未知0==
设计挺好
爆料有奖!关注昆山论坛抖音号,抖音搜索“昆山论坛”,或搜索抖音号:ksbbs
 
美女离线纸哒煮
级别: 昆山名人
发帖
48764
昆币
110742 枚
地板  发表于: 2018-09-27 , 来自:未知0==
挺漂亮的
爆料有奖!关注昆山论坛抖音号,抖音搜索“昆山论坛”,或搜索抖音号:ksbbs
 
帅哥离线aquaria
发帖
906
昆币
2224 枚
4楼 发表于: 2018-09-27 , 来自:江苏省0==
看不懂,看不懂,奇异的结果
爆料有奖!关注昆山论坛抖音号,抖音搜索“昆山论坛”,或搜索抖音号:ksbbs
 
快速回复
限76 字节
如果您提交过一次失败了,可以用”恢复数据”来恢复帖子内容
 
上一个 下一个