夜间模式
  • 263315阅读
  • 169回复

【薇薇家居全案软装】鹿城如画,山晓望晴。携手薇薇家居软装打造美式经典 [复制链接]

上一主题 下一主题
离线小蜜麻花
级别: 昆山过客
发帖
98
昆币
101 枚
只看楼主 使用道具 电梯直达
楼主  发表于: 2020-09-15 , 来自:江苏省0==
家装日记
小区: 中海天玺
套内面积: 150 (平米)
预算: 40万 万
开工日期: 2020-06-01
装修风格: 美式
装修方式: 半包
装修公司: 薇薇家居全案软装

写在前面:
第二次装修,之前的房子没有请设计师,都是自己搞得,结果装修后的总是觉得哪里不是很舒服又说不上来,家里面的家具款式搭配都很奇怪……可能还是不够专业吧又考虑到,装修是一件大工程,细节很多,也很浪费精力和时间,想想之前装修搞得焦头烂额、被装修支配的恐惧……所以还是决定找设计公司来设计硬装和软装的部分。毕竟术业有专攻,专业的人来做专业的事嘛~
本帖评分记录
昆山伟宏门窗 昆币 +1 -来自昆山论坛APP 2020-09-15
1条评分昆币+1
爆料有奖!关注昆山论坛抖音号,抖音搜索“昆山论坛”,或搜索抖音号:ksbbs
 
离线小蜜麻花
级别: 昆山过客
发帖
98
昆币
101 枚
沙发  发表于: 2020-09-15 , 来自:江苏省0==

朋友家软装设计选的就是薇薇家居,她特别满意,我们去看了也很喜欢,所以就没有太多犹豫,周末抽个时间直奔港龙。薇薇家居在港龙四楼,上电梯右转就是,展厅面积很大,风格也多。我最喜欢的美式风格占了很大的面积。还记得门口的孔雀绿的沙发就特别吸引我,颜色款式都很棒。
爆料有奖!关注昆山论坛抖音号,抖音搜索“昆山论坛”,或搜索抖音号:ksbbs
 
离线小蜜麻花
级别: 昆山过客
发帖
98
昆币
101 枚
板凳  发表于: 2020-09-15 , 来自:江苏省0==

在去薇薇家居之前,我们就确定了装修风格选经典美式。在薇薇家居看了展厅展品之后,更加坚定了这一想法。私下里我也找了一些美式经典的图片参考,所以在与设计师沟通的时候特别顺利。设计师郭老师是个特别优秀的设计师。她在软装陈列和设计方面有独到的见解。她的特别之处在于能够大胆的运用色彩,对自然界的线条色彩和材质运用也是游刃有余。
本帖评分记录
薇薇家居 昆币 +1 -来自昆山论坛APP 2020-09-16
1条评分昆币+1
爆料有奖!关注昆山论坛抖音号,抖音搜索“昆山论坛”,或搜索抖音号:ksbbs
 
离线小蜜麻花
级别: 昆山过客
发帖
98
昆币
101 枚
地板  发表于: 2020-09-15 , 来自:江苏省0==
话不多说,接下来我将按照家具、吊灯、墙纸、窗帘和其它装饰这几方面记录软装挑选和装修的心得。
爆料有奖!关注昆山论坛抖音号,抖音搜索“昆山论坛”,或搜索抖音号:ksbbs
 
离线小蜜麻花
级别: 昆山过客
发帖
98
昆币
101 枚
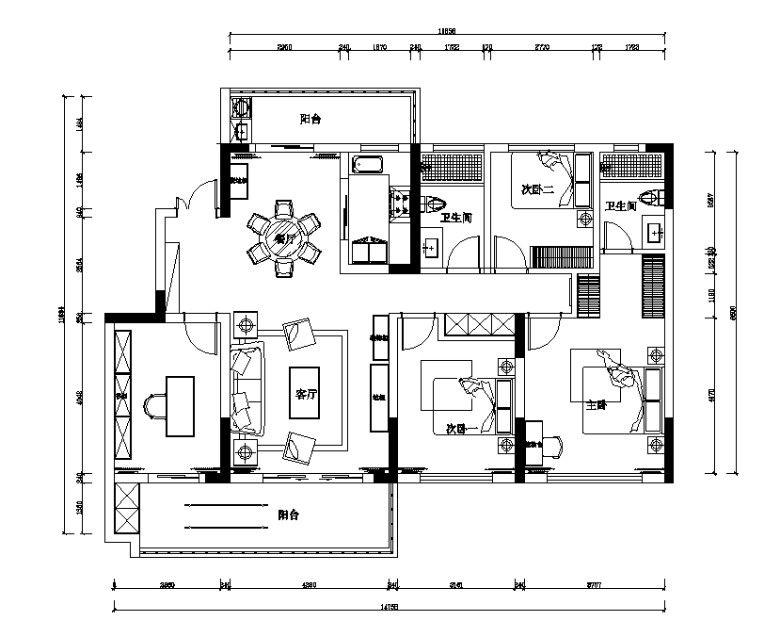
4楼 发表于: 2020-09-15 , 来自:江苏省0==
说了半天忘记上平面图……
户型是三室一厅带个小书房,居室和日常活动区域是分两边的,整体很规整。
爆料有奖!关注昆山论坛抖音号,抖音搜索“昆山论坛”,或搜索抖音号:ksbbs
 
离线小蜜麻花
级别: 昆山过客
发帖
98
昆币
101 枚
5楼 发表于: 2020-09-15 , 来自:江苏省0==
今天先更新到这里,我要出门啦~明天继续更新 喜欢的朋友帮忙点赞关注哟~
爆料有奖!关注昆山论坛抖音号,抖音搜索“昆山论坛”,或搜索抖音号:ksbbs
 
美女离线星月满空山
级别: 昆山过客
发帖
53
昆币
58 枚
6楼 发表于: 2020-09-15 , 来自:江苏省0==
楼主家的阳台好大,有没有封窗啊?如果打通了的话和客厅面积连一起,面积可能会更大
爆料有奖!关注昆山论坛抖音号,抖音搜索“昆山论坛”,或搜索抖音号:ksbbs
 
美女离线昆山伟宏门窗
级别: 禁止发言

发帖
18978
昆币
32400 枚
7楼 发表于: 2020-09-15 , 来自:江苏省0==
用户被禁言,该主题自动屏蔽!
爆料有奖!关注昆山论坛抖音号,抖音搜索“昆山论坛”,或搜索抖音号:ksbbs
 
离线饭团儿57
级别: 昆山新人
发帖
270
昆币
298 枚
8楼 发表于: 2020-09-15 , 来自:江苏省0==
厉害了,土豪
爆料有奖!关注昆山论坛抖音号,抖音搜索“昆山论坛”,或搜索抖音号:ksbbs
 
发帖
553
昆币
602 枚
9楼 发表于: 2020-09-16 , 来自:江苏省0==
生活之美,贵在用心
居家之美,贵在经营
薇薇家居国际软装设计,为您整合家居行业优质资源
精心原创作品满足用户的个性化需求。
爆料有奖!关注昆山论坛抖音号,抖音搜索“昆山论坛”,或搜索抖音号:ksbbs
 
快速回复
限76 字节
如果您提交过一次失败了,可以用”恢复数据”来恢复帖子内容
 
上一个 下一个