夜间模式
  • 37996阅读
  • 15回复

【大慈设计2016年实景10月】『九方城』186 平米--简美风格--唯美实景 [复制链接]

上一主题 下一主题
美女离线大慈装饰
级别: 家装商家

发帖
20524
昆币
2352 枚
只看楼主 使用道具 电梯直达
楼主  发表于: 2016-12-01 , 来自:江苏省0==
< 客户的认可才是我们发展的基石 >
》》》》受西方文化的影响,简美装修风格得到了很多业主的喜爱,也是近年来较为追捧的现代主义建筑和室内的主流风格之一。整体给人一种简约大气的气息,没有反复的空间布局,每处都格外的干净利落。

  

   ⊙项目名称:九方城
    ⊙项目面积:186㎡
    ⊙户型结构:五室
    ⊙项目风格:简美风格
    ⊙合作模式:半包模式
    ⊙工程造价:22万
    ⊙  设计师:慈工
    ⊙设计单位:大慈大宅设计
    ⊙施工单位:大慈大宅施工
    ⊙软装设计:DACI软装设计机构
    ⊙公司地址:柏庐北路156号近娄苑路(近娄苑路)
    ⊙公司电话:0512-57779948  
    ⊙公司网址:[url][urlend2]
    ⊙公司QQ:958938158
       [url][urlend4] ,首选大慈装饰



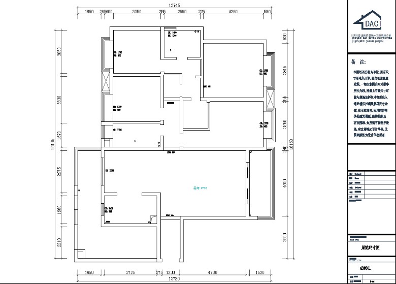
—————————————(-*平面图* —————————————




—————————————(-*唯美-效果图* —————————————
》》》简美风格有着欧罗巴的奢侈与贵气,但又结合了美洲大陆这块水土的不羁,这样结合的结果是剔除了许多羁绊,但又能找寻文化根基的新的怀旧、贵气加大气而又不失自在与随意的风格。即:有文化感、有贵气感,还不能缺乏自在感与情调感。








[ 此帖被大慈装饰在2017-01-15 16:21重新编辑 ]
爆料有奖!关注昆山论坛抖音号,抖音搜索“昆山论坛”,或搜索抖音号:ksbbs
 
大慈装饰  昆山推荐率85%以上,口碑品牌  热线:0512-57779948/18551100758 地址:昆山市九方城保利地产大楼1704-1710
美女离线大慈装饰
级别: 家装商家

发帖
20524
昆币
2352 枚
沙发  发表于: 2016-12-01 , 来自:江苏省0==


实景精彩呈现:


美式简约装修风格,整体给人一种简约大气的气息,没有反复的空间布局,每处都格外的干净利落,而且现代实用。无论是房顶的吊灯,还是脚下的地板,没有琐碎多余的设计,表面光滑柔和,让人感觉温暖而舒适。

—————————————(-*唯美-客厅* —————————————























[ 此帖被大慈装饰在2017-04-05 12:45重新编辑 ]
爆料有奖!关注昆山论坛抖音号,抖音搜索“昆山论坛”,或搜索抖音号:ksbbs
 
美女离线大慈装饰
级别: 家装商家

发帖
20524
昆币
2352 枚
板凳  发表于: 2016-12-01 , 来自:江苏省0==
实景精彩呈现:

美式简约装修风格的色彩搭配,整体给人感觉明亮而又恬静,空间的色彩的调试没有突兀的部分,色彩单一。比如空间和地面的对比,墙面和地板的色彩对比。色彩的选择也是挑选的简单、素雅为主的颜色,整体看起来就会温馨。在浅色整体主调下,我们可以在一些特别的装饰色彩可以用一些深色系列的,但整体色系最好搭配感强。

—————————————(-*唯美-吧台* —————————————

































[ 此帖被大慈装饰在2017-04-05 12:47重新编辑 ]
爆料有奖!关注昆山论坛抖音号,抖音搜索“昆山论坛”,或搜索抖音号:ksbbs
 
美女离线大慈装饰
级别: 家装商家

发帖
20524
昆币
2352 枚
地板  发表于: 2016-12-01 , 来自:江苏省0==
实景精彩呈现:


美式简约装修风格,整体给人一种简约大气的气息,没有反复的空间布局,每处都格外的干净利落,而且现代实用。无论是房顶的吊灯,还是脚下的地板,没有琐碎多余的设计,表面光滑柔和,让人感觉温暖而舒适。

—————————————(-*唯美-摆件* —————————————




[ 此帖被大慈装饰在2016-12-13 19:36重新编辑 ]
爆料有奖!关注昆山论坛抖音号,抖音搜索“昆山论坛”,或搜索抖音号:ksbbs
 
美女离线大慈装饰
级别: 家装商家

发帖
20524
昆币
2352 枚
4楼 发表于: 2016-12-01 , 来自:江苏省0==
实景精彩呈现:

美式简约装修风格的色彩搭配,整体给人感觉明亮而又恬静,空间的色彩的调试没有突兀的部分,色彩单一。比如空间和地面的对比,墙面和地板的色彩对比。色彩的选择也是挑选的简单、素雅为主的颜色,整体看起来就会温馨。在浅色整体主调下,我们可以在一些特别的装饰色彩可以用一些深色系列的,但整体色系最好搭配感强。

—————————————(-*唯美-餐厅* —————————————




[ 此帖被大慈装饰在2016-12-01 12:44重新编辑 ]
爆料有奖!关注昆山论坛抖音号,抖音搜索“昆山论坛”,或搜索抖音号:ksbbs
 
美女离线大慈装饰
级别: 家装商家

发帖
20524
昆币
2352 枚
5楼 发表于: 2016-12-01 , 来自:江苏省0==
实景精彩呈现:


美式简约装修风格,整体给人一种简约大气的气息,没有反复的空间布局,每处都格外的干净利落,而且现代实用。无论是房顶的吊灯,还是脚下的地板,没有琐碎多余的设计,表面光滑柔和,让人感觉温暖而舒适。


—————————————(-*唯美-厨房* —————————————





[ 此帖被大慈装饰在2017-04-05 12:48重新编辑 ]
爆料有奖!关注昆山论坛抖音号,抖音搜索“昆山论坛”,或搜索抖音号:ksbbs
 
美女离线大慈装饰
级别: 家装商家

发帖
20524
昆币
2352 枚
6楼 发表于: 2016-12-01 , 来自:江苏省0==
实景精彩呈现:


美式简约装修风格的色彩搭配,整体给人感觉明亮而又恬静,空间的色彩的调试没有突兀的部分,色彩单一。比如空间和地面的对比,墙面和地板的色彩对比。色彩的选择也是挑选的简单、素雅为主的颜色,整体看起来就会温馨。在浅色整体主调下,我们可以在一些特别的装饰色彩可以用一些深色系列的,但整体色系最好搭配感强。

—————————————(-*唯美-儿童房* —————————————











[ 此帖被大慈装饰在2016-12-13 19:38重新编辑 ]
爆料有奖!关注昆山论坛抖音号,抖音搜索“昆山论坛”,或搜索抖音号:ksbbs
 
美女离线大慈装饰
级别: 家装商家

发帖
20524
昆币
2352 枚
7楼 发表于: 2016-12-01 , 来自:江苏省0==
实景精彩呈现:


美式简约装修风格,整体给人一种简约大气的气息,没有反复的空间布局,每处都格外的干净利落,而且现代实用。无论是房顶的吊灯,还是脚下的地板,没有琐碎多余的设计,表面光滑柔和,让人感觉温暖而舒适。


—————————————(-*唯美-书房* —————————————


爆料有奖!关注昆山论坛抖音号,抖音搜索“昆山论坛”,或搜索抖音号:ksbbs
 
美女离线大慈装饰
级别: 家装商家

发帖
20524
昆币
2352 枚
8楼 发表于: 2016-12-01 , 来自:江苏省0==
实景精彩呈现:


美式简约装修风格的色彩搭配,整体给人感觉明亮而又恬静,空间的色彩的调试没有突兀的部分,色彩单一。比如空间和地面的对比,墙面和地板的色彩对比。色彩的选择也是挑选的简单、素雅为主的颜色,整体看起来就会温馨。在浅色整体主调下,我们可以在一些特别的装饰色彩可以用一些深色系列的,但整体色系最好搭配感强。

—————————————(-*唯美-玩乐房* —————————————











[ 此帖被大慈装饰在2016-12-13 19:39重新编辑 ]
爆料有奖!关注昆山论坛抖音号,抖音搜索“昆山论坛”,或搜索抖音号:ksbbs
 
美女离线大慈装饰
级别: 家装商家

发帖
20524
昆币
2352 枚
9楼 发表于: 2016-12-01 , 来自:江苏省0==
实景精彩呈现:


美式简约装修风格,整体给人一种简约大气的气息,没有反复的空间布局,每处都格外的干净利落,而且现代实用。无论是房顶的吊灯,还是脚下的地板,没有琐碎多余的设计,表面光滑柔和,让人感觉温暖而舒适。


—————————————(-*唯美-卧室一* —————————————




爆料有奖!关注昆山论坛抖音号,抖音搜索“昆山论坛”,或搜索抖音号:ksbbs
 
快速回复
限76 字节
如果您提交过一次失败了,可以用”恢复数据”来恢复帖子内容
 
上一个 下一个