夜间模式
  • 23540阅读
  • 7回复

【家装日记】 华府庄园26# 167㎡—现代风格 —『恬静优雅』(敲墙阶段) [复制链接]

上一主题 下一主题
美女离线大慈装饰
级别: 家装商家

发帖
20529
昆币
2362 枚
只看楼主 使用道具 电梯直达
楼主  发表于: 2017-02-21 , 来自:江苏省0==
华府庄园26#    167㎡两层

合作模式:半包模式
设计单位:大慈设计A组
施工单位:大慈大宅施工
软装设计:DACI软装设计机构
项目经理:赵工
项目监理:李工
小编语:业主是今年2月来公司咨询的,在愉快地交流选择之后,选择相信大慈,这让我们感到很欣慰,在详细交谈后,根据顾客的喜好和特点,设计师就选定了现代风格。
     感谢华府庄园杜姐对大慈装饰的信任,开贴了,记录施工过程的同时也便于我们与业主沟通!





[ 此帖被大慈装饰在2017-02-27 16:07重新编辑 ]
爆料有奖!关注昆山论坛抖音号,抖音搜索“昆山论坛”,或搜索抖音号:ksbbs
 
大慈装饰  昆山推荐率85%以上,口碑品牌  热线:0512-57779948/18551100758 地址:昆山市九方城保利地产大楼1704-1710
美女离线大慈装饰
级别: 家装商家

发帖
20529
昆币
2362 枚
沙发  发表于: 2017-02-21 , 来自:江苏省0==
设计说明:
      本案为现代风格。高纯色彩的大量运用,大胆而灵活,不单是对现代风格家居的遵循,也是个性的展示。现代风格家具的以鲜明的颜色搭配,给人带来前卫、不受拘束的感觉。
空间格局:复式四室两厅两卫
开工时间:2017年2月19日  
公司地址:昆山市柏庐北路156号(柏庐路与娄苑路交口)        
公司电话:0512-57779948
公司网址:[url][urlend2]
爆料有奖!关注昆山论坛抖音号,抖音搜索“昆山论坛”,或搜索抖音号:ksbbs
 
美女离线大慈装饰
级别: 家装商家

发帖
20529
昆币
2362 枚
板凳  发表于: 2017-02-21 , 来自:江苏省0==
效果图精彩呈现

爆料有奖!关注昆山论坛抖音号,抖音搜索“昆山论坛”,或搜索抖音号:ksbbs
 
美女离线大慈装饰
级别: 家装商家

发帖
20529
昆币
2362 枚
地板  发表于: 2017-02-21 , 来自:江苏省0==
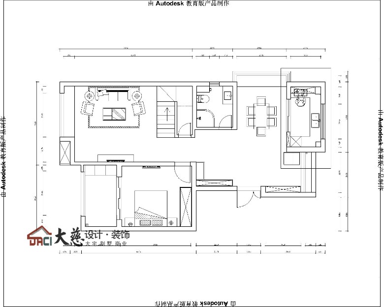
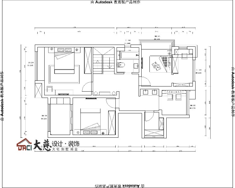
施工图精彩呈现
一层原始结构图

一层平面布置图


二层原始架构图

二层平面布置图

爆料有奖!关注昆山论坛抖音号,抖音搜索“昆山论坛”,或搜索抖音号:ksbbs
 
美女离线大慈装饰
级别: 家装商家

发帖
20529
昆币
2362 枚
4楼 发表于: 2017-02-21 , 来自:江苏省0==
开工大吉


爆料有奖!关注昆山论坛抖音号,抖音搜索“昆山论坛”,或搜索抖音号:ksbbs
 
美女离线大慈装饰
级别: 家装商家

发帖
20529
昆币
2362 枚
5楼 发表于: 2017-02-21 , 来自:江苏省0==
墙体拆除阶段


爆料有奖!关注昆山论坛抖音号,抖音搜索“昆山论坛”,或搜索抖音号:ksbbs
 
美女离线果多然
级别: 昆山过客
发帖
27
昆币
45 枚
6楼 发表于: 2017-02-22 , 来自:江苏省0==
爆料有奖!关注昆山论坛抖音号,抖音搜索“昆山论坛”,或搜索抖音号:ksbbs
 
帅哥离线野猪
发帖
1499
昆币
6320 枚
7楼 发表于: 2017-04-19 , 来自:江苏省0==
没有了?现在装修效果看看
爆料有奖!关注昆山论坛抖音号,抖音搜索“昆山论坛”,或搜索抖音号:ksbbs
 
快速回复
限76 字节
如果您提交过一次失败了,可以用”恢复数据”来恢复帖子内容
 
上一个 下一个