夜间模式
  • 47185阅读
  • 22回复

网红小姐姐   成品实景拍摄分享汇总 [复制链接]

上一主题 下一主题
美女离线网红小姐姐

发帖
2926
昆币
6896 枚
只看楼主 使用道具 电梯直达
楼主  发表于: 2019-04-18 , 来自:江苏省0==
(简单坦诚记得早先少年时,大家诚诚恳恳,说一句,是一句
(真实质朴)清早上火车站,长街黑暗,无行人,卖豆浆的小店,冒着热气
(返璞归真)从前的日色变得慢,车、马、邮件都慢,一生只够,爱一个人
(少年青春)从前的锁也好看,钥匙精美有样子,你锁了,人家就懂了

生命来来往往,你的余生还很长,请不要慌张
不要只记得赶路,心中寥寥,缺忘记了陪伴家人
坐下来喝杯茶感受生活,回归禅意的生活

时间记录了每一刻,我们对生命的探寻
停下来,去感知、去探索,极简背后生命的意义
真实、不在刻意,每次执着,都为精致背后的细节
所有用心的完美,都将汇聚在作品的终点
凝结光影的间隙,汇成空间,成为永恒的作品
[ 此帖被网红小姐姐在2019-04-18 20:54重新编辑 ]
本帖评分记录
怪妓痴情 昆币 +1 -来自昆山论坛APP 2019-05-17
舅婆混杂 昆币 +1 -来自昆山论坛APP 2019-05-10
团伊玖磨 昆币 +1 -来自昆山论坛APP 2019-05-10
网红小姐姐 昆币 +1 -来自昆山论坛APP 2019-04-19
昆山封阳台 昆币 +1 -来自昆山论坛APP 2019-04-18
5条评分昆币+5
爆料有奖!关注昆山论坛抖音号,抖音搜索“昆山论坛”,或搜索抖音号:ksbbs
 
美女离线网红小姐姐

发帖
2926
昆币
6896 枚
沙发  发表于: 2019-04-18 , 来自:江苏省0==
案例电梯


1、华润国际美式田园风:http://www.ksbbs.com/read-htm-tid-6052118.html
(业主装修日记)开贴啦~华润国际社区简美在路上:http://www.ksbbs.com/read-htm-tid-5828469.html
[ 此帖被网红小姐姐在2019-04-19 08:41重新编辑 ]
爆料有奖!关注昆山论坛抖音号,抖音搜索“昆山论坛”,或搜索抖音号:ksbbs
 
美女离线网红小姐姐

发帖
2926
昆币
6896 枚
板凳  发表于: 2019-04-18 , 来自:江苏省0==
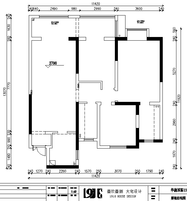
CAD平面图纸和效果图
[ 此帖被网红小姐姐在2019-04-19 08:42重新编辑 ]
爆料有奖!关注昆山论坛抖音号,抖音搜索“昆山论坛”,或搜索抖音号:ksbbs
 
美女离线网红小姐姐

发帖
2926
昆币
6896 枚
地板  发表于: 2019-04-18 , 来自:江苏省0==
成品实景拍摄
[ 此帖被网红小姐姐在2019-04-19 08:37重新编辑 ]
本帖评分记录
网红小姐姐 昆币 +1 -来自昆山论坛APP 2019-04-20
1条评分昆币+1
爆料有奖!关注昆山论坛抖音号,抖音搜索“昆山论坛”,或搜索抖音号:ksbbs
 
离线飞越

发帖
10247
昆币
17369 枚
4楼 发表于: 2019-04-18 , 来自:未知0==
期待
本帖评分记录
网红小姐姐 昆币 +1 -来自昆山论坛APP 2019-04-20
1条评分昆币+1
爆料有奖!关注昆山论坛抖音号,抖音搜索“昆山论坛”,或搜索抖音号:ksbbs
 
帅哥离线1918设计
级别: 禁止发声
发帖
9059
昆币
10185 枚
5楼 发表于: 2019-04-18 , 来自:江苏省0==
  
本帖评分记录
网红小姐姐 昆币 +1 -来自昆山论坛APP 2019-04-20
1条评分昆币+1
爆料有奖!关注昆山论坛抖音号,抖音搜索“昆山论坛”,或搜索抖音号:ksbbs
 
美女离线昆山和美门窗
级别: 禁止发言
发帖
7597
昆币
22038 枚
6楼 发表于: 2019-04-19 , 来自:江西省0==
用户被禁言,该主题自动屏蔽!
本帖评分记录
网红小姐姐 昆币 +1 -来自昆山论坛APP 2019-04-20
1条评分昆币+1
爆料有奖!关注昆山论坛抖音号,抖音搜索“昆山论坛”,或搜索抖音号:ksbbs
 
帅哥离线空气检测治理
级别: 禁止发言
发帖
1785
昆币
1967 枚
7楼 发表于: 2019-04-19 , 来自:江苏省0==
用户被禁言,该主题自动屏蔽!
本帖评分记录
网红小姐姐 昆币 +1 -来自昆山论坛APP 2019-04-20
1条评分昆币+1
爆料有奖!关注昆山论坛抖音号,抖音搜索“昆山论坛”,或搜索抖音号:ksbbs
 
美女离线等你下课喝奶茶
发帖
880
昆币
982 枚
8楼 发表于: 2019-04-19 , 来自:江苏省0==
本帖评分记录
网红小姐姐 昆币 +1 -来自昆山论坛APP 2019-04-20
1条评分昆币+1
爆料有奖!关注昆山论坛抖音号,抖音搜索“昆山论坛”,或搜索抖音号:ksbbs
 
离线擒王
发帖
1381
昆币
747 枚
9楼 发表于: 2019-04-19 , 来自:江苏省0==
本帖评分记录
网红小姐姐 昆币 +1 -来自昆山论坛APP 2019-04-20
1条评分昆币+1
爆料有奖!关注昆山论坛抖音号,抖音搜索“昆山论坛”,或搜索抖音号:ksbbs
 
快速回复
限76 字节
批量上传需要先选择文件,再选择上传
 
上一个 下一个