夜间模式
  • 551233阅读
  • 182回复

[装修讨论]买房,十二载一部心酸血泪史,装修,农奴翻身获自由—闲趣与印象水仙装修情事 [复制链接]

上一主题 下一主题
离线誓言走调
级别: 昆山新人
发帖
130
昆币
182 枚
150楼 发表于: 2020-11-06 , 来自:江苏省0==
哪个小区的?
本帖评分记录
没忘记的约定 昆币 +1 -来自昆山论坛APP 2020-11-16
1条评分昆币+1
爆料有奖!关注昆山论坛抖音号,抖音搜索“昆山论坛”,或搜索抖音号:ksbbs
 
离线shanang379
级别: 昆山新人
发帖
109
昆币
181 枚
151楼 发表于: 2020-11-16 , 来自:江苏省0==
誓言走调:哪个小区的? (2020-11-06 11:19) 

观湖一号
本帖评分记录
誓言走调 昆币 +1 -来自昆山论坛APP 2020-11-16
1条评分昆币+1
爆料有奖!关注昆山论坛抖音号,抖音搜索“昆山论坛”,或搜索抖音号:ksbbs
 
离线誓言走调
级别: 昆山新人
发帖
130
昆币
182 枚
152楼 发表于: 2020-11-16 , 来自:江苏省0==
shanang379:观湖一号 (2020-11-16 11:24) 

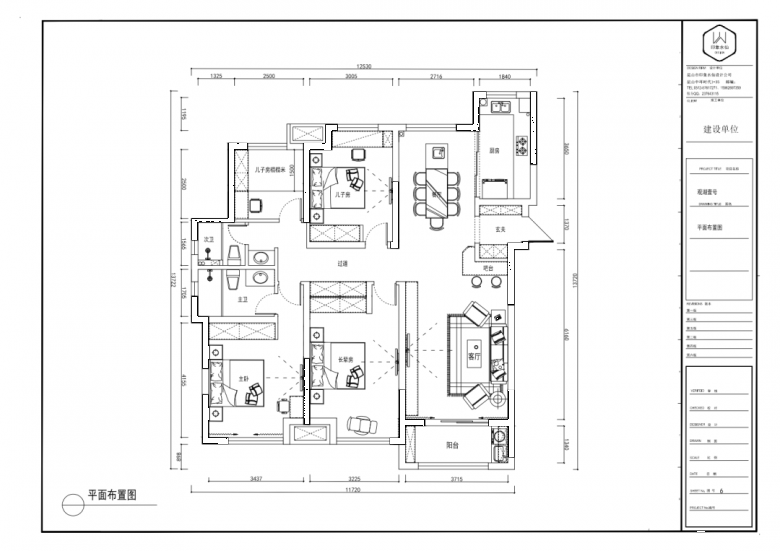
户型图有吗
爆料有奖!关注昆山论坛抖音号,抖音搜索“昆山论坛”,或搜索抖音号:ksbbs
 
级别: 昆山新人
发帖
125
昆币
279 枚
153楼 发表于: 2020-11-19 , 来自:江苏省0==
恭喜恭喜
爆料有奖!关注昆山论坛抖音号,抖音搜索“昆山论坛”,或搜索抖音号:ksbbs
 
离线shanang379
级别: 昆山新人
发帖
109
昆币
181 枚
154楼 发表于: 2020-11-29 , 来自:江苏省0==
做幸福的朋友:恭喜恭喜 (2020-11-19 11:37) 

谢谢 完工了哦
爆料有奖!关注昆山论坛抖音号,抖音搜索“昆山论坛”,或搜索抖音号:ksbbs
 
离线shanang379
级别: 昆山新人
发帖
109
昆币
181 枚
155楼 发表于: 2020-11-29 , 来自:江苏省0==
誓言走调:户型图有吗 (2020-11-16 14:12) 

补发,我好像之前也没发过

本帖评分记录
足音无迹 昆币 +1 -来自昆山论坛APP 2021-06-15
誓言走调 昆币 +1 -来自昆山论坛APP 2020-12-10
2条评分昆币+2
爆料有奖!关注昆山论坛抖音号,抖音搜索“昆山论坛”,或搜索抖音号:ksbbs
 
离线代拆代行
级别: 昆山新人
发帖
134
昆币
193 枚
156楼 发表于: 2020-12-04 , 来自:江苏省0==
大房子果然就是好
爆料有奖!关注昆山论坛抖音号,抖音搜索“昆山论坛”,或搜索抖音号:ksbbs
 
离线绯雨丸
级别: 昆山新人
发帖
319
昆币
513 枚
157楼 发表于: 2020-12-05 , 来自:江苏省0==
翻身了
爆料有奖!关注昆山论坛抖音号,抖音搜索“昆山论坛”,或搜索抖音号:ksbbs
 
离线shanang379
级别: 昆山新人
发帖
109
昆币
181 枚
158楼 发表于: 2020-12-10 , 来自:江苏省0==
户型不错啊
爆料有奖!关注昆山论坛抖音号,抖音搜索“昆山论坛”,或搜索抖音号:ksbbs
 
离线誓言走调
级别: 昆山新人
发帖
130
昆币
182 枚
159楼 发表于: 2020-12-10 , 来自:北京市0==
shanang379:补发,我好像之前也没发过
[图片]
[图片] (2020-11-29 09:48) 

户型真的好好
本帖评分记录
shanang379 昆币 +1 -来自昆山论坛APP 2020-12-14
1条评分昆币+1
爆料有奖!关注昆山论坛抖音号,抖音搜索“昆山论坛”,或搜索抖音号:ksbbs
 
快速回复
限76 字节
如果您提交过一次失败了,可以用”恢复数据”来恢复帖子内容
 
上一个 下一个