夜间模式
  • 137497阅读
  • 159回复

众里寻它千百度 [复制链接]

上一主题 下一主题
级别: 昆山过客
发帖
60
昆币
364 枚
60楼 发表于: 2019-07-12 , 来自:江苏省0==
爆料有奖!关注昆山论坛抖音号,抖音搜索“昆山论坛”,或搜索抖音号:ksbbs
 
级别: 昆山过客
发帖
60
昆币
364 枚
61楼 发表于: 2019-07-12 , 来自:江苏省0==
支持楼主,多多更新哦

楼主留言:

谢谢支持

爆料有奖!关注昆山论坛抖音号,抖音搜索“昆山论坛”,或搜索抖音号:ksbbs
 
级别: 昆山过客
发帖
75
昆币
352 枚
62楼 发表于: 2019-07-12 , 来自:江苏省0==
楼主现在装修公司看的怎么样了?我们也在找

楼主留言:

找的差不多了,定下来告诉大家

爆料有奖!关注昆山论坛抖音号,抖音搜索“昆山论坛”,或搜索抖音号:ksbbs
 
帅哥离线马明
级别: 昆山过客
发帖
89
昆币
127 枚
63楼 发表于: 2019-08-31 , 来自:江苏省0==
前段时间回老家过暑假了,所以一直没有更新,装修定在我新家边上的寅盛装饰,工地比较满意 ,价格适中,方案也接受,因为都是承重墙,也不会有太大的改动,他们老板也给了一定力度的优惠,早下单可以把工地排在前面,开工可以优先选择管家和工人
本帖评分记录
王仁闯 昆币 +1 -来自昆山论坛APP 2020-02-02
1条评分昆币+1
爆料有奖!关注昆山论坛抖音号,抖音搜索“昆山论坛”,或搜索抖音号:ksbbs
 
离线忧郁的狼
级别: 昆山过客
发帖
20
昆币
149 枚
64楼 发表于: 2019-09-03 , 来自:江苏省0==
邻居,同97平,9号楼的

楼主留言:

你好,邻居,你找装饰公司了没有

爆料有奖!关注昆山论坛抖音号,抖音搜索“昆山论坛”,或搜索抖音号:ksbbs
 
帅哥离线龙龙的恐龙
级别: 昆山过客
发帖
63
昆币
63 枚
65楼 发表于: 2019-09-04 , 来自:湖北省0==
楼主加油
爆料有奖!关注昆山论坛抖音号,抖音搜索“昆山论坛”,或搜索抖音号:ksbbs
 
离线Daisoiii
发帖
1333
昆币
1457 枚
66楼 发表于: 2019-09-05 , 来自:江苏省0==
装修公司找的很早啊

楼主留言:

房子都弄好了,都说提前交房,所以就提早定了,请问你也是我们邻居吗

爆料有奖!关注昆山论坛抖音号,抖音搜索“昆山论坛”,或搜索抖音号:ksbbs
 
帅哥离线马明
级别: 昆山过客
发帖
89
昆币
127 枚
67楼 发表于: 2019-09-06 , 来自:江苏省0==
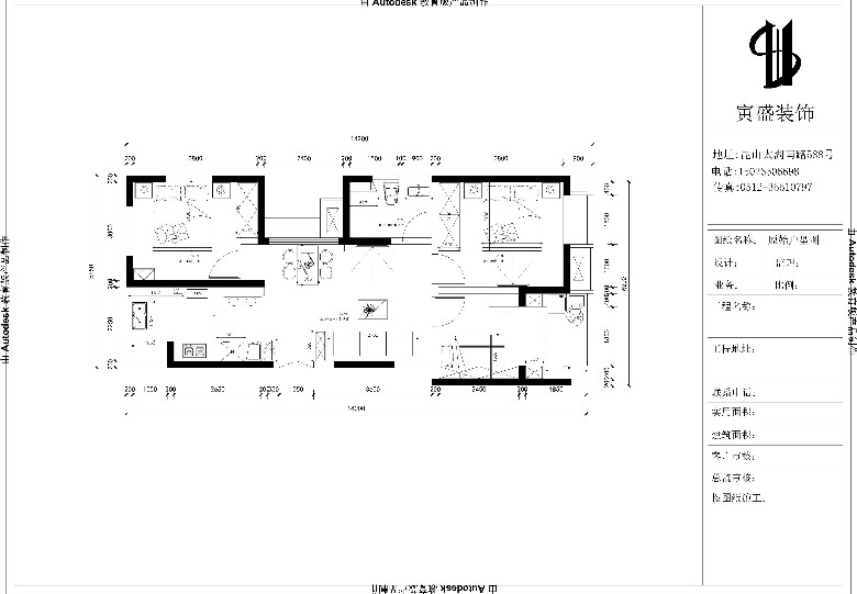
装饰公司给我的方案我也很喜欢,结合我的需求和户型设计的,下面和大家分享一下![attachment=5454415]
看看这里的邻居们有没有其他的好想法,我再调整调整,让方案更完美些!
爆料有奖!关注昆山论坛抖音号,抖音搜索“昆山论坛”,或搜索抖音号:ksbbs
 
帅哥离线马明
级别: 昆山过客
发帖
89
昆币
127 枚
68楼 发表于: 2019-09-06 , 来自:江苏省0==

爆料有奖!关注昆山论坛抖音号,抖音搜索“昆山论坛”,或搜索抖音号:ksbbs
 
帅哥离线马明
级别: 昆山过客
发帖
89
昆币
127 枚
69楼 发表于: 2019-09-06 , 来自:江苏省0==
坐等拿房
爆料有奖!关注昆山论坛抖音号,抖音搜索“昆山论坛”,或搜索抖音号:ksbbs
 
快速回复
限76 字节
如果您提交过一次失败了,可以用”恢复数据”来恢复帖子内容
 
上一个 下一个