夜间模式
  • 23565阅读
  • 7回复

【实景案例】居家需精致,生活不将就;我的北欧公寓新家! [复制链接]

上一主题 下一主题
帅哥离线小装
级别: 昆山新人
发帖
102
昆币
169 枚
只看楼主 使用道具 电梯直达
楼主  发表于: 2019-09-30 , 来自:江苏省0==



「 藝 」
[attachment=5480596]

- 有光  有温度  更有感动  -
A space with light temperature and moving

[attachment=5480587]


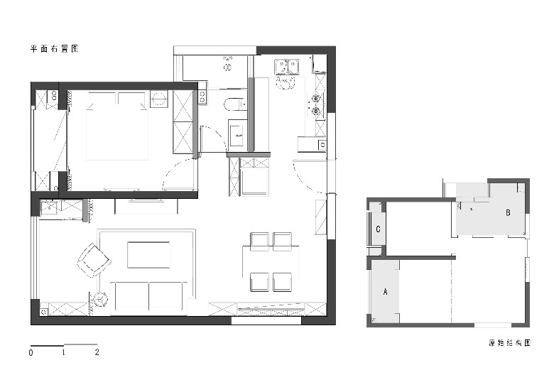
原始户型改造分析:
A、入户门正对卧室门,动线优化;
B、卫生间外面的设备阳台空间狭小,如何充分利用;
C、主卧飘窗下空调外机位的空间利用;
D、在设计和功能分区上如何拓宽客厅视觉感的延伸等之类。


「 成 」

[attachment=5480578]

一个人只拥有此生是不够的,你还应该拥有诗意的生活。而仪式感就像在原本如荒漠一般的生活绽放出的新芽,最后连成一片绿洲。追溯每一个客案的签约细节,我发现有一个共同点,就是我们的客人 生活都很有仪式感,爱造 不将就。


[attachment=5480582]

[attachment=5480592]

[attachment=5480598]

[attachment=5480591]

[attachment=5480581]

本屋的主人公,小姐姐和小哥哥是开清吧的,在他们的柴米油盐酱醋茶的生活里,每一天都是 特别的存在,因为接触太多形形色色的人,他们对自我的要求就会更高;同样延续到他们的居家生活满满的都是仪式感;就像小姐姐说的只有仪式感,才能放大自己的情绪,让平淡的生活开出花来,从而变成充满感动的细水长流,所以我们只需要过好自己的小日子就足够了。

[attachment=5480588]

[attachment=5480590]

[attachment=5480595]

[attachment=5480585]

[attachment=5480583]

[attachment=5480580]

[attachment=5480584]

[attachment=5480589]

[attachment=5480593]

[attachment=5480586]

[attachment=5480579]

[attachment=5480599]

[attachment=5480597]

[attachment=5480594]

愿所有的情深意重,都能换来岁月温柔,愿一生努力,想要实现的梦想都会尽快拥有。我们要尽其所能把我们的家打造成一个生活中心,在这里面,一切良好的事物会被抚育培养起来;我们的忠诚、热望,以及整个生命中高贵的东西,都会被发扬光大起来。



「 藝 成 」
是這樣的
她叫艺华  我叫郑成
於是 取其首位
「 藝 」
藝術 不只屬於殿堂
可以在街頭巷弄 可以在院落斗室
通過設計傳達幸福
讓空間主人泯然一笑 就是藝術
「 成 」
成天 無邊無際的發想
如何成就一個好的設計
成就一個幸福的家 為了生活的美好
也為了每一個青睞我們的業主朋友

本帖评分记录
弟子规 昆币 +1 -来自昆山论坛APP 2020-01-06
高小花花 昆币 +1 -来自昆山论坛APP 2019-10-01
2条评分昆币+2
爆料有奖!关注昆山论坛抖音号,抖音搜索“昆山论坛”,或搜索抖音号:ksbbs
 
帅哥离线小装
级别: 昆山新人
发帖
102
昆币
169 枚
沙发  发表于: 2019-09-30 , 来自:江苏省0==
「 藝 」


- 有光  有温度  更有感动  -
A space with light temperature and moving


原始户型改造分析:
A、入户门正对卧室门,动线优化;
B、卫生间外面的设备阳台空间狭小,如何充分利用;
C、主卧飘窗下空调外机位的空间利用;
D、在设计和功能分区上如何拓宽客厅视觉感的延伸等之类。



「 成 」



一个人只拥有此生是不够的,你还应该拥有诗意的生活。而仪式感就像在原本如荒漠一般的生活绽放出的新芽,最后连成一片绿洲。追溯每一个客案的签约细节,我发现有一个共同点,就是我们的客人 生活都很有仪式感,爱造 不将就。




[ 此帖被小装在2019-09-30 17:56重新编辑 ]
爆料有奖!关注昆山论坛抖音号,抖音搜索“昆山论坛”,或搜索抖音号:ksbbs
 
帅哥离线小装
级别: 昆山新人
发帖
102
昆币
169 枚
板凳  发表于: 2019-09-30 , 来自:江苏省0==




我们的客人是开清吧的,在他们的柴米油盐酱醋茶的生活里,每一天都是 特别的存在,因为接触太多形形色色的人,他们对自我的要求就会更高;同样延续到他们的居家生活满满的都是仪式感;就像小姐姐说的只有仪式感,才能放大自己的情绪,让平淡的生活开出花来,从而变成充满感动的细水长流,所以我们只需要过好自己的小日子就足够了。




爆料有奖!关注昆山论坛抖音号,抖音搜索“昆山论坛”,或搜索抖音号:ksbbs
 
帅哥离线小装
级别: 昆山新人
发帖
102
昆币
169 枚
地板  发表于: 2019-09-30 , 来自:江苏省0==
爆料有奖!关注昆山论坛抖音号,抖音搜索“昆山论坛”,或搜索抖音号:ksbbs
 
帅哥离线小装
级别: 昆山新人
发帖
102
昆币
169 枚
4楼 发表于: 2019-10-02 , 来自:江苏省0==

































愿所有的情深意重,都能换来岁月温柔,愿一生努力,想要实现的梦想都会尽快拥有。我们要尽其所能把我们的家打造成一个生活中心,在这里面,一切良好的事物会被抚育培养起来;我们的忠诚、热望,以及整个生命中高贵的东西,都会被发扬光大起来。
[ 此帖被小装在2019-10-02 17:52重新编辑 ]
爆料有奖!关注昆山论坛抖音号,抖音搜索“昆山论坛”,或搜索抖音号:ksbbs
 
美女离线盛世美颜
级别: 昆山过客
发帖
62
昆币
72 枚
5楼 发表于: 2019-10-04 , 来自:江苏省0==
楼主是设计师?
爆料有奖!关注昆山论坛抖音号,抖音搜索“昆山论坛”,或搜索抖音号:ksbbs
 
帅哥离线小装
级别: 昆山新人
发帖
102
昆币
169 枚
6楼 发表于: 2019-10-08 , 来自:江苏省0==
回 盛世美颜 的帖子
盛世美颜:楼主是设计师?
(2019-10-04 17:06)

回答正确,楼主是设计工作室,哈哈哈
爆料有奖!关注昆山论坛抖音号,抖音搜索“昆山论坛”,或搜索抖音号:ksbbs
 
帅哥离线小装
级别: 昆山新人
发帖
102
昆币
169 枚
7楼 发表于: 2019-10-11 , 来自:江苏省0==
真实的、永恒的、最高级的快乐,只能从三样东西中取得:工作、自我克制和爱。 —— 早安
三马哥和小姐姐的别墅,基本落地,再补一些软装饰品,就可以毕业了 又是一个特别有人情味的居家空间故事[愉快]


爆料有奖!关注昆山论坛抖音号,抖音搜索“昆山论坛”,或搜索抖音号:ksbbs
 
快速回复
限76 字节
如果您提交过一次失败了,可以用”恢复数据”来恢复帖子内容
 
上一个 下一个