今天分享的是一套建筑面积107平米的美式风三居室案例,房子整体的配色非常丰富和多样,但同时又不会让人感觉太过突兀。很喜欢客厅的这款森系的壁纸电视背景墙,花纹好看和整体的风格也非常融洽。
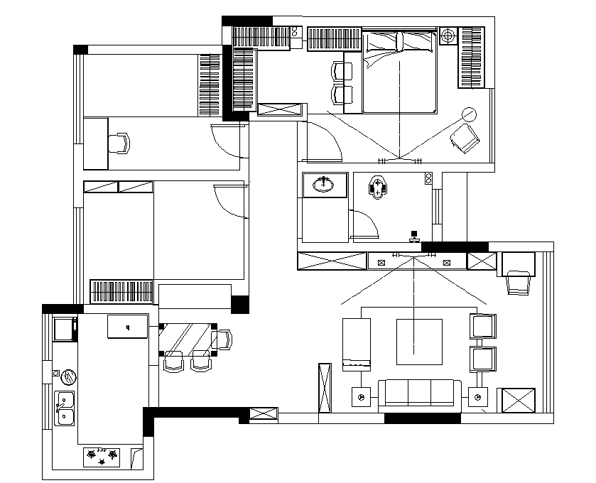
平面布置图▼

入户玄关位于中间的户型,一直延伸到了卧室的走廊,尽头处的绿植装饰画和灰蓝色的背景墙、深色的仿古砖结合起来,有些别样的差异感。
客厅这个空间是最喜欢的一个空间,墨绿色的沙发背景墙搭配森系的壁纸电视背景墙,在深色仿古砖的衬托下,显得典雅而又自然。
电视柜上还摆放了几个火烈鸟的装饰品,让客厅多出了一些活力感。电视背景墙的两侧也做了石膏线的造型,很常见的美式风设计。
客厅和入户门之间有着一个小矮柜,让玄关不至于没有储物空间。沙发边上的边几和落地灯,都是比较传统的美式风家具。
位于房子另一侧的餐厅也是很喜欢的一个空间,尤其是这堵文化砖的半墙隔断,看到的第一眼就让人觉得很有美式乡村风的感觉。
厨房和餐厅之间做了半墙隔断,那么自然也是半开放式的布局。厨房内部蓝白色的小砖相间,让人感觉到一些小清新感。
主卧室的床头背景墙被刷成了蓝色,而主卫被设计师改成了开放式的衣帽间,白色的柜子搭配深蓝色的背景墙,看起来别有一番风味。
儿童房的配色会更为清新一些,绿色搭配藕粉色,床品和窗帘的颜色和款式都比较可爱,整体给人一种浪漫、优雅的感觉。
卫生间的洗手台被放在了门外,多彩的仿古小砖铺满了这个空间的墙地面,深木色的浴室柜和浴室镜带来更传统的美式风感觉。