夜间模式
  • 10432阅读
  • 0回复

140平的现代轻奢风三居室,还有一个单独的洗衣房 [复制链接]

上一主题 下一主题
级别: 家装商家

发帖
21334
昆币
22281 枚
只看楼主 使用道具 电梯直达
楼主  发表于: 2020-01-07 , 来自:江苏省0==

今天分享的是一套建筑面积140平米的

现代轻奢风三居室案例,

整个房子的格局是非常宽敞的,

除了常规的客餐厅、厨房、卫生间和卧室外,

还有单独的衣帽间和洗衣房,

让屋主的家居生活变得更为轻松和惬意,

让人羡慕不已。


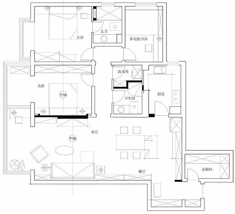
平面布置图

dvdf


▲入户玄关走廊处做了到顶的鞋柜,鞋柜的底部留空,方便摆放日常更换的鞋子。换鞋凳放在玄关的尽头,让玄关不会太过拥挤。


▲走过玄关就到了餐厅空间床,餐桌椅靠着岛台摆放,餐厅也可以作为西厨来使用。软木板加上另一侧的储物柜,让餐厅既好看又实用。


▲厨房内部的布局比较紧凑,U字型的橱柜加上各种嵌入到柜子当中的厨房电器,吊柜、墙面空间都充分利用起来,非常的实用。


▲在餐厅边上是客厅空间,整体以高级灰和白色为主,搭配复古感的沙发和电视柜、边柜等,让客厅展现出一种现代简约与轻奢风融合的感觉。


▲主卧室的床头背景墙是被刷成了灰粉色,床品和窗帘是灰色的,背景墙上还做了边框装饰条,搭配金属质感的椅子,看起来很有格调。


▲次卧和主卧的设计有些类似,但配色选择了更为宁静的灰蓝色搭配白色的设计,黑色的踢脚线和门套、边框,让次卧层次分明。


▲还有一间卧室是作为书房和备用客房来设计的,榻榻米床组合衣柜和书桌柜,既方便了屋主工作和学,又能满足休憩和收纳的需求。


▲卫生间内做了干湿分离的设计,设计师给浴室镜加上了背光,让卫生间更有时尚感。


▲在客卫的边上有一个独立的小空间,屋主把洗衣机、烘干机放在了这里,搭配一个立式的置物架,把小空间布置得更加紧凑实用。



本帖评分记录
鱼走海哭 昆币 +1 -来自昆山论坛APP 2020-01-07
wushengxio 昆币 +1 -来自昆山论坛APP 2020-01-07
2条评分昆币+2
爆料有奖!关注昆山论坛抖音号,抖音搜索“昆山论坛”,或搜索抖音号:ksbbs
 
电话:13912674136   微信账号:13912674136 QQ:2993026895  公司地址:张浦镇学士路35号          
快速回复
限76 字节
如果您提交过一次失败了,可以用”恢复数据”来恢复帖子内容
 
上一个 下一个