夜间模式
  • 16209阅读
  • 0回复

北欧风三房,白色为主,营造惬意氛围 [复制链接]

上一主题 下一主题
级别: 家装商家

发帖
21325
昆币
22262 枚
只看楼主 使用道具 电梯直达
楼主  发表于: 2020-05-09 , 来自:江苏省0==

今天分享一套建筑面积106平米的北欧风刚需小三房案例,

设计师以白色作为主色调,

搭配灰色系的软装和黑色、木色作为点缀,

营造出这样一个浅色系的舒适空间,

让人感觉轻松、自然而又大方。


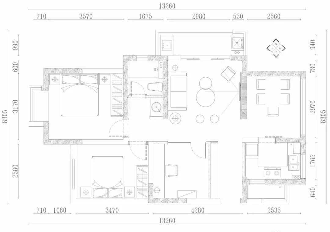
平面布置图


入户的玄关走廊,在走廊的一侧做了到顶的嵌入式鞋柜,鞋柜中留出换鞋凳区域,底部留空部分方便摆放日常更换的鞋子,更不会那么杂乱。


走过玄关之后就到了客厅空间,客厅的电视背景墙后方是餐厅,所以把留空一部分,让两个空间能够连通起来,看着更加宽敞。


客厅外的阳台空间面积比较小,全部被玻璃所包围,在阳台的两侧分别做洗手台和摆放洗衣机,顶部做个晾衣杆方便日常使用。


换个角度看客厅,客厅和书房之间用黑框玻璃作为隔断,茶几的款式和推拉门相互呼应,浅灰色的布艺沙发搭配白墙,显得格外轻松。


位于电视背景墙后方的餐厅空间,简洁的餐桌椅、吊灯搭配墙面的创意装饰和月牙墙贴,整个餐厅的面积虽然不大,但却独具趣味。


餐厅和厨房之间也用了玻璃门作为隔断,让光线能流通起来,厨房内部的铺贴了水泥质感的墙地砖,搭配白色橱柜,显得更加简洁、质朴。


主卧室的墙面延续了开放空间的白色系,选择灰色系的床品和深木色的床头柜,一盏可调节的吊灯,方便屋主靠着深灰色靠背看书。


次卧延续了主卧的设计风格,同样用灰色、白色来构造一个舒适的睡眠空间。卧室作为一个休息的地方,简单一些挺不错的。


卫生间做了彻底干湿分离的设计,把洗手台放在了卫生间的门外,内部的淋浴房和马桶也分开了,创意的浴室镜给卫生间增色不少。


爆料有奖!关注昆山论坛抖音号,抖音搜索“昆山论坛”,或搜索抖音号:ksbbs
 
电话:13912674136   微信账号:13912674136 QQ:2993026895  公司地址:张浦镇学士路35号          
快速回复
限76 字节
如果您在写长篇帖子又不马上发表,建议存为草稿
 
上一个 下一个