夜间模式
  • 13683阅读
  • 2回复

超美!灰色调搭配木质感,营造轻松氛围 [复制链接]

上一主题 下一主题
级别: 家装商家

发帖
21314
昆币
22238 枚
只看楼主 使用道具 电梯直达
楼主  发表于: 2020-05-12 , 来自:江苏省0==

这套建筑面积120平米的简约北欧风三居室案例,

设计师以灰色作为主色调,

搭配木饰面板、木地板和木质家具等木质感的设计,

来构造出这样一个简洁、轻松的家,

局部加上亮色软装、创意装饰,

避免太过单调。


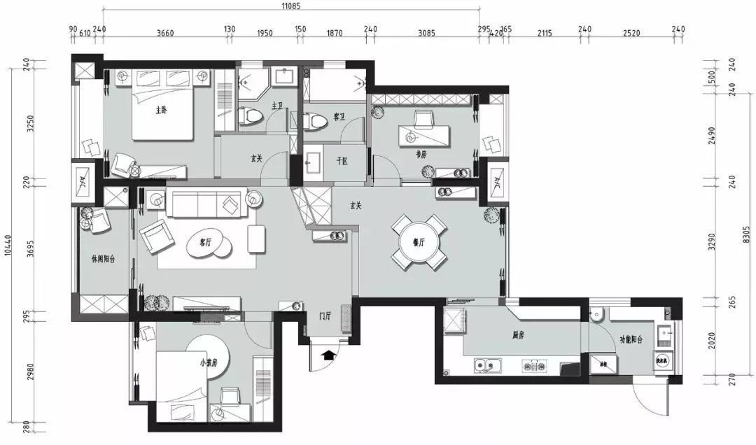
平面布置图



入户门厅处做了一个文化砖的背景墙,搭配一个深木色的端景台和独特的壁灯、装饰画等,构造出一个简洁而又有创意的北欧风空间。


在玄关门厅的侧方就是客厅空间,两侧墙面都刷成了灰色系,搭配木质电视柜、茶几和绿植、单椅等作为点缀,增添客厅的自然感、舒适度。


在玄关门厅的另一侧就是餐厅空间,整体以木质感为主,顶部做了个圆形的吊顶,餐厅的一侧留出一面摆放餐边柜的墙面,刷成米色更显温馨。


厨房内部以灰色系的墙地砖来搭配白色的橱柜,然后在局部用黑色作为点缀,黑白灰的经典搭配让厨房显得更为简洁大方。


洗衣房和厨房相连,所以也延续了厨房的设计方案,同样的黑白灰的简洁空间,洗衣机和洗手台结合起来,各种柜子作为收纳补充。


主卧室的床头背景墙和窗帘同样选择了灰色系的,墙面还做了和门厅相同的壁灯造型,搭配飘窗和木质感的家具,显得情调满满。


儿童房也是延续了主卧的设计风格,在床头一侧用书桌来代替床头柜,方便孩子平时读书学,渐变色的挂画让儿童房更有小清新感。


书房空间虽然不大,但也是把书桌布置在了中间的位置,显得更为大气,通体灰色与木质感的结合,带来年轻大方和自然舒适的感觉。


卫生间内部做了干湿分离的设计,在转角位置布置了一个钻石型的淋浴房,洗手台和马桶分列在两侧,这样的布局很适合面积不大的卫生间。



本帖评分记录
昆山伟宏门窗 昆币 +1 -来自昆山论坛APP 2020-05-12
1条评分昆币+1
爆料有奖!关注昆山论坛抖音号,抖音搜索“昆山论坛”,或搜索抖音号:ksbbs
 
电话:13912674136   微信账号:13912674136 QQ:2993026895  公司地址:张浦镇学士路35号          
级别: 禁止发言
发帖
1818
昆币
3795 枚
沙发  发表于: 2020-05-12 , 来自:江苏省0==
用户被禁言,该主题自动屏蔽!
本帖评分记录
xiangshuigir 昆币 +1 -来自昆山论坛APP 2020-05-12
1条评分昆币+1
爆料有奖!关注昆山论坛抖音号,抖音搜索“昆山论坛”,或搜索抖音号:ksbbs
 
美女离线昆山伟宏门窗
级别: 禁止发言

发帖
18978
昆币
32400 枚
板凳  发表于: 2020-05-12 , 来自:江苏省0==
用户被禁言,该主题自动屏蔽!
爆料有奖!关注昆山论坛抖音号,抖音搜索“昆山论坛”,或搜索抖音号:ksbbs
 
快速回复
限76 字节
如果您提交过一次失败了,可以用”恢复数据”来恢复帖子内容
 
上一个 下一个