夜间模式
  • 208417阅读
  • 53回复

[装修讨论]一次成功的改造,85㎡老房焕然一新,简约漂亮又大气 [复制链接]

上一主题 下一主题
美女离线装修版客服
发帖
10174
昆币
22137 枚
只看楼主 使用道具 电梯直达
楼主  发表于: 2020-10-10 , 来自:江苏省0==

老房改造在日常生活中很常见,

看着房子一点点褪去陈旧的面貌,

转而变成舒适的新家,

幸福感和成就感简直爆棚。


下面就跟着家装君一起来看看

这套85㎡的两居室是如何改变的吧,

完工前后对比焕然一新,简约漂亮又大气,

这效果也太让人满意了吧。


如果您也想要满意的翻新效果

那就来论坛报名,

施工过程论坛监督更有保障哦!


局部翻新也可以哦,

扫描下方二维码报名局部装修即可!

局部报名装修 .jpg


改造前▼


改造前的房屋格局不合理,空间过于闭塞,

其次色调暗沉空间压抑,

同时缺乏收纳,整体给人感觉很杂乱。



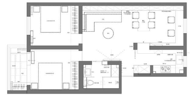
改造平面图▼



改造前平面图,户型分析:

1、玄关缺乏收纳空间,导致进门区域很杂乱;

2、厨房太过拥挤、缺乏空间之间的互动;

3、客厅、餐厅和书房规划不佳,空间紧凑,采光通风不佳。




装修平面图,户型改造分析:

1、利用户型结构,在玄关规划出鞋柜,提高收纳能力;

2、厨房和玄关连通,提高厨房使用面积,又增空间互动;

3、拆除原有隔断,将厨房、餐厅和书房打通,让空间更宽敞通透。


玄关改造前后对比▼



改造前的玄关,老旧的大白墙、颜色暗沉的房门,缺乏收纳空间,鞋子直接摆放在外面,进门体验感非常不好。


改造后的玄关,利用空间结构新增了隔断鞋柜,提高玄关收纳能力保持空间整洁。鞋柜侧面一面全身镜,满足日常整理着装,同时也有着放大空间的作用。拆除原有吊柜和石膏线,局部吊顶拉高层高,筒灯和灯带设计提供照明,让玄关更加明亮。


客厅改造前后对比▼

改造前
改造后


改造前的客厅,先从玄关看向客厅,家具和装修都老气过时了,不符合年轻一代的审美。同时也缺乏收纳,东西都直接丢在椅子上。


改造后的客厅,空间打通之后,空间更显宽敞。布艺沙发取代了原来的木家具,更加的舒适实用。调整了空间安装位置,设计了一排储物柜,提高客餐厅收纳,让空间更加整洁。沙发背后的矮柜,用于存放不常用的物件,柜子进深延伸了空间感,台面又可以摆放绿植、装饰画和充电器等。




为了居家动线的流畅,舍弃了电视柜直接安装隔板架,简单实用节省空间。电视墙不做任何造型,简简单单的一面墙,省钱又耐看。为了视觉上的统一效果,房门做成通高的门头。


改造前客厅看向餐厅和玄关,第一感觉就是很乱,其次是采光通风不佳。


改造后的效果,重新规划设计后,不再昏暗杂乱,整体变得整洁宽敞有序。拆除原有隔断,将客厅、餐厅和书房空间打通,改善视觉通透,提高通风采光。拆除原有地砖,改换成浅色调木地板,更加的舒适温馨。餐边柜设计极大的提高了收纳能力,同时又不影响区域,保持空间流畅。


书房改造前后对比▼



改造前的书房,由于隔断的因素,导致空间非常的狭小拥挤,日常办公都不能随心所欲。


改造后的书房,将空间打通后,一改之前狭小拥挤变得宽敞舒适。一圈木饰台面将空间连接起来,靠窗设计工作台,可以同时满足两人办公需求。左右两侧均设计了储物柜,虽然进深不足,但也可以收藏一些小物件。吊柜设计充分利用台面上放空间,用于摆放书籍和手工模型,这样就不需要占用空间摆放书柜了。


厨房改造前后对比▼



改造前的厨房,空间还是比较拥挤的,整体设计也不是很合理,收纳空间也欠缺。


改造后的厨房,厨房和玄关连通之后变得宽敞许多。由于操作空间不足,左侧设计了一道宽35cm台面,用于摆放厨房电器和其他物品,下方又可以收纳。高低操作台设计更符合人体工程学,提高了日常烹饪舒适性。灶台上方除了油烟机外,还设计了吊柜保证充足的收纳。


卧室改造前后对比▼


image.png
image.png


改造前的主卧,装修还是比较简洁,但是色调过于暗沉整个空间显得很压抑。隔断门设计,更是降低了卧室采光效果。


改造后的卧室,简单纯粹回归睡眠本质。白色为主调辅佐木色,空间简洁舒适明亮。拆除了原有隔断门,将卧室与阳台连通,增加地台和储物柜,提高空间衔接和收纳。衣柜中间采用镂空设计,用于摆放睡前物品,隐藏灯光照明,暖色的光源给卧室增添温馨氛围。


卫生间改造前后对比▼



改造前的卫生间,置物架太多、水管外露、瓷砖颜色太深,整体使用感觉不佳。


改造后的卫生间,整体简洁大气。镜柜和悬空浴室柜结合,解决了卫浴大部分收纳问题。洗衣机从卧室阳台移到了卫生间,布置外角落刚好不影响。淋浴采用开放式格局,拥有更大的活动空间,有了宝宝之后方便洗澡盆的使用。


看完这个案例感觉如何呢?

也想给自己的老房变变样吗?

欢迎来论坛报名,

施工过程论坛监督更有保障哦!


局部翻新也可以哦,

扫描下方二维码报名局部装修即可!

局部报名装修 .jpg


本帖评分记录
沈松然 昆币 +1 -来自昆山论坛APP 2020-10-17
山多拉的明灯 昆币 +1 -来自昆山论坛APP 2020-10-17
自我归零 昆币 +1 -来自昆山论坛APP 2020-10-16
绘影 昆币 +1 -来自昆山论坛APP 2020-10-16
over503 昆币 +1 -来自昆山论坛APP 2020-10-16
掬水捧月 昆币 +1 -来自昆山论坛APP 2020-10-16
wujun101 昆币 +1 -来自昆山论坛APP 2020-10-15
蓝天lr 昆币 +1 -来自昆山论坛APP 2020-10-15
顺流£逆流 昆币 +1 -来自昆山论坛APP 2020-10-15
青青叶 昆币 +1 -来自昆山论坛APP 2020-10-15
56条评分昆币+58
爆料有奖!关注昆山论坛抖音号,抖音搜索“昆山论坛”,或搜索抖音号:ksbbs
 
帅哥离线wglcs9801
发帖
1486
昆币
4100 枚
置顶 (来自7楼) 发表于: 2020-10-11 , 来自:江苏省0==
透露下价格。确实想改造一下
爆料有奖!关注昆山论坛抖音号,抖音搜索“昆山论坛”,或搜索抖音号:ksbbs
 
离线梅笑颜开
发帖
1341
昆币
2209 枚
沙发  发表于: 2020-10-10 , 来自:江苏省0==
真漂亮赞\(≧≦)/
爆料有奖!关注昆山论坛抖音号,抖音搜索“昆山论坛”,或搜索抖音号:ksbbs
 
美女离线昆山伟宏门窗
级别: 禁止发言

发帖
18978
昆币
32400 枚
板凳  发表于: 2020-10-10 , 来自:江苏省0==
用户被禁言,该主题自动屏蔽!
爆料有奖!关注昆山论坛抖音号,抖音搜索“昆山论坛”,或搜索抖音号:ksbbs
 
美女离线被楼下逼疯了
级别: 禁止发言
发帖
1924
昆币
2753 枚
地板  发表于: 2020-10-10 , 来自:江苏省0==
用户被禁言,该主题自动屏蔽!
本帖评分记录
古耐 昆币 +1 -来自昆山论坛APP 2020-10-16
xixixixil 昆币 +1 -来自昆山论坛APP 2020-10-14
红薯 昆币 +1 -来自昆山论坛APP 2020-10-11
3条评分昆币+3
爆料有奖!关注昆山论坛抖音号,抖音搜索“昆山论坛”,或搜索抖音号:ksbbs
 
美女离线阳澄三白
级别: 禁止发言
发帖
46631
昆币
92 枚
4楼 发表于: 2020-10-10 , 来自:江苏省0==
用户被禁言,该主题自动屏蔽!
本帖评分记录
888洋 昆币 +1 -来自昆山论坛APP 2020-10-14
1条评分昆币+1
爆料有奖!关注昆山论坛抖音号,抖音搜索“昆山论坛”,或搜索抖音号:ksbbs
 
帅哥离线赵照
级别: 昆山新人
发帖
309
昆币
115 枚
5楼 发表于: 2020-10-11 , 来自:上海市0==
透露下价格
爆料有奖!关注昆山论坛抖音号,抖音搜索“昆山论坛”,或搜索抖音号:ksbbs
 
级别: 禁止发言
发帖
20
昆币
35 枚
6楼 发表于: 2020-10-11 , 来自:江苏省0==
用户被禁言,该主题自动屏蔽!
爆料有奖!关注昆山论坛抖音号,抖音搜索“昆山论坛”,或搜索抖音号:ksbbs
 
帅哥离线wglcs9801
发帖
1486
昆币
4100 枚
7楼 发表于: 2020-10-11 , 来自:江苏省0==
透露下价格。确实想改造一下
爆料有奖!关注昆山论坛抖音号,抖音搜索“昆山论坛”,或搜索抖音号:ksbbs
 
帅哥离线菩提树jf
级别: 初来乍到
发帖
5
昆币
5 枚
8楼 发表于: 2020-10-11 , 来自:江苏省0==
这是广告吗
爆料有奖!关注昆山论坛抖音号,抖音搜索“昆山论坛”,或搜索抖音号:ksbbs
 
快速回复
限76 字节
如果您提交过一次失败了,可以用”恢复数据”来恢复帖子内容
 
上一个 下一个