夜间模式
  • 9249阅读
  • 1回复

大慈装饰 | 精致与粗犷相得益彰的现代美式(实景案例) [复制链接]

上一主题 下一主题
美女离线大慈装饰
级别: 家装商家

发帖
20529
昆币
2362 枚
只看楼主 使用道具 电梯直达
楼主  发表于: 2021-01-09 , 来自:江苏省0==
案例信息丨Case Information

项目地点:兰亭御园23#
项目类型:复式
项目性质:全案
项目面积:143㎡
项目风格:现代美式    
首设计: 龚工
设计组:DACI全案组

美式的精致与粗犷相得益彰,喜欢美式,就是对向往美好生活的表达。

▼业主需求
一家三口,女儿留学,常住夫妻两人。希望空间打开,共用起居室,功能分区整体
▼户型优劣势
本案是高楼层的边套,采光很好,不足的就是厨房空间不够大,房间也比较小。
▼户型改造
厨房做了隔断,复式二楼不会有油烟味。一楼客厅原始阳台扩进客厅,增加客厅的采光与开间。



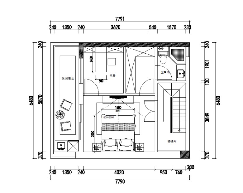
▲ 一楼施工图


▲ 二楼施工图







———— 金色拉丝金属装饰线条,是精致感的必要体现,瞬间点亮空间


———— 闪亮亮的水晶灯,透气感和精致感随之而来,为生活带来浪漫仪式感






———— 精致的雕塑工艺品,修饰着充满艺术气息的钢琴和充满书香气息的书架


————厨房是 U型格局设计,白色瓷砖搭配高级灰柜体和浅灰墙面显得更有层次感。

———— 餐桌选择了稍大尺寸,搭配深色高靠背椅。带金箔线条的护墙板和餐边柜,优雅大气,哪怕一家六口吃饭都不会觉得拥挤。



————古朴色系的复古地板带来温馨关怀的感觉,柔和吊灯营造静谧的休息氛围。木质的清香深沉,在棉麻床品的柔软中,营造出一种宁静致远的闲适。



————淋浴间让空间整体趋向几何感,黑色金属外框在一片浅色中尤为显眼,不仅没有打破色彩平衡,反而有种微妙的和谐感。



[ 此帖被大慈装饰在2021-01-09 13:27重新编辑 ]
爆料有奖!关注昆山论坛抖音号,抖音搜索“昆山论坛”,或搜索抖音号:ksbbs
 
大慈装饰  昆山推荐率85%以上,口碑品牌  热线:0512-57779948/18551100758 地址:昆山市九方城保利地产大楼1704-1710
美女离线雪天使
发帖
15367
昆币
124 枚
沙发  发表于: 2021-01-10 , 来自:江苏省0==
        
爆料有奖!关注昆山论坛抖音号,抖音搜索“昆山论坛”,或搜索抖音号:ksbbs
 
快速回复
限76 字节
如果您在写长篇帖子又不马上发表,建议存为草稿
 
上一个 下一个