夜间模式
  • 332967阅读
  • 46回复

[装修讨论]家里装修/DIY黑板墙,记录绘制全过程的视频 [复制链接]

上一主题 下一主题
帅哥离线印象水仙设计
级别: 家装商家
发帖
11308
昆币
19358 枚
30楼 发表于: 2022-03-30 , 来自:江苏省0==
喜欢楼主家装修的,关注印象水仙设计哦
本帖评分记录
伤痛有痕 昆币 +1 -来自昆山论坛APP 2022-03-31
1条评分昆币+1
爆料有奖!关注昆山论坛抖音号,抖音搜索“昆山论坛”,或搜索抖音号:ksbbs
 
离线伤痛有痕
级别: 昆山过客
发帖
83
昆币
114 枚
31楼 发表于: 2022-03-31 , 来自:江苏省0==
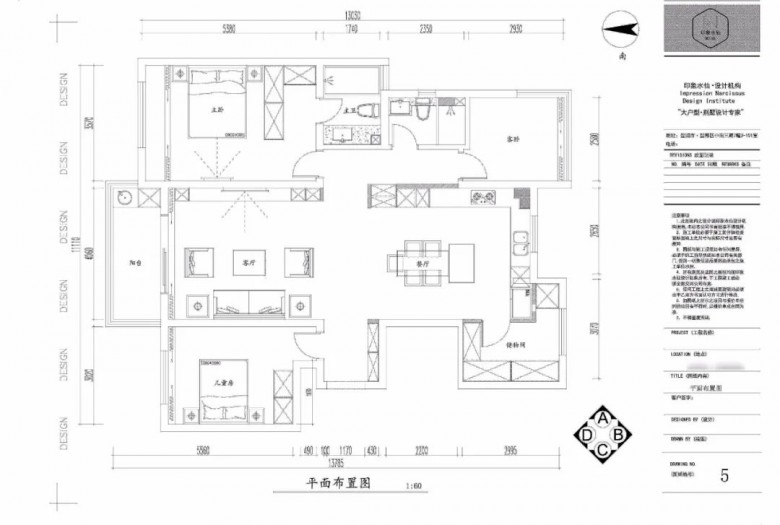
完工照片拍了,我再发几张,原始图和平面也一起发了。










本帖评分记录
伤痛有痕 昆币 +1 -来自昆山论坛APP 2022-04-18
1条评分昆币+1
爆料有奖!关注昆山论坛抖音号,抖音搜索“昆山论坛”,或搜索抖音号:ksbbs
 
离线伤痛有痕
级别: 昆山过客
发帖
83
昆币
114 枚
32楼 发表于: 2022-04-18 , 来自:江苏省0==
好想宅在新家
爆料有奖!关注昆山论坛抖音号,抖音搜索“昆山论坛”,或搜索抖音号:ksbbs
 
发帖
11504
昆币
15072 枚
33楼 发表于: 2022-04-18 , 来自:江苏省0==
回 伤痛有痕 的帖子
伤痛有痕:好想宅在新家[表情] (2022-04-18 09:56)

还没搬吗
爆料有奖!关注昆山论坛抖音号,抖音搜索“昆山论坛”,或搜索抖音号:ksbbs
 
离线风见映勇
级别: 昆山新人
发帖
241
昆币
297 枚
34楼 发表于: 2022-04-23 , 来自:江苏省0==
没有疫情的时候真好
爆料有奖!关注昆山论坛抖音号,抖音搜索“昆山论坛”,或搜索抖音号:ksbbs
 
级别: 昆山新人
发帖
120
昆币
185 枚
35楼 发表于: 2022-04-24 , 来自:江苏省0==
品味不错
爆料有奖!关注昆山论坛抖音号,抖音搜索“昆山论坛”,或搜索抖音号:ksbbs
 
离线伤痛有痕
级别: 昆山过客
发帖
83
昆币
114 枚
36楼 发表于: 2022-04-28 , 来自:江苏省0==
品味还行
爆料有奖!关注昆山论坛抖音号,抖音搜索“昆山论坛”,或搜索抖音号:ksbbs
 
离线失控把手
级别: 昆山新人
发帖
409
昆币
587 枚
37楼 发表于: 2022-04-29 , 来自:江苏省0==
爆料有奖!关注昆山论坛抖音号,抖音搜索“昆山论坛”,或搜索抖音号:ksbbs
 
离线目光虔诚
级别: 昆山过客
发帖
59
昆币
96 枚
38楼 发表于: 2022-04-29 , 来自:江苏省0==
羡慕完工啦
楼中楼
  • 2022-05-05 15:40 伤痛有痕: 疫情结束 装修也快的 找到对的装修公司
本帖评分记录
伤痛有痕 昆币 +1 -来自昆山论坛APP 2022-05-13
1条评分昆币+1
爆料有奖!关注昆山论坛抖音号,抖音搜索“昆山论坛”,或搜索抖音号:ksbbs
 
离线伤痛有痕
级别: 昆山过客
发帖
83
昆币
114 枚
39楼 发表于: 2022-05-05 , 来自:江苏省0==
疫情结束 我们就可以入住啦
本帖评分记录
伤痛有痕 昆币 +1 -来自昆山论坛APP 2022-05-13
1条评分昆币+1
爆料有奖!关注昆山论坛抖音号,抖音搜索“昆山论坛”,或搜索抖音号:ksbbs
 
快速回复
限76 字节
如果您提交过一次失败了,可以用”恢复数据”来恢复帖子内容
 
上一个 下一个