夜间模式
打赏中心
每日签到
幸运转盘
论坛帮助
活动聚焦
手机客户端
道具中心
商家认证
勋章中心
诚信认证
快捷通道
关闭
您还没有登录,快捷通道只有在登录后才能使用。
立即登录
还没有帐号? 赶紧
注册一个
论坛首页
论坛导航
商家
招聘
装修
昆山优选
小红娘
分类信息
二手房
昆山视窗
登录
注册
找回密码
帖子
用户
版块
帖子
搜索
论坛首页
>
论坛导航
>
酸甜苦辣话装修
>
爆改68平老破小,两房改小三房
发帖
回复
返回列表
上一页
1
2
3
4
5
6
...40
下一页
到第
页
确认
新帖
321491
阅读
392
回复
爆改68平老破小,两房改小三房
[复制链接]
扫描到手机
论坛小编教你如何扫二维码
上一主题
下一主题
离线
暮光青柠
UID:1309322
注册时间
2022-03-03
最后登录
2022-04-27
发帖
365
搜Ta的帖子
精华
0
昆币
382
访问TA的空间
加好友
用道具
级别:
昆山新人
发帖
365
昆币
382 枚
加关注
发消息
只看该作者
10楼
发表于: 2022-04-20
,
来自:江苏省
0==
先生开始一直没想找设计师,因为他本身就是从事地产行业的工作,也是天天和房子打交道。后来也不知道哪句话打动了他,他看过SLH的案例后也非常认可他们空间设计的能力,就这样,我们签约了
[ 此帖被暮光青柠在2022-04-20 09:23重新编辑 ]
本帖评分记录
共
条评分
爆料有奖!关注昆山论坛抖音号,抖音搜索“昆山论坛”,或搜索抖音号:ksbbs
引用
举报
离线
暮光青柠
UID:1309322
注册时间
2022-03-03
最后登录
2022-04-27
发帖
365
搜Ta的帖子
精华
0
昆币
382
访问TA的空间
加好友
用道具
级别:
昆山新人
发帖
365
昆币
382 枚
加关注
发消息
只看该作者
11楼
发表于: 2022-04-20
,
来自:江苏省
0==
会一直更新到搬家,更多的是想记录这一路点滴过程,也许过几年还能回头看看。
本帖评分记录
共
条评分
爆料有奖!关注昆山论坛抖音号,抖音搜索“昆山论坛”,或搜索抖音号:ksbbs
引用
举报
离线
暮光青柠
UID:1309322
注册时间
2022-03-03
最后登录
2022-04-27
发帖
365
搜Ta的帖子
精华
0
昆币
382
访问TA的空间
加好友
用道具
级别:
昆山新人
发帖
365
昆币
382 枚
加关注
发消息
只看该作者
12楼
发表于: 2022-04-20
,
来自:江苏省
0==
如果同样有老破小要装修的坛友也可以参考一下,因为我也参考了好多日记贴的设计,以及施工方的工艺展示。
本帖评分记录
共
条评分
爆料有奖!关注昆山论坛抖音号,抖音搜索“昆山论坛”,或搜索抖音号:ksbbs
引用
举报
离线
暮光青柠
UID:1309322
注册时间
2022-03-03
最后登录
2022-04-27
发帖
365
搜Ta的帖子
精华
0
昆币
382
访问TA的空间
加好友
用道具
级别:
昆山新人
发帖
365
昆币
382 枚
加关注
发消息
只看该作者
13楼
发表于: 2022-04-20
,
来自:江苏省
0==
本帖评分记录
共
条评分
爆料有奖!关注昆山论坛抖音号,抖音搜索“昆山论坛”,或搜索抖音号:ksbbs
引用
举报
离线
暮光青柠
UID:1309322
注册时间
2022-03-03
最后登录
2022-04-27
发帖
365
搜Ta的帖子
精华
0
昆币
382
访问TA的空间
加好友
用道具
级别:
昆山新人
发帖
365
昆币
382 枚
加关注
发消息
只看该作者
14楼
发表于: 2022-04-20
,
来自:江苏省
0==
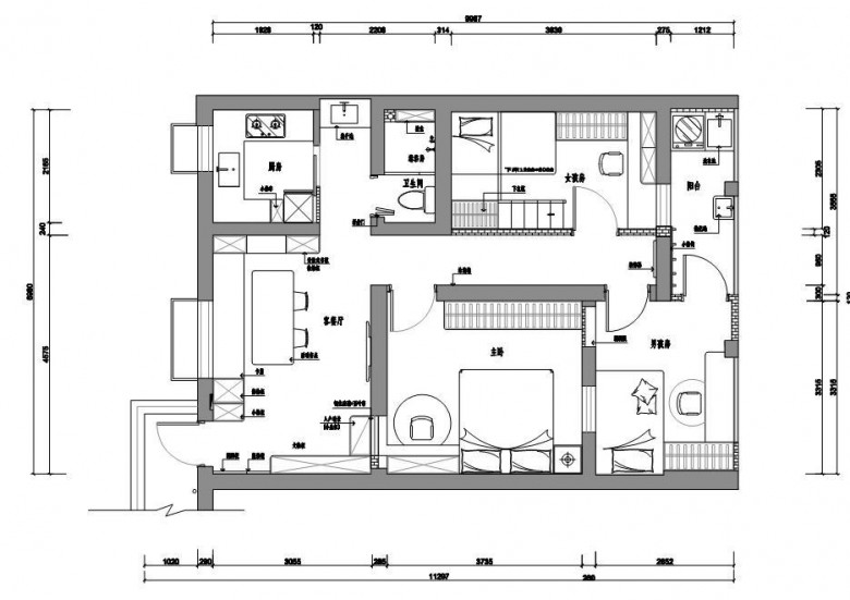
上效果图,先介绍一下这次设计
本帖评分记录
共
条评分
爆料有奖!关注昆山论坛抖音号,抖音搜索“昆山论坛”,或搜索抖音号:ksbbs
引用
举报
离线
暮光青柠
UID:1309322
注册时间
2022-03-03
最后登录
2022-04-27
发帖
365
搜Ta的帖子
精华
0
昆币
382
访问TA的空间
加好友
用道具
级别:
昆山新人
发帖
365
昆币
382 枚
加关注
发消息
只看该作者
15楼
发表于: 2022-04-20
,
来自:江苏省
0==
客厅真的非常非常小,不知道之前人家房主是怎么安排摆设的,反正14平方不到的客厅,我们直接放弃了沙发和茶几,只能让餐桌的功能多维立体起来,它可以是餐桌,书桌,茶几。
本帖评分记录
共
条评分
爆料有奖!关注昆山论坛抖音号,抖音搜索“昆山论坛”,或搜索抖音号:ksbbs
引用
举报
离线
暮光青柠
UID:1309322
注册时间
2022-03-03
最后登录
2022-04-27
发帖
365
搜Ta的帖子
精华
0
昆币
382
访问TA的空间
加好友
用道具
级别:
昆山新人
发帖
365
昆币
382 枚
加关注
发消息
只看该作者
16楼
发表于: 2022-04-20
,
来自:江苏省
0==
本帖评分记录
共
条评分
爆料有奖!关注昆山论坛抖音号,抖音搜索“昆山论坛”,或搜索抖音号:ksbbs
引用
举报
离线
暮光青柠
UID:1309322
注册时间
2022-03-03
最后登录
2022-04-27
发帖
365
搜Ta的帖子
精华
0
昆币
382
访问TA的空间
加好友
用道具
级别:
昆山新人
发帖
365
昆币
382 枚
加关注
发消息
只看该作者
17楼
发表于: 2022-04-20
,
来自:江苏省
0==
入门没有玄关,入门左边设计了一个60cm宽顶天立地的柜子,镂空两层放日常进门的脏鞋,右边距墙还有15厘米,给我设计了一个15厘米超薄鞋柜,可放拖鞋。边上是下翻换鞋凳,因为我觉得孩子换鞋子还是坐着换比较好。鞋柜上方是洞洞板和镜子。
本帖评分记录
共
条评分
爆料有奖!关注昆山论坛抖音号,抖音搜索“昆山论坛”,或搜索抖音号:ksbbs
引用
举报
离线
暮光青柠
UID:1309322
注册时间
2022-03-03
最后登录
2022-04-27
发帖
365
搜Ta的帖子
精华
0
昆币
382
访问TA的空间
加好友
用道具
级别:
昆山新人
发帖
365
昆币
382 枚
加关注
发消息
只看该作者
18楼
发表于: 2022-04-20
,
来自:江苏省
0==
客厅的风扇灯也是设计师按我要求设计的。因为我们家惯爱吃饭吹风扇,虽然老房子环境不好,惊喜的是窗对面有人在露台种了一排竹子,还挺好看的,开窗通风还是比开空调更适应,还省电,为了配合我家风格,设计师帮我们选了这个木叶风扇灯,还不错哦!
本帖评分记录
共
条评分
爆料有奖!关注昆山论坛抖音号,抖音搜索“昆山论坛”,或搜索抖音号:ksbbs
引用
举报
离线
暮光青柠
UID:1309322
注册时间
2022-03-03
最后登录
2022-04-27
发帖
365
搜Ta的帖子
精华
0
昆币
382
访问TA的空间
加好友
用道具
级别:
昆山新人
发帖
365
昆币
382 枚
加关注
发消息
只看该作者
19楼
发表于: 2022-04-20
,
来自:江苏省
0==
本帖评分记录
共
条评分
爆料有奖!关注昆山论坛抖音号,抖音搜索“昆山论坛”,或搜索抖音号:ksbbs
引用
举报
发帖
回复
返回列表
上一页
1
2
3
4
5
6
...40
下一页
到第
页
确认
https://www.ksbbs.com
访问内容超出本站范围,不能确定是否安全
继续访问
取消访问
快速回复
限76 字节
如果您提交过一次失败了,可以用”恢复数据”来恢复帖子内容
您目前还是游客,请
登录
或
注册
进入高级模式
文字颜色
发 布
回复后跳转到最后一页
上一个
下一个
隐藏
快速跳转
社会民生
聚焦昆山
立法直通车
昆山分类信息
昆山市教育局
昆山公交集团
昆山市交通运输局
消费维权
美丽昆山
昆山百事通
文明昆山
全民反诈
城市生活
玉山广场
昆友圈
走遍天下
昆山招聘
KBS车友会
昆山体育
房产装修
房产大家谈
房产租售
酸甜苦辣话装修
生活资讯
家有儿女
美食天地
花草宠物
交友婚恋
闲花文字
数码摄影
认证商家
论坛商家
昆山商情
社区站务
论坛事务
删帖声明
关闭
关闭
选中
1
篇
全选
喜欢就打赏个小红包吧
请选择打赏金额
1元
5元
10元
30元
100元
200元
您是游客,登陆后可以使用赏金钱包
赏金钱包支付
微信扫码支付
赏
我要提现
用微信扫描二维码完成支付
电话:0512-57993030
工作日 8:30-17:00在线
广告热线:18012662666
紧急联系:18888186330