夜间模式
  • 371081阅读
  • 37回复

我的瑜伽馆装修日记 [复制链接]

上一主题 下一主题
帅哥离线zzk205
级别: 昆山过客
发帖
53
昆币
72 枚
只看楼主 使用道具 电梯直达
楼主  发表于: 2022-08-16 , 来自:江苏省0==
一周前,签了租赁合同,开个瑜伽馆。设计、采购、管理,工人自己找。直播一下,留个记录。

day1:拆除,套内106平米,拆除费用4000,包运输。






本帖评分记录
zzk205 昆币 +1 -来自昆山论坛APP 2022-09-24
shenjun8002 昆币 +1 -来自昆山论坛APP 2022-08-17
晶兰 昆币 +1 -来自昆山论坛APP 2022-08-16
3条评分昆币+3
爆料有奖!关注昆山论坛抖音号,抖音搜索“昆山论坛”,或搜索抖音号:ksbbs
 
帅哥离线zzk205
级别: 昆山过客
发帖
53
昆币
72 枚
沙发  发表于: 2022-08-16 , 来自:江苏省0==
能用的灯具、空调、电线盒都保留了。
爆料有奖!关注昆山论坛抖音号,抖音搜索“昆山论坛”,或搜索抖音号:ksbbs
 
发帖
11504
昆币
15072 枚
板凳  发表于: 2022-08-16 , 来自:江苏省0==
感觉都已经要装修好了
楼中楼
  • 2022-08-16 13:43 zzk205: 那是拆除之前的装修。
爆料有奖!关注昆山论坛抖音号,抖音搜索“昆山论坛”,或搜索抖音号:ksbbs
 
离线中帛科技
级别: 昆山新人
发帖
307
昆币
469 枚
地板  发表于: 2022-08-16 , 来自:江苏省0==
瑜伽馆真是遍地开发   老师素质普遍差
楼中楼
  • 2022-08-16 18:05 zzk205: 那更好,差异化竞争吧!
爆料有奖!关注昆山论坛抖音号,抖音搜索“昆山论坛”,或搜索抖音号:ksbbs
 
帅哥离线zzk205
级别: 昆山过客
发帖
53
昆币
72 枚
4楼 发表于: 2022-08-17 , 来自:江苏省0==
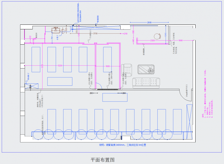
day2:
拆除花了一天半,完毕了。
把我3-4天画的图晒一晒。







爆料有奖!关注昆山论坛抖音号,抖音搜索“昆山论坛”,或搜索抖音号:ksbbs
 
帅哥离线zzk205
级别: 昆山过客
发帖
53
昆币
72 枚
5楼 发表于: 2022-08-17 , 来自:江苏省0==
还有一个没画完的:家具图,都是自己设计,让木工做,门板去定制。省点钱。

爆料有奖!关注昆山论坛抖音号,抖音搜索“昆山论坛”,或搜索抖音号:ksbbs
 
帅哥离线zzk205
级别: 昆山过客
发帖
53
昆币
72 枚
6楼 发表于: 2022-08-18 , 来自:上海市0==
Day3:改空调机位。3个吸顶空调,利旧,一个600元有点高了。一米铜管水管电缆120元。特别注意:要利用原来的铜管,省钱。最好用品牌售后的人员,靠谱。总花销5500。

爆料有奖!关注昆山论坛抖音号,抖音搜索“昆山论坛”,或搜索抖音号:ksbbs
 
发帖
645
昆币
23 枚
7楼 发表于: 2022-08-19 , 来自:江苏省0==
爆料有奖!关注昆山论坛抖音号,抖音搜索“昆山论坛”,或搜索抖音号:ksbbs
 
帅哥离线zzk205
级别: 昆山过客
发帖
53
昆币
72 枚
8楼 发表于: 2022-08-19 , 来自:江苏省0==
day4:
砌墙,非轻质,多孔砖,两个方钢构造住,3.4m高,12米长,100厚,包工包料8千元包括抹灰,构造柱1300,有点小贵。


爆料有奖!关注昆山论坛抖音号,抖音搜索“昆山论坛”,或搜索抖音号:ksbbs
 
帅哥离线zzk205
级别: 昆山过客
发帖
53
昆币
72 枚
9楼 发表于: 2022-08-19 , 来自:江苏省0==
纠偏:砌块间竖缝没有抹砌筑砂浆。
点赞:不同材料交界处挂钢丝网到位+真正分层抹灰。
教训:严控空调机位,不准确差点和墙体冲突。
爆料有奖!关注昆山论坛抖音号,抖音搜索“昆山论坛”,或搜索抖音号:ksbbs
 
快速回复
限76 字节
如果您在写长篇帖子又不马上发表,建议存为草稿
 
上一个 下一个