夜间模式
  • 197074阅读
  • 83回复

澳宇花园,二手房全拆改造,施工后续一一记录! [复制链接]

上一主题 下一主题
级别: 昆山过客
发帖
27
昆币
29 枚
20楼 发表于: 2022-09-21 , 来自:江苏省0==
保护的蛮好的
楼中楼
  • 2022-09-23 14:59 蛇欲吞象: 是的 这也是认真服务的一种表现吧
本帖评分记录
蛇欲吞象 昆币 +1 -来自昆山论坛APP 2022-09-23
1条评分昆币+1
爆料有奖!关注昆山论坛抖音号,抖音搜索“昆山论坛”,或搜索抖音号:ksbbs
 
离线暴风勇士
级别: 昆山过客
发帖
38
昆币
47 枚
21楼 发表于: 2022-09-21 , 来自:江苏省0==
  
爆料有奖!关注昆山论坛抖音号,抖音搜索“昆山论坛”,或搜索抖音号:ksbbs
 
级别: 初来乍到
发帖
7
昆币
8 枚
22楼 发表于: 2022-09-22 , 来自:江苏省0==
挺好的,好的装修共享
楼中楼
  • 2022-09-23 14:59 蛇欲吞象: 嗯 空了就来分享
本帖评分记录
蛇欲吞象 昆币 +1 -来自昆山论坛APP 2022-09-23
1条评分昆币+1
爆料有奖!关注昆山论坛抖音号,抖音搜索“昆山论坛”,或搜索抖音号:ksbbs
 
离线蛇欲吞象
级别: 昆山新人
发帖
187
昆币
276 枚
23楼 发表于: 2022-09-23 , 来自:江苏省0==
天气不错
来工地看了看
木工师傅进场了







爆料有奖!关注昆山论坛抖音号,抖音搜索“昆山论坛”,或搜索抖音号:ksbbs
 
级别: 昆山新人
发帖
155
昆币
215 枚
24楼 发表于: 2022-09-26 , 来自:江苏省0==
阳台下面不好拆了 重改吗
爆料有奖!关注昆山论坛抖音号,抖音搜索“昆山论坛”,或搜索抖音号:ksbbs
 
离线蛇欲吞象
级别: 昆山新人
发帖
187
昆币
276 枚
26楼 发表于: 2022-09-28 , 来自:江苏省0==
空了再更新
爆料有奖!关注昆山论坛抖音号,抖音搜索“昆山论坛”,或搜索抖音号:ksbbs
 
帅哥离线简介
级别: 昆山新人
发帖
245
昆币
342 枚
27楼 发表于: 2022-09-29 , 来自:江苏省0==
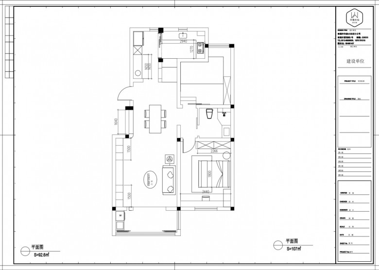
你们家多大房子啊
楼中楼
  • 2022-10-11 15:14 蛇欲吞象: 107
爆料有奖!关注昆山论坛抖音号,抖音搜索“昆山论坛”,或搜索抖音号:ksbbs
 
离线蛇欲吞象
级别: 昆山新人
发帖
187
昆币
276 枚
28楼 发表于: 2022-10-07 , 来自:江苏省0==
有人让我分享户型改造图的
发这里啦


本帖评分记录
蛇欲吞象 昆币 +1 -来自昆山论坛APP 2023-02-16
1条评分昆币+1
爆料有奖!关注昆山论坛抖音号,抖音搜索“昆山论坛”,或搜索抖音号:ksbbs
 
离线蛇欲吞象
级别: 昆山新人
发帖
187
昆币
276 枚
29楼 发表于: 2022-10-11 , 来自:江苏省0==
哎呀 这个顶 我爱了 师傅手艺真的绝绝子




爆料有奖!关注昆山论坛抖音号,抖音搜索“昆山论坛”,或搜索抖音号:ksbbs
 
快速回复
限76 字节
如果您提交过一次失败了,可以用”恢复数据”来恢复帖子内容
 
上一个 下一个