获批!完成省级备案!
昆山这些地方要逆袭了
住这的人身价有望上涨
刚刚获批!昆山住这的恭喜了
近日
昆山自然资源和规划部门传来喜讯
《昆山市锦溪镇红霞村、
马援庄村和计家墩村村庄规划
(2023-2035年)》
已获批并完成省级备案
未来这些乡村及周边
都将发生大变化
👇
红霞村、马援庄村和计家墩村位于昆山旅游度假区、锦溪镇南部核心区域,两条交通干线同周公路和锦商公路共同构成区域骨架路网,内外交通联系便捷。村域总面积为868.34公顷。
村域周边湖荡水系丰富,生态本底优越,具有典型的江南水乡特征。现状各类产业发展初具规模,但也存在产业发展与周边区域缺乏联动、一二三产融合深度不足等问题。
根据《昆山市镇村布局规划(2019版)》,红霞村、马援庄村和计家墩村共有6个自然村,其中集聚提升类村庄1个(红霞村),特色保护类村庄3个(张南、马援庄村、东庄村),其他一般村庄1个(南管泾村),搬迁撤并类村庄1个(计家墩)。
接着往下看
这里的规划到底如何
按照规划定位
这3个村庄将发展成
集乡村度假、现代农业、文化创意、
生态融合等功能于一体的农旅融合创新地、
乡创潮流引领地、和美人居示范地
打造“乡野慢生活,梦里新田园”
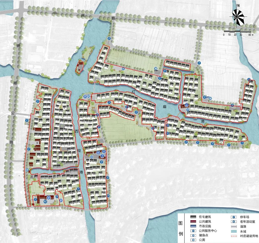
规划总平面图
规划形成
“一心、两轴、五区、多点”的空间结构
↓
五区
理想田园旅居区、水乡风貌生活区、环湖旅游度假区、工业生产集中区、棋盘荡生态湿地区

空间结构规划图
规划在同周公路以南、锦商公路以西区域新增建设用地4.2884公顷,主要用于红霞村道路建设项目和东方荡农文旅融合提升项目。
为规范农村住宅建设和管理,提高农村住房建设质量,优化空间布局,切实改善农村人居环境,在符合村域用地布局规划和用途管控要求的基础上,编制农村居民点规划设计方案,指导农村居民点农房建设。
规划共涉及红霞村、南管泾村、马援庄村、东庄村和张南5个居民点,重点满足村民农房翻建与公共服务设施配套的建设需求。
红霞居民点规划总平面图
南管泾居民点规划总平面图
马援庄和东庄居民点规划总平面图
规划农房户型以两层独立式住宅为主,总建筑面积不超过280平方米。建筑风貌与建筑风格以新苏式为主,主色调为黑白灰,体现江南水乡特色。


农房户型效果图
公共建筑以中式现代风格为主,建筑主色调为黑白灰,门窗主色调为棕色木纹,营造美观、舒适而又功能丰富的公共空间。
老邮局改造效果图
村内景观规划注重凝练村庄特色,打造入口景观节点,提升滨水空间活力,形成特色鲜明、空间宜人、层次丰富的乡土景观效果。


这哪里是农村
说是旅游景点也不为过!
现今
昆山大力推进特色田园乡村建设
相信在规划之下
赋能乡村振兴
会让农村居民的腰包越来越鼓

除此之外
昆山还有以下这些地方
即将迎来改造
云雀路半幅新建工程
(桂花路-黄浦江路段)建设项目
用地预审与选址意见批后公布
项目拟选位置:昆山开发区云雀路(桂花路-黄浦江路)
用地总面积:0.8411公顷
拟建设规模:新建道路全长约284米,红线宽约24-60米(半幅新建宽约17-53米)

支十五路新建工程(吴淞江路-百富路段)
建设项目用地预审与选址意见批后公布
项目拟选位置:昆山开发区支十五路(吴淞江路-百富路)
拟用地面积:0.2633公顷
拟建设规模:新建道路全长约180米,宽约10-38米

桂花路延伸及半幅新建
(百灵路-天鹅路段)建设项目
用地预审与选址意见批后公布
项目拟选位置:昆山开发区桂花路(百灵路-天鹅路)
拟用地面积:2.0217公顷
拟建设规模:项目实施范围百灵路至天鹅路,全长约667米(其中延伸段长约189米,半幅新建段长约478米),红线宽约29米(半幅新建段宽约22米)
平巷农贸市场改造新增周边配套工程
建设项目用地预审与选址意见批后公布
项目拟选位置:昆嘉路南侧、吴淞江路西侧
拟用地面积:0.2048公顷
拟建设规模:新建平巷邻里中心垃圾分类及作业场地,占地面积约2047.9平方米,包含道路、管道、成品设施、绿化景观、路灯、智能化系统及其他相关配套设施

……
全是利好民生的项目
毋庸置疑
昆山人的生活将越来越便捷
你还希望昆山迎来哪些变化?
欢迎留言聊聊