夜间模式
离线暖木
级别: 初来乍到
发帖
8
昆币
20 枚
只看楼主 使用道具 电梯直达
楼主  发表于: 2024-05-03 , 来自:浙江0==
从今年3月份看装修,前后跑了5,6家,前两天最后定了论坛推荐的张浦本地的老槐树装修,离我的小区距离蛮近,感觉还行,目前状态合同已经签了,等效果图和施工图出来定个日子开工。
合同里面写了没有增项,就是不知道实际会怎么样。主材那些柜子板材用的莫干山ENF的,水管日丰,电线长江,地砖用的宏陶的,墙砖用的罗马的,油漆立邦,其他杂七杂八没记住
抓哟就是在这里开个帖记录一下,顺便想通过平台也监督一下
本帖评分记录
昆山伟宏门窗 昆币 +1 -来自昆山论坛APP 2024-05-12
123abc交通 昆币 +1 -来自昆山论坛APP 2024-05-04
小城镇 昆币 +1 -来自昆山论坛APP 2024-05-03
3条评分昆币+3
爆料有奖!关注昆山论坛抖音号,抖音搜索“昆山论坛”,或搜索抖音号:ksbbs
 
离线123012301230
发帖
12430
昆币
22595 枚
沙发  发表于: 2024-05-03 , 来自:江苏省0==
没有增项只要房东不要求,应该不会有
爆料有奖!关注昆山论坛抖音号,抖音搜索“昆山论坛”,或搜索抖音号:ksbbs
 
帅哥离线昆山二大爷
发帖
9614
昆币
11068 枚
板凳  发表于: 2024-05-03 , 来自:江苏省0==
肯定会有
爆料有奖!关注昆山论坛抖音号,抖音搜索“昆山论坛”,或搜索抖音号:ksbbs
 
帅哥离线tengshi
级别: 昆山过客
发帖
41
昆币
90 枚
地板  发表于: 2024-05-03 , 来自:江苏省0==
厨房布局欠缺
爆料有奖!关注昆山论坛抖音号,抖音搜索“昆山论坛”,或搜索抖音号:ksbbs
 
美女离线好呀
发帖
592
昆币
961 枚
4楼 发表于: 2024-05-03 , 来自:江苏省0==
论坛装修你怎么找的
楼中楼
  • 2024-05-04 10:32 jianxuan646: 装修日记版块 酸辣都有案例分享,还是需要自己多看工地和案例
  • 2024-05-04 11:00 好呀: 就是觉得现在很多装修也不太靠谱,在看中
爆料有奖!关注昆山论坛抖音号,抖音搜索“昆山论坛”,或搜索抖音号:ksbbs
 
级别: 家装商家

发帖
21265
昆币
22148 枚
5楼 发表于: 2024-05-04 , 来自:未知0==
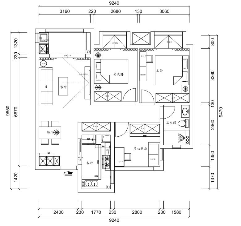
江湾四季的房型
爆料有奖!关注昆山论坛抖音号,抖音搜索“昆山论坛”,或搜索抖音号:ksbbs
 
电话:13912674136   微信账号:13912674136 QQ:2993026895  公司地址:张浦镇学士路35号          
离线暖木
级别: 初来乍到
发帖
8
昆币
20 枚
6楼 发表于: 2024-05-04 , 来自:浙江0==
回 林师傅装修 的帖子
林师傅装修:江湾四季的房型 (2024-05-04 22:23)

兰亭都荟的
爆料有奖!关注昆山论坛抖音号,抖音搜索“昆山论坛”,或搜索抖音号:ksbbs
 
离线暖木
级别: 初来乍到
发帖
8
昆币
20 枚
7楼 发表于: 2024-05-04 , 来自:浙江0==
回 好呀 的帖子
好呀:论坛装修你怎么找的 (2024-05-03 22:39)

找论坛客服然后他会给你推荐几家和你联系
爆料有奖!关注昆山论坛抖音号,抖音搜索“昆山论坛”,或搜索抖音号:ksbbs
 
离线暖木
级别: 初来乍到
发帖
8
昆币
20 枚
8楼 发表于: 2024-05-04 , 来自:浙江0==
回 tengshi 的帖子
tengshi:厨房布局欠缺 (2024-05-03 21:47)

有啥好的建议么
爆料有奖!关注昆山论坛抖音号,抖音搜索“昆山论坛”,或搜索抖音号:ksbbs
 
离线暖木
级别: 初来乍到
发帖
8
昆币
20 枚
9楼 发表于: 2024-05-04 , 来自:浙江0==
回 昆山二大爷 的帖子
昆山二大爷:肯定会有 (2024-05-03 20:52)

希望不会有吧
爆料有奖!关注昆山论坛抖音号,抖音搜索“昆山论坛”,或搜索抖音号:ksbbs
 
快速回复
限76 字节
如果您在写长篇帖子又不马上发表,建议存为草稿
 
上一个 下一个