夜间模式
  • 8913阅读
  • 3回复

[装修]115㎡现代简约,完工实景,二十来万搞定 [复制链接]

上一主题 下一主题
帅哥离线印象水仙设计
级别: 家装商家
发帖
11306
昆币
19355 枚
只看楼主 使用道具 电梯直达
楼主  发表于: 2021-05-25 , 来自:江苏省0==


项 目 简 介

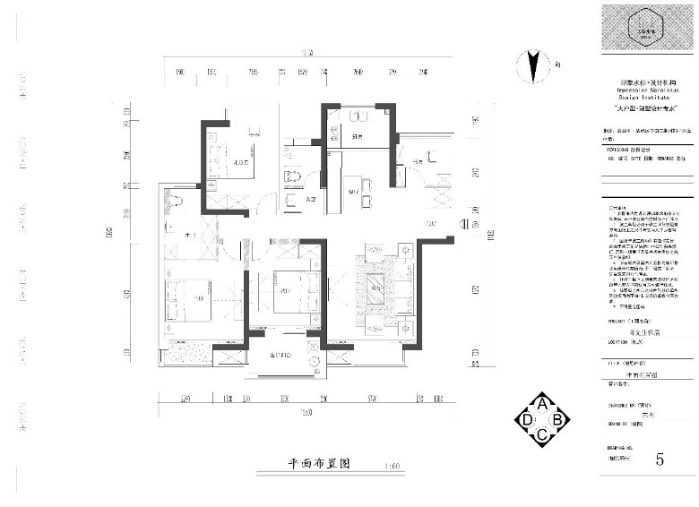
户型:三室两厅一厨两卫
风格:115㎡现代简约风




本案是一套115平的实景案例,整体为现代简约风格,经过巧妙的空间布局和规划之后,整体基调干净利落得没有一丝多余,清爽的颜色搭配简约的设计既美观又实用,让人一进门就能感受到轻松舒适的氛围。



原始结构图



平面布置图


客厅







客厅,整体空间现代简洁,搭配上闲适轻松的软装布置,带来的是年轻优雅的生活仪式感。




洁净的电视墙搭配大理石地砖,摆上一个成品电视柜,在绿植的搭配下,呈现出清新自然感。




米白色布艺沙发搭配两幅不同大小的装饰画,排列整齐,加上顶面的辅助灯光营造出舒适温馨的家居氛围。





走廊




走廊两边皆为浅灰色,墙上挂着现代画,给人以鲜明现代的个性风格。

餐厅




客餐厅被走廊隔断,餐厅与客厅风格保持一致,空间和谐而精致。




白色定制卡座充当一边餐椅,增加收纳的同时又节约了空间,大理石台面餐桌搭配两张灰色餐椅,顶部吊灯实用又好看。

厨房




厨房墙面的灰色墙砖,搭配白色橱柜与黑色把手,整个空间明亮而又时尚,操作台上整洁的摆放,为主人提供了舒心实用的烹饪空间。

主卧




主卧灰色背景墙,搭配一幅长型装饰画,很有意境。舒适的卧床,能让你好好地睡上一觉,飘窗也让主卧通透明亮了很多。




主卫在衣帽间内,墙面整体的白色瓷砖,使得整个卫生间相当的明亮宽敞,窗明几净大概就是这个意思吧。




次卧




次卧在浅色空间中融入了一些亮丽的色彩,让屋子显得特别有活力!








儿童房





儿童房淡蓝色的床头墙面,结合一幅星球装饰画,还有星空蓝的床单与白色床头柜的搭配,使整个空间童趣轻松,非常适合小孩子。




书桌摆在窗旁,一体化设计比较省空间,使用起来也方便。





卫生间




卫生间干湿分离,提高使用效率,整体以灰色为主,看起来简约大方。




[ 此帖被印象水仙设计在2021-05-25 17:49重新编辑 ]
爆料有奖!关注昆山论坛抖音号,抖音搜索“昆山论坛”,或搜索抖音号:ksbbs
 
帅哥离线毛毛1234577
发帖
10451
昆币
18643 枚
沙发  发表于: 2021-05-25 , 来自:江苏省0==
包括软装?
爆料有奖!关注昆山论坛抖音号,抖音搜索“昆山论坛”,或搜索抖音号:ksbbs
 
帅哥离线印象水仙设计
级别: 家装商家
发帖
11306
昆币
19355 枚
板凳  发表于: 2021-05-26 , 来自:江苏省0==
毛毛1234577:包括软装? (2021-05-25 18:08) 

所有哦 这个看每个主家对主材家具的需求预算的
爆料有奖!关注昆山论坛抖音号,抖音搜索“昆山论坛”,或搜索抖音号:ksbbs
 
帅哥离线印象水仙设计
级别: 家装商家
发帖
11306
昆币
19355 枚
地板  发表于: 2021-05-26 , 来自:江苏省0==
毛毛1234577:包括软装? (2021-05-25 18:08) 

他们家搞完不到30万 不过也接近了
爆料有奖!关注昆山论坛抖音号,抖音搜索“昆山论坛”,或搜索抖音号:ksbbs
 
快速回复
限76 字节
如果您提交过一次失败了,可以用”恢复数据”来恢复帖子内容
 
上一个 下一个