夜间模式
  • 25579阅读
  • 7回复

[装修]印象水仙|绿野清风·藏在夏天里的秘密,142㎡美式风 [复制链接]

上一主题 下一主题
帅哥离线印象水仙设计
级别: 家装商家
发帖
11308
昆币
19358 枚
只看楼主 使用道具 电梯直达
楼主  发表于: 2020-08-01 , 来自:江苏省0==
《观湖壹号》


沉浸于深林,
过着都市里的小隐生活,
甚是清悠自在。






---
面积 / 142㎡
风格 / 美式风
户型 / 四室两厅两卫一厨
硬装设计 / 印象水仙
   软装设计 / 印象水仙  
施工单位 / 印象水仙






本案是一个幸福的三口之家,一对恩爱夫妻、一个帅气的儿子构筑了大多数人心中家的温馨,设计师带自己女儿入境,可可爱爱;而这家的设计,设计师为这份温馨增添光彩,而静谧的绿色就是这个家最理想的颜色。


一抹高级的绿色,搭配多种元素的贯穿与呼应,以细节诠释美式空间独有的韵味,用色彩的渲染为家披上云端漫步的舒适与自由。


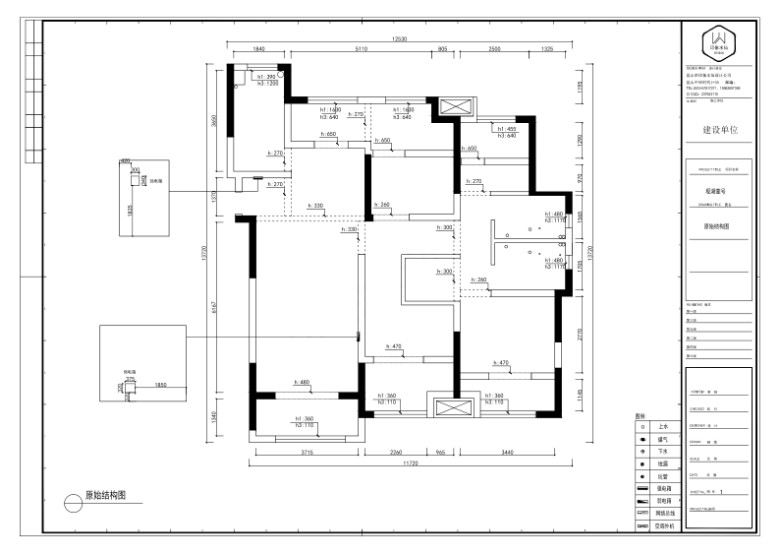
原始结构图


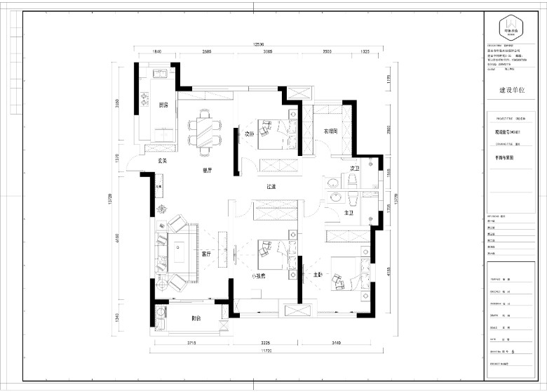
平面布置图




Hallway






进门右侧,精致的装饰,用色彩的纯度传递细腻的质感,令人沉醉其中,感受一种直撩人心的美。


Living Room










公共空间以绿色为基底,组合壁画结合一侧轻奢圆镜,完美打造精致的沙发背景墙;边几旁一盏复古台灯,一抹暖白让空间升华,同时满足空间氛围照明。满目的绿色背景墙提升客厅颜值,温润皮质家具氤氲出温柔气息。










造型优雅,线条流畅的电视背景墙,体现出高质量的生活细节,在繁华的城市里闹中取静,满足业主的需求,尽情享受生活的美好。
















Dining Room






白色墙面挂了一幅艺术画,石膏线条隐丰富了空间层次,窗边的拼色窗帘演绎角落里的艺术;实木餐桌椅,显现一种精致生活。






写满美好故事的用餐区,延续整体空间的清新婉约,一切都在暗示着美好。








Corridor






恬适自然的状态,目光所及之处皆有风景,如梦交织。


Kitchen






厨房采用L型橱柜,进门左侧放置冰箱,上下分体式橱柜,光滑易清洁;墙地砖采用不同款式的黄色仿古砖,却装出了温馨感。


Bedroom1










安静的紫调与暖色的家具,造就温润的视觉效果,营造出安逸舒适的氛围;藕粉色的窗帘,无可挑剔,白色透明纱帘,给卧室带来了温暖的自然光。








Cloakroom






纯粹的白让空间素净整洁,主人的细致和对生活的热爱在此充分体现。


Bedroom2






次卧空间以浅色为基底,两幅典雅的壁画以及蓝黄拼色窗帘,提升了空间层次感,主家精心挑选的家具打破传统美式的沉闷,带来温暖舒适的睡眠空间。






Children's Room






孩子的房间以浅蓝色为主,搭配简约美式家具,两幅壁画更是给空间添彩又富含寓意,靠窗阳光充足的小阳台部分改造成学和休息区。


Wash Room






内外卫生间的色调完全不一样,主材选用的材质,又极为相似,一深一浅的浴室柜,不经意间又多了些高级感。







[ 此帖被印象水仙设计在2020-08-01 10:43重新编辑 ]
本帖评分记录
鱼走海哭 昆币 +1 -来自昆山论坛APP 2020-08-01
1条评分昆币+1
爆料有奖!关注昆山论坛抖音号,抖音搜索“昆山论坛”,或搜索抖音号:ksbbs
 
离线shanang379
级别: 昆山新人
发帖
109
昆币
181 枚
沙发  发表于: 2020-08-01 , 来自:江苏省0==
果然很清凉啊
爆料有奖!关注昆山论坛抖音号,抖音搜索“昆山论坛”,或搜索抖音号:ksbbs
 
发帖
6918
昆币
6420 枚
板凳  发表于: 2020-08-01 , 来自:江苏省0==

欢迎关注
【寅盛装饰无毒家装】装修不环保砸掉重做,昆山十年,口碑见证!
公司官网:[url][urlend2]
VR案例:[url][urlend2]
精品案例:[url][urlend2]
城东店:昆山市太湖路588号,左岸尚海湾3-103商铺 ( 近震川东路,阳光水世界对面 )
昆山城北店:昆山市柏庐北路94号(柏庐大桥向北200米左右)


爆料有奖!关注昆山论坛抖音号,抖音搜索“昆山论坛”,或搜索抖音号:ksbbs
 
离线yiou203
级别: 昆山新人
发帖
155
昆币
251 枚
地板  发表于: 2020-08-01 , 来自:江苏省0==
感觉客厅的背景的颜色,很大胆啊
爆料有奖!关注昆山论坛抖音号,抖音搜索“昆山论坛”,或搜索抖音号:ksbbs
 
美女离线世间最美好的
级别: 昆山过客
发帖
82
昆币
115 枚
4楼 发表于: 2020-08-01 , 来自:江苏省0==
还好 不俗
爆料有奖!关注昆山论坛抖音号,抖音搜索“昆山论坛”,或搜索抖音号:ksbbs
 
帅哥离线印象水仙设计
级别: 家装商家
发帖
11308
昆币
19358 枚
5楼 发表于: 2020-08-02 , 来自:江苏省0==
世间最美好的:还好 不俗[表情] (2020-08-01 17:40) 

你也喜欢的绿色
爆料有奖!关注昆山论坛抖音号,抖音搜索“昆山论坛”,或搜索抖音号:ksbbs
 
美女离线雪天使
发帖
15097
昆币
324 枚
6楼 发表于: 2020-08-02 , 来自:江苏省0==
        
爆料有奖!关注昆山论坛抖音号,抖音搜索“昆山论坛”,或搜索抖音号:ksbbs
 
离线淘宝天下
级别: 昆山过客
发帖
15
昆币
21 枚
7楼 发表于: 2020-08-11 , 来自:江苏省0==
这家公司很烂的,谁找他们最后肯定后悔。
爆料有奖!关注昆山论坛抖音号,抖音搜索“昆山论坛”,或搜索抖音号:ksbbs
 
快速回复
限76 字节
如果您提交过一次失败了,可以用”恢复数据”来恢复帖子内容
 
上一个 下一个