夜间模式
  • 12055阅读
  • 1回复

[装修]137㎡华润国际--你想要的美式风格向暖而行 [复制链接]

上一主题 下一主题
帅哥离线1918设计
级别: 禁止发声
发帖
9059
昆币
10185 枚
只看楼主 使用道具 电梯直达
楼主  发表于: 2019-04-12 , 来自:江苏省0==
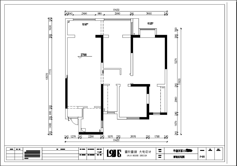
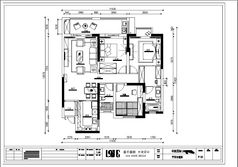
137㎡华润国际--你想要的美式风格向暖而行
▌风格定位:美式风格

▌装修预算:40万
▌设计说明:年少时也曾憧憬过未来会是怎样一种什么光景,也曾今被浮华迷离过双眼,幸而最后,潮水退去,渐渐露出被时间沉淀下的最初的梦想。家,因爱而生,细水长流。你希望的家?推开门就能让我产生归属感,温暖,明亮。



客厅是承载一个家庭最多互动的场所,[url][urlend3] 期望在这里能让来访的客人自在舒适,也希望家人能够享受在这里围坐闲话的过程。木质茶几,布艺沙发,敛去棱角,让紧绷的人也能在这里彻底的放松下来;淡绿色[url][urlend3] 更是女主精心挑选的。














餐厅的面积比较小,没有酒柜的位置。为了不影响餐厅的大小,又能增加餐边柜的设计,设计中利用了电器柜的宽度设计了卡座。卡座下面设计了抽拉式抽屉,卡座背景也做了对称效果设计,既达到了美观效果,又保证了餐厅的使用效果。








当我们置身于阳光房中,感受着舒适和安逸。一本书,一杯咖啡,晒着透射而入的暖光。




次卧,木工现场根据设计打造的榻榻米也书桌,与整体空间相契合。实用性和环保性是最大的特点,无甲板材在木工师傅精湛的手艺下,像一件艺术品式的被打造出来。



公卫面积比较大,常住人口为3-4人。所以公卫取消了浴室功能,预留出单台盆的位置。这样的设计也使得家庭成员可以享受相对私密、自由的空间。

[url][urlend3] --就找[url][urlend3]
预约电话:0512-36601918

[ 此帖被1918设计在2019-04-12 19:10重新编辑 ]
本帖评分记录
弟子规 昆币 +1 -来自昆山论坛APP 2020-08-21
昆山封阳台 昆币 +1 -来自昆山论坛APP 2019-04-12
2条评分昆币+2
爆料有奖!关注昆山论坛抖音号,抖音搜索“昆山论坛”,或搜索抖音号:ksbbs
 
帅哥离线拍拍就走入
发帖
953
昆币
1732 枚
沙发  发表于: 2019-04-12 , 来自:江苏省0==
卧室里效果图看看
爆料有奖!关注昆山论坛抖音号,抖音搜索“昆山论坛”,或搜索抖音号:ksbbs
 
快速回复
限76 字节
如果您提交过一次失败了,可以用”恢复数据”来恢复帖子内容
 
上一个 下一个