夜间模式
  • 399748阅读
  • 859回复

【薇薇家居全案软装】装修话辛酸,说说自家装修的那些事 [复制链接]

上一主题 下一主题
美女离线小妹妹j
发帖
1111
昆币
1796 枚
只看楼主 使用道具 电梯直达
楼主  发表于: 2020-08-19 , 来自:江苏省0==
选的个好日子2020.6月6号开工的,现在已经瓦工验收结束了。本来不想写日记的,现在想来还是记录下来比较好。给大家提供一个借鉴,也避避雷吧。我自己也好留个纪念。话不多说,先上一波图。









本帖评分记录
宝了师弟 昆币 +1 -来自昆山论坛APP 2020-12-31
艹大神 昆币 +1 -来自昆山论坛APP 2020-12-22
希希粑粑 昆币 +1 -来自昆山论坛APP 2020-10-26
薇薇家居客服 昆币 +1 -来自昆山论坛APP 2020-09-25
〆公主睿晗丶 昆币 +1 -来自昆山论坛APP 2020-09-08
风子009 昆币 +1 -来自昆山论坛APP 2020-09-08
willingme 昆币 +1 -来自昆山论坛APP 2020-08-31
青青叶 昆币 +1 -来自昆山论坛APP 2020-08-29
zoushow 昆币 +1 -来自昆山论坛APP 2020-08-25
人间吃货 昆币 +1 -来自昆山论坛APP 2020-08-25
12
14条评分昆币+14
爆料有奖!关注昆山论坛抖音号,抖音搜索“昆山论坛”,或搜索抖音号:ksbbs
 
美女离线小妹妹j
发帖
1111
昆币
1796 枚
沙发  发表于: 2020-08-19 , 来自:江苏省0==
昆山论坛推荐了4家装修公司,最后选了寅盛半包。在网上找了好多图给设计师参考,也和设计师说了我们的需求和生活惯。在网上找了好多图给设计师参考。下面这些都是。最后敲定了我家方案。下一条上方案啊

















爆料有奖!关注昆山论坛抖音号,抖音搜索“昆山论坛”,或搜索抖音号:ksbbs
 
美女离线小妹妹j
发帖
1111
昆币
1796 枚
板凳  发表于: 2020-08-19 , 来自:江苏省0==
一开始确定了这版
爆料有奖!关注昆山论坛抖音号,抖音搜索“昆山论坛”,或搜索抖音号:ksbbs
 
美女离线小妹妹j
发帖
1111
昆币
1796 枚
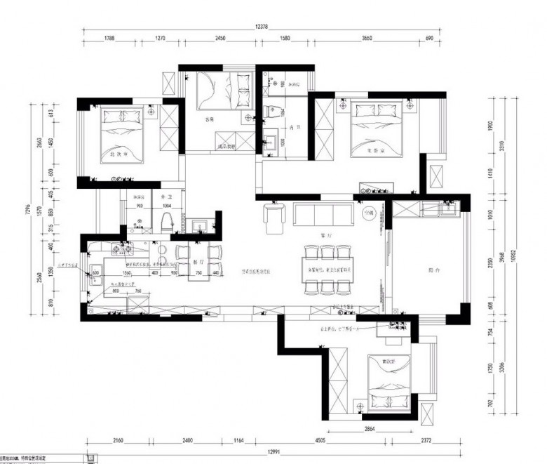
地板  发表于: 2020-08-19 , 来自:江苏省0==
平面布置图
爆料有奖!关注昆山论坛抖音号,抖音搜索“昆山论坛”,或搜索抖音号:ksbbs
 
美女离线小妹妹j
发帖
1111
昆币
1796 枚
4楼 发表于: 2020-08-19 , 来自:江苏省0==
来回定了几版,最后定了这个
爆料有奖!关注昆山论坛抖音号,抖音搜索“昆山论坛”,或搜索抖音号:ksbbs
 
离线LoveU3000
级别: 昆山新人
发帖
109
昆币
115 枚
5楼 发表于: 2020-08-19 , 来自:江苏省0==
这是什么风格,现在简约风吗?
爆料有奖!关注昆山论坛抖音号,抖音搜索“昆山论坛”,或搜索抖音号:ksbbs
 
离线Daisoiii
发帖
1333
昆币
1457 枚
6楼 发表于: 2020-08-19 , 来自:江苏省0==
效果很赞,期待楼主的实景图呢
爆料有奖!关注昆山论坛抖音号,抖音搜索“昆山论坛”,或搜索抖音号:ksbbs
 
美女离线小妹妹j
发帖
1111
昆币
1796 枚
7楼 发表于: 2020-08-19 , 来自:江苏省0==
LoveU3000:这是什么风格,现在简约风吗?
 (2020-08-19 13:16) 

我本意是想要简美的
爆料有奖!关注昆山论坛抖音号,抖音搜索“昆山论坛”,或搜索抖音号:ksbbs
 
美女离线小妹妹j
发帖
1111
昆币
1796 枚
8楼 发表于: 2020-08-19 , 来自:江苏省0==
LoveU3000:这是什么风格,现在简约风吗?
 (2020-08-19 13:16) 

我本意是简美风格。
爆料有奖!关注昆山论坛抖音号,抖音搜索“昆山论坛”,或搜索抖音号:ksbbs
 
美女离线小妹妹j
发帖
1111
昆币
1796 枚
9楼 发表于: 2020-08-19 , 来自:江苏省0==
Daisoiii:效果很赞,期待楼主的实景图呢 (2020-08-19 13:16) 

谢谢。我后续会努力更新的哈。
爆料有奖!关注昆山论坛抖音号,抖音搜索“昆山论坛”,或搜索抖音号:ksbbs
 
快速回复
限76 字节
如果您提交过一次失败了,可以用”恢复数据”来恢复帖子内容
 
上一个 下一个