夜间模式
  • 463855阅读
  • 416回复

观湖壹号 · 偶然的相遇 (持续更新ing~) [复制链接]

上一主题 下一主题
离线15950035945
级别: 昆山新人
发帖
303
昆币
390 枚
只看楼主 使用道具 电梯直达
楼主  发表于: 2018-04-09 , 来自:江苏省0==
家装日记
小区: 观湖壹号
套内面积: 140 (平米)
预算: 16 万
开工日期: 2018-03-31
装修风格: 美式
装修方式: 半包
装修公司: 领途·印象
本人文笔不佳,各位看官凑合着看,写的不好轻拍哈~~

此贴的目的是为了记录装修的酸甜苦辣,新鸟变老鸟的历程,同时为即将装修的新人累点经验吧(坑我来跳,雷我来踩,你们少走点弯路我就知足了


昆山的装修公司数不胜数,鱼目混珠,参差不齐!多数也只能算得上“施工团队”。经过半年的筛选,也没遇到心怡的“对象”... ...(处女座的悲哀)


偶然的一天遇到了《领途·印象》的张总。(此处省略几千字...)


人很超级好哦(此处省略几百字)


希望如张总说的那样,做行业的标杆,为广大的昆山业主筑建心目中的家

施工过程中好的地方表扬,差的地方批评,恶意的直接曝光~ 本文不会遮掩偏袒什么!
望大家来工地参观参观,指点指点,顺便也帮忙监督监督~

工    地:观湖一号 6#1503
施工方:领途·印象
==========================================================================================================================================================
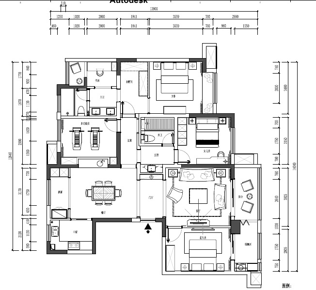
先上个原始平面图


规划后的


现场图片
这张图片单独列出来,领途细节把握的很好,连门框都都贴上了保护膜,处女座的我灰常满意!希望后面也这样细致下去...


客厅


南阳台


餐厅,北阳台,厨房


过道,南卧室,北卧室(北卫我不需要所以没照片)


主卧,主卫



未完待续... ...
[ 此帖被猫咪来了在2018-04-20 16:15重新编辑 ]
本帖评分记录
好心情2019 昆币 +1 -来自昆山论坛APP 2021-03-20
林必成 昆币 +1 -来自昆山论坛APP 2020-08-09
给我说服力 昆币 +1 -来自昆山论坛APP 2019-12-29
爱丁伯格家具 昆币 +1 -来自昆山论坛APP 2019-09-30
文清, 昆币 +1 -来自昆山论坛APP 2019-05-27
米糕2 昆币 +1 -来自昆山论坛APP 2019-05-20
机器 昆币 +1 -来自昆山论坛APP 2019-02-07
网红小姐姐 昆币 +10 鼓励分享 2019-01-22
愤怒的小公鸡 昆币 +1 -来自昆山论坛APP 2018-12-26
深海里的星星 昆币 +1 -来自昆山论坛APP 2018-11-27
12
19条评分昆币+46
爆料有奖!关注昆山论坛抖音号,抖音搜索“昆山论坛”,或搜索抖音号:ksbbs
 
离线15950035945
级别: 昆山新人
发帖
303
昆币
390 枚
沙发  发表于: 2018-04-09 , 来自:江苏省0==
占楼待更新
爆料有奖!关注昆山论坛抖音号,抖音搜索“昆山论坛”,或搜索抖音号:ksbbs
 
美女离线昆山伟宏门窗
级别: 禁止发言

发帖
18978
昆币
32400 枚
板凳  发表于: 2018-04-10 , 来自:江苏省0==
用户被禁言,该主题自动屏蔽!
爆料有奖!关注昆山论坛抖音号,抖音搜索“昆山论坛”,或搜索抖音号:ksbbs
 
帅哥离线安居木门厂
级别: 禁止发言

发帖
3363
昆币
3279 枚
地板  发表于: 2018-04-10 , 来自:江苏省0==
用户被禁言,该主题自动屏蔽!
爆料有奖!关注昆山论坛抖音号,抖音搜索“昆山论坛”,或搜索抖音号:ksbbs
 
离线朗通装饰
级别: 家装商家

发帖
17029
昆币
14303 枚
4楼 发表于: 2018-04-10 , 来自:江苏省0==
恭喜楼主开工大吉
爆料有奖!关注昆山论坛抖音号,抖音搜索“昆山论坛”,或搜索抖音号:ksbbs
 
离线朗通装饰
级别: 家装商家

发帖
17029
昆币
14303 枚
5楼 发表于: 2018-04-10 , 来自:江苏省0==
下面的是我们的业主写的装修日记,已经入住了哦!可以给有需求的业主参考装修知识,学到更多装修经验,在找装修公司的路上少走弯路!
天成佳园业主分享装修经验日记http://www.ksbbs.com/read-htm-tid-5453076.html
装修日记http://www.ksbbs.com/read-htm-tid-4497784.html  
公司网址:[url][urlend2] (精彩案例邀您欣赏)





[ 此帖被朗通装饰在2018-04-10 16:31重新编辑 ]
爆料有奖!关注昆山论坛抖音号,抖音搜索“昆山论坛”,或搜索抖音号:ksbbs
 
美女离线米糕2
发帖
926
昆币
2131 枚
6楼 发表于: 2018-04-10 , 来自:江苏省0==
学学
爆料有奖!关注昆山论坛抖音号,抖音搜索“昆山论坛”,或搜索抖音号:ksbbs
 
美女离线昆山和美门窗
级别: 禁止发言
发帖
7597
昆币
22038 枚
7楼 发表于: 2018-04-12 , 来自:未知0==
用户被禁言,该主题自动屏蔽!
爆料有奖!关注昆山论坛抖音号,抖音搜索“昆山论坛”,或搜索抖音号:ksbbs
 
帅哥离线最爱小森林
发帖
589
昆币
963 枚
8楼 发表于: 2018-04-12 , 来自:江苏省0==
四面朝阳,南北通透

好房子啊
爆料有奖!关注昆山论坛抖音号,抖音搜索“昆山论坛”,或搜索抖音号:ksbbs
 
离线15950035945
级别: 昆山新人
发帖
303
昆币
390 枚
9楼 发表于: 2018-04-15 , 来自:江苏省0==
各位看官久等了... ...


我这也学学美剧,动漫~~~  一礼拜更新一次


(没办法啊,要攒点有营养的东西才好发啊... 不然肯定要挨你们板砖)


好了 开更:







[ 此帖被15950035945在2018-04-15 19:19重新编辑 ]
爆料有奖!关注昆山论坛抖音号,抖音搜索“昆山论坛”,或搜索抖音号:ksbbs
 
快速回复
限76 字节
如果您在写长篇帖子又不马上发表,建议存为草稿
 
上一个 下一个