夜间模式
  • 24167阅读
  • 0回复

​大慈装饰 | 富有传统韵味的140㎡新中式 [复制链接]

上一主题 下一主题
美女离线大慈装饰
级别: 家装商家

发帖
20529
昆币
2362 枚
只看楼主 使用道具 电梯直达
楼主  发表于: 2020-11-30 , 来自:江苏省0==

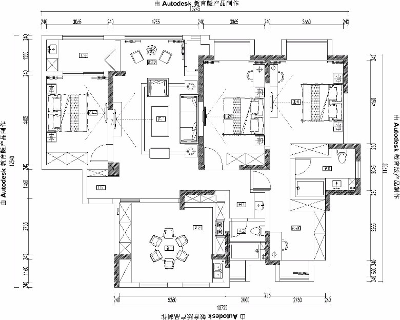
案例信息丨Case Information

项目地点:江南理想23#

项目类型:平层

项目性质:全案

项目面积:140㎡

项目风格:新中式      

设计师:大慈设计 龚工

▼业主需求

喜欢新中式装修,业主说主卧一定要粉色为主,哪怕以后不再年轻,也希望能永远保持自己纯粹的心,不管经历多少人和事,也依然能永远保持善良可爱。

▼户型优劣势

户型比较方正,功能分区明显;南北通透,有较好的通风采光。厨房和餐厅的空间没有很好的互动,入户玄关处过于闭塞。

▼户型改造

打通阳台做一个连接客厅的休闲区,打通连接厨房和餐厅的墙壁,扩大餐厅。

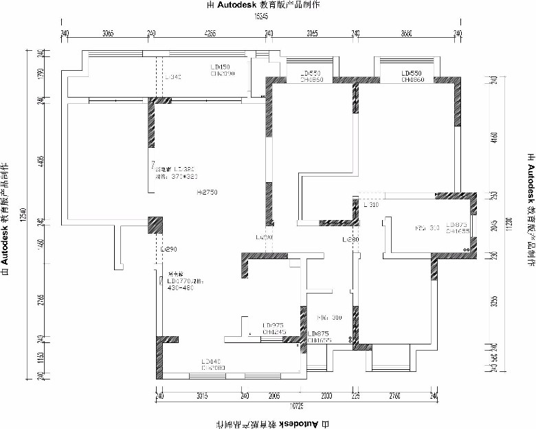
设计方案(户型对比图)

客厅Living Room

新中式风格不是纯粹的元素堆砌,而是通过对传统文化的认识,将现代元素和传统元素结合在一起,以现代人的审美需求来打造富有传统韵味的事物,让传统艺术在当今社会得到合适的体现。

餐厅Dining Hall

白色为主的西厨,灰色为主的中厨夹杂着黑色门把,无需绚丽多彩的颜色,就能让人耳目一新。黑白灰一直都是经久不衰的永恒,以低调的态度传达着独一无二的经典。

主卧Master Bedroom

主卧的背景墙定制了硬包的设计,玫瑰金色的吊灯在灰色墙面的映衬下充满时尚感,萤火虫水晶顶灯又不失精致感。

卧室Bedroom

    

次卧以高级感的中性色为主,恰到好处的复古红,复古绿作为点缀,打造出别样的视觉盛宴。精致的吊灯有捎带着古典韵味,淋漓精致地彰显出高贵华丽的空间气场。

扫描二维码720全景

[ 此帖被大慈装饰在2020-11-30 10:03重新编辑 ]
爆料有奖!关注昆山论坛抖音号,抖音搜索“昆山论坛”,或搜索抖音号:ksbbs
 
大慈装饰  昆山推荐率85%以上,口碑品牌  热线:0512-57779948/18551100758 地址:昆山市九方城保利地产大楼1704-1710
快速回复
限76 字节
如果您在写长篇帖子又不马上发表,建议存为草稿
 
上一个 下一个