夜间模式
  • 17213阅读
  • 0回复

[商业]准现房源·立即入驻——南通通州湾国家级经济开发区稀缺厂房开售! [复制链接]

上一主题 下一主题
离线活动推广
级别: 论坛编辑
发帖
3383
昆币
26121 枚
只看楼主 使用道具 电梯直达
楼主  发表于: 2021-09-07 , 来自:江苏省0==

微信图片_20210907142049.jpg

微信截图_20210907160938.png

关于项目

南通润格机械制造有限公司——年组装 20 万台汽车空调项目位于南通市通州湾江海联动示范区,北靠江新路,西临海明路,用地面积约 13212 ㎡地势平坦,用地周边交通便利。


微信截图_20210907143750.png


项目
南通通州湾国家级开发区厂房

【项目特点】有土地证,准现房

【面积】:14363㎡

【产权】:不动产证,国土50年、独立产权

【楼层】:标准双层厂房

【消防】:丁类

【配电】:500KVA

【层高】:一楼层高(6.7m)二楼层高(5.5m)

【行业】:智能制造,汽车零部件,精密机械,新能源,新材料

【付款方式】:可10年按揭

【厂房单价】:3000每平米

【周边配套】:周边3公里范围内社区集中、大型生活超市、银行、人才服务中心、生活方便,配套齐全。

【交付时间】:现房交付


微信图片_20210907142034.jpg
微信图片_20210907142030.jpg
微信图片_20210907142027.jpg
微信图片_20210907142037.jpg


贯彻可持续发展的原则,在合理利用、节约土地的前提下,考虑近、远期发展,适应未来的快速发展变化,使规划具有适应性和可操作性。


现房交付


微信截图_20210907150219.png

(厂房透视图)

微信图片_20210907142013.jpg
微信图片_20210907142017.jpg
微信图片_20210907142024.jpg
微信图片_20210907142021.jpg


资质齐全

微信截图_20210907152515.png

微信截图_20210907152528.png


设计完善


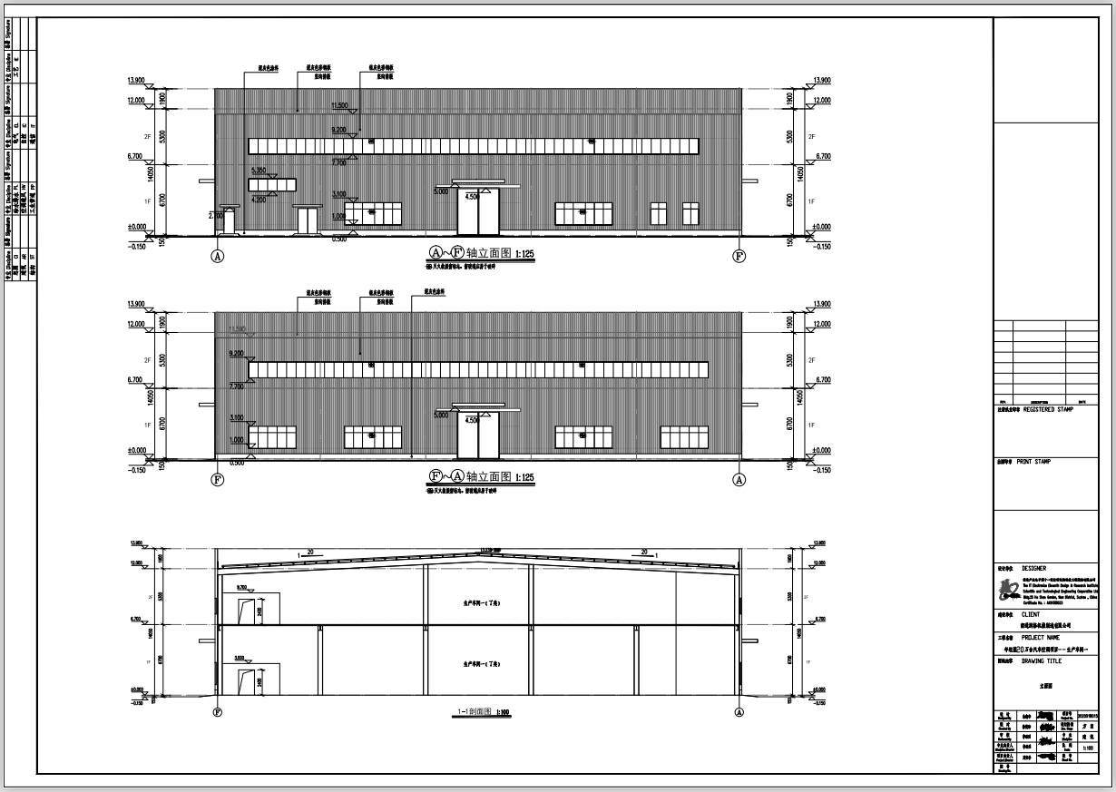
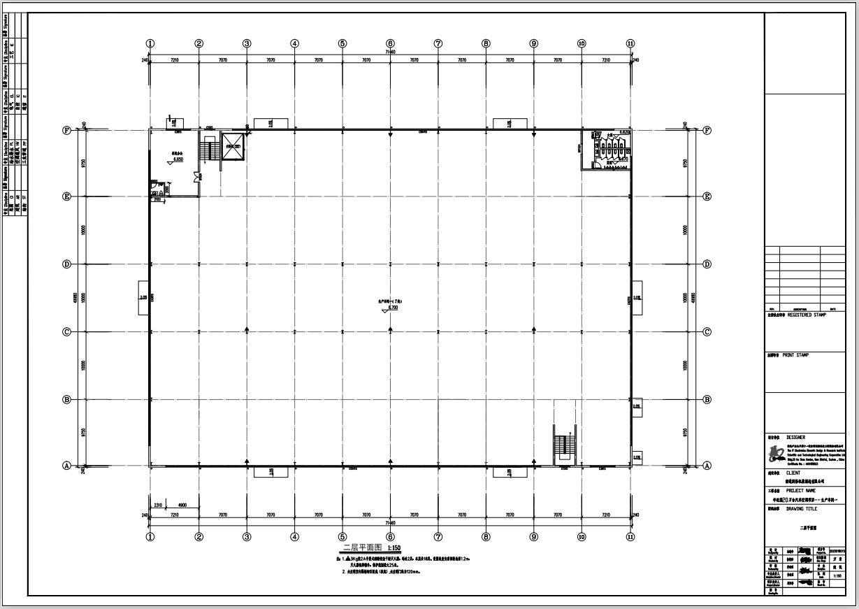
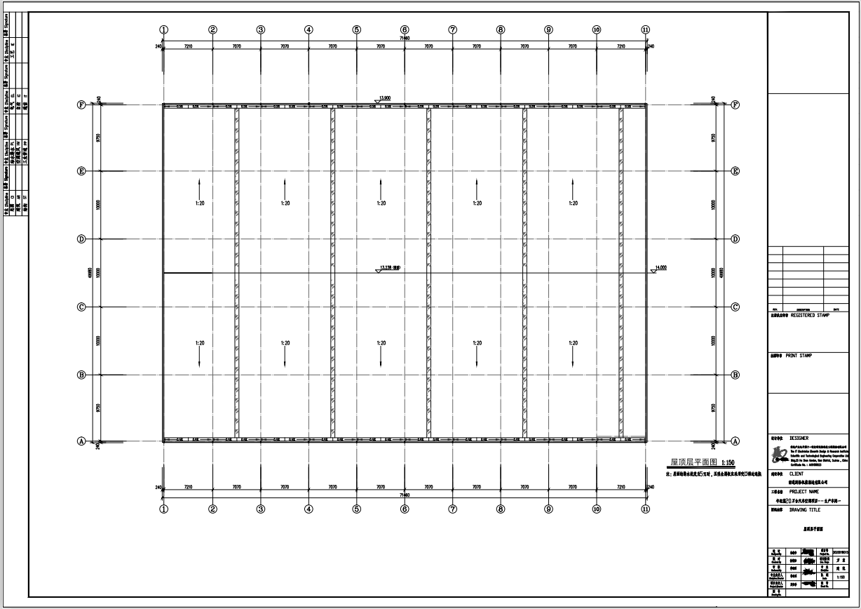
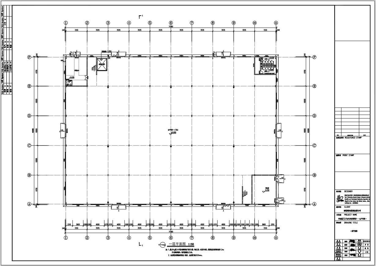
微信截图_20210907153158.png

△平面图

△立面图与剖面图


三大优势

1

地理位置优越


项目北靠江新路,西临海明路,厂房周围地势平坦,交通条件便利,周围社区集中、大型生活超市、银行、人才服务中心、生活方便,配套齐全。

2

规划前景宏伟


位于南通市通州湾江海联动示范区,规划发展辽阔,未来前景宏伟。

3

准现房,50年产权


五证齐全,准现房,50年产权,让您经营发展得到保障。


微信图片_20210907142052.jpg

咨询请联系
- CONTACT US -
联系人:18906268000
南通市通州湾江海联动示范区
END
广告
爆料有奖!关注昆山论坛抖音号,抖音搜索“昆山论坛”,或搜索抖音号:ksbbs
 
快速回复
限76 字节
如果您提交过一次失败了,可以用”恢复数据”来恢复帖子内容
 
上一个 下一个