每个人都希望自己的家看起来漂亮,
用起来方便!
而这些也就是请设计师的必要了!
请了设计师,
他可以根据每个业主的需求,
从结构、大小、喜好上入手,量身订造,
为业主精心设计出一套精美的设计方案,
还会帮业主把握好装修设计的流程,
包括:施工节点、成本控制、成品安装
因此,
一个好的设计师在家居美观和实用性上是十分重要的!
而今天为大家介绍的这位设计师是
叶氏装饰的设计总督
武志海
设计师简介
设计理念: 沟通赢得理解
主题诠释理念
空间表达感情。
从业资质: 上海室内设计协会注册设计师
国际商业美术设计师
ICAD专业A级资质
收费标准: 180元/平米
接下来就让我们一起来看看
这位设计的作品吧,
可以这么说,
小编看完后想把家里敲了重装,
从武设计师的作品中我们可以看到,
每一户的空间利用都非常到位,
而且布局很漂亮!
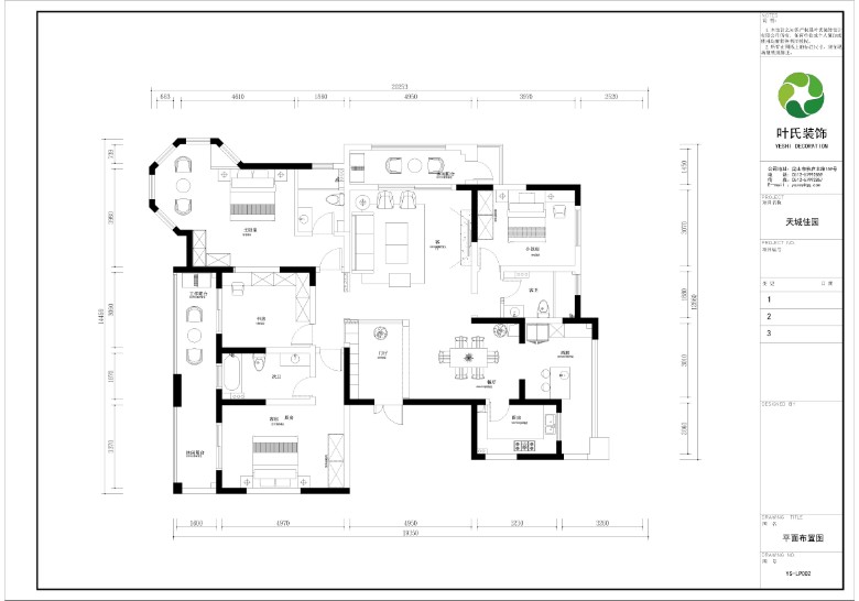
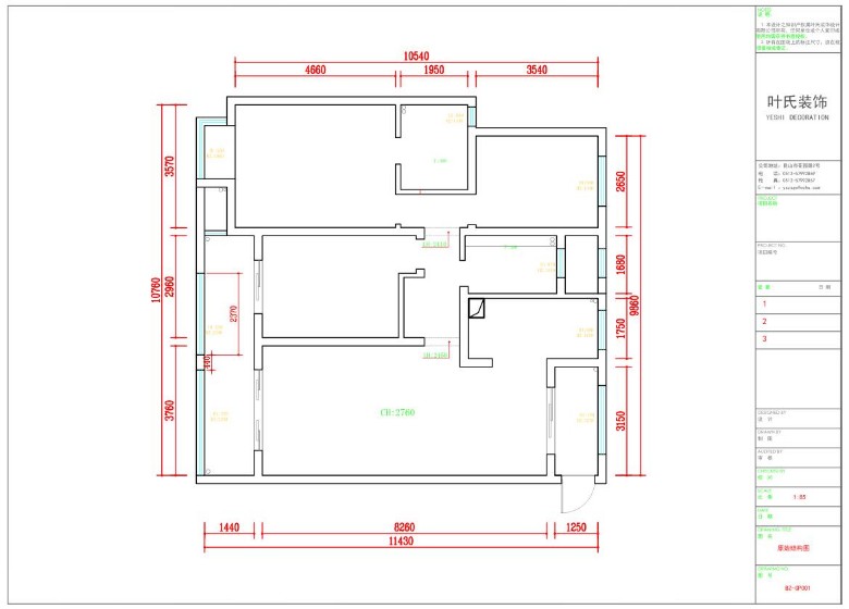
华润国际
▼
客餐厅区域连为一整体,整体家居色彩的选择上,偏向高级灰,几幅色彩鲜艳的背景画一下让整个客厅都鲜亮起来了;空间给人的感觉干净明朗,绝无杂乱之感。
原始结构图
平面设计图
▼客厅 Living room

▼餐厅 Dining room
▼主卧 Master bedroom
▼卫生间 Bathroom

天成佳园
▼
相比华润国际的沉稳,天成佳园的装修就明亮多了,不过卧室看起来还是比较柔和哦!
原始结构图
平面设计图
▼客厅 Living room

▼过道 The corridor

▼餐厅 Dining room
▼卧室 Bedroom


最后我们来欣赏
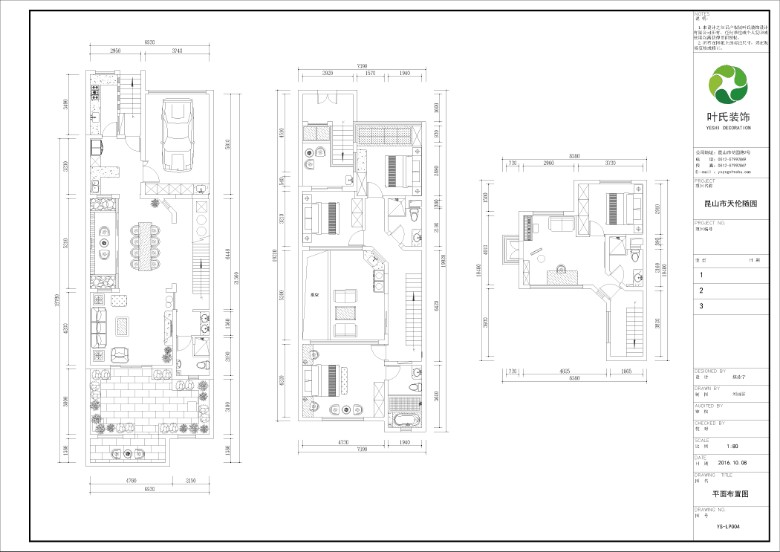
天伦随园
▼
不管是客厅、工作室还是后面的卧室、餐厅,虽然装修中没有过多使用繁复的装饰,但是简单中却不失大气,相信业主也是一位低调有内涵的人!
原始结构图
平面设计图
▼客厅 Living room
▼餐厅 Dining room
▼卧室 Bedroom
▼书房
看完之后,
你是否也和小编一样欲罢不能了呢!
另外设计师的作品还包括:
中大未来城,江南理想,华润国际,天成佳园,同进君望,九方城,昆玉九里,世茂东一号,九扬香郡,观湖壹号等等。
如有网友还想看更多的效果图,
可以去昆山论坛装修频道,
找叶氏装饰查看设计团队,
第一个就是武志海设计师哦~
[ 此帖被叶氏装饰在2018-10-12 15:26重新编辑 ]